Südseitige Dachgeschosswohnung mit 2 Terrassen | ERSTBEZUG an der U1!
Wohnung
- Dachgeschoß,
1100
Wien
Beschreibung der Immobilie
Südseitige Dachgeschosswohnung mit 2 Terrassen | ERSTBEZUG an der U1!
ObjektbeschreibungIn einer ruhigen Seitengasse, und doch mitten im Leben, erwartet Sie ein liebevoll saniertes Gründerzeitwohnhaus mit Geschichte und Charakter. Die Liegenschaft in der Senefeldergasse wurde umfassend saniert und überzeugt durch stilvolle Details und moderne Infrastruktur. Im neu ausgebauten Dachgeschoss befindet sich das absolute Highlight - 4 Maisonettewohnungen mit einladenden Terrassenflächen, sowie eine kompakte moderne 3-Zimmerwohnung.
Das Gebäude wurde von Grund auf saniert - verfügt nun über neu geschaffene Kellerabteile, Aufzug, ein einladendes Stiegenhaus sowie einer wunderschönen Hausfassade. Dabei wurde großer Wert darauf gelegt, den authentischen Altbaucharme zu bewahren und mit zeitgemäßer Wohnqualität zu verbinden.
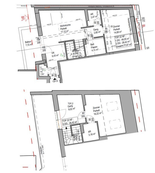
Die Wohnung Top 22 verfügt über 77,47 m² und teilt sich wie folgt auf:
- Vorraum
- 3 Zimmer
- Bad
- WC
- Abstellraum
- Balkon
- Terrasse
Zum Verkauf stehen 13 sanierte Altbauwohnungen in den Regelgeschossen, sowie 5 neu geschaffenen Dachgeschosswohnungen. Exklusive Wohneinheiten mit Größen von ca. 40 m² bis 105m² und 2 bis 4 Zimmern - jede einzelne mit einem klaren Fokus auf Qualität, Design und Wohngefühl.
Ausstattung
Alle Wohnungen befinden sich im Erstbezug. Die Ausstattung lässt keine Wünsche offen:
Wärmeversorgung durch Fernwärme
komfortables Heizen durch Fußbodenheizung
elektrischer Wandheizkörper in den Badezimmern
exklusive Parkettböden in allen Wohn- und Schlafräumen
großformatige Fliesen in den Sanitärbereichen
Badewannen oder bodenbündige Duschen mit
qualitativ hochwertigen Armaturen
massive Wohnungseingangstüren mit Einbruchsschutz
hochwertige Fenster und Fenstertüren
Kabel-TV sowie Internet-Anschlüsse
Fahrradabstellraum
Großzügige Grundrisse mit viel Licht und wohlfühlender Raumhöhe
Lage
Die Senefeldergasse ist eine beruhigte Seitengasse inmitten des traditionellen Favoritenviertels. Die Umgebung bietet eine ausgezeichnete Mischung aus urbanem Lebensgefühl und Naherholung: In Gehweite befinden sich zahlreiche Einkaufsmöglichkeiten, gemütliche Cafés, Restaurants, Schulen und Kindergärten. Die nahegelegene Favoritenstraße bietet eine Vielzahl an Geschäften und eine direkte Anbindung an das öffentliche Verkehrsnetz - die U1-Station Reumannplatz sowie mehrere Straßenbahn- und Buslinien sind rasch fußläufig erreichbar. In wenigen Minuten gelangt man so sowohl in die Wiener Innenstadt als auch zum Erholungsgebiet Wienerberg und Oberlaa.
Eckdaten Objektnr. 141/85056
| Art: | Wohnung - Dachgeschoß |
| Land: | Österreich |
| Baujahr: | 2025 |
| Alter: | Altbau |
| Kaufpreis: | 575.000,00 € |
| Wohnfläche: | 77,47 m² |
| Zimmer: | 3 |
| Bäder: | 1 |
| WC: | 1 |
| Balkone: | 1 |
| Terrassen: | 1 |
| Heizwärmebedarf: | C 54,35 kWh/m²a |
| fGEE: | B 0,90 |
Ausstattung
Fernwärme, Personenaufzug
Ihre persönliche Beratung
Dieser Makler ist ein offizielles Mitglied des IR – ir.at Mehr Erfahren
