Altbauperle an der U1 | ERSTBEZUG nach Generalsanierung | Südseitig
Wohnung
- Dachgeschoß,
1100
Wien
Beschreibung der Immobilie
Altbauperle an der U1 | ERSTBEZUG nach Generalsanierung | Südseitig
ObjektbeschreibungIn einer ruhigen Seitengasse, und doch mitten im Leben, erwartet Sie ein liebevoll saniertes Gründerzeitwohnhaus mit Geschichte und Charakter. Die Liegenschaft in der Senefeldergasse wurde umfassend saniert und überzeugt durch stilvolle Details und moderner Infrastruktur. Im neu ausgebauten Dachgeschoss befindet sich das absolute Highlight - 4 Maisonettewohnungen mit einladenden Terrassenflächen, sowie eine kompakte moderne 3-Zimmerwohnung.
Das Gebäude wurde von Grund auf saniert - verfügt nun über neu geschaffene Kellerabteile, Aufzug, ein einladendes Stiegenhaus sowie einer wunderschönen Hausfassade. Dabei wurde großer Wert darauf gelegt, den authentischen Altbaucharme zu bewahren und mit zeitgemäßer Wohnqualität zu verbinden.
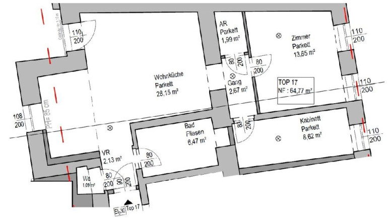
Die Wohnung Top 17 verfügt über rd. 65m² und teilt sich wie folgt auf:
- Vorraum
- Wohnküche
- 2 Schlafzimmer
- Abstellraum
- Gang
- Badezimmer
- WC
Zum Verkauf stehen 13 sanierte Altbauwohnungen in den Regelgeschossen, sowie 5 neu geschaffenen Dachgeschosswohnungen. Exklusive Wohneinheiten mit Größen von ca. 40m² bis 105m² und 2 bis 4 Zimmern - jede einzelne mit einem klaren Fokus auf Qualität, Design und Wohngefühl.
Ausstattung
Alle Wohnungen befinden sich im Erstbezug. Die Ausstattung lässt keine Wünsche offen:
- Wärmeversorgung durch Fernwärme
- komfortables Heizen durch Fußbodenheizung
- elektrischer Wandheizkörper in den Badezimmern
- exklusive Parkettböden in allen Wohn- und Schlafräumen
- großformatige Fliesen in den Sanitärbereichen
- Badewannen oder bodenbündige Duschen mit
- qualitativ hochwertigen Armaturen
- massive Wohnungseingangstüren mit Einbruchsschutz
- hochwertige Fenster und Fenstertüren
- Kabel-TV sowie Internet-Anschlüsse
- Fahrradabstellraum
- Großzügige Grundrisse mit viel Licht und wohlfühlender Raumhöhe
Lage
Die Senefeldergasse ist eine beruhigte Seitengasse inmitten des traditionellen Favoritenviertels. Die Umgebung bietet eine ausgezeichnete Mischung aus urbanem Lebensgefühl und Naherholung: In Gehweite befinden sich zahlreiche Einkaufsmöglichkeiten, gemütliche Cafés, Restaurants, Schulen und Kindergärten. Die nahegelegene Favoritenstraße bietet eine Vielzahl an Geschäften und eine direkte Anbindung an das öffentliche Verkehrsnetz - die U1-Station "Reumannplatz" sowie mehrere Straßenbahn- und Buslinien sind rasch fußläufig erreichbar. In wenigen Minuten gelangt man so sowohl in die Wiener Innenstadt als auch zum Erholungsgebiet Wienerberg und Oberlaa.
Eckdaten Objektnr. 141/84236
| Art: | Wohnung - Dachgeschoß |
| Land: | Österreich |
| Alter: | Altbau |
| Kaufpreis: | 395.000,00 € |
| Wohnfläche: | 64,77 m² |
| Zimmer: | 3 |
| Bäder: | 1 |
| WC: | 2 |
| Terrassen: | 1 |
| Heizwärmebedarf: | C 54,35 kWh/m²a |
| fGEE: | B 0,90 |
Ausstattung
Fernwärme, Personenaufzug
Ihre persönliche Beratung
Dieser Makler ist ein offizielles Mitglied des IR – ir.at Mehr Erfahren
