Einzigartig, arbeiten und wohnen in einem top modern,

Wohnung , 1220 Wien


Das Objekt ist ideal gelegen, nur wenige Minuten zu der U2-Station Aspernstraße sowie der Buslinie 26A. Mit den öffentlichen Verkehrsmitteln gelangt man in knapp 15 Minuten ins Stadtzentrum.  Zur Erholung dient die nahgelegene Donauinsel sowie die Alte Donau.  Nahversorger, Apotheken, Ärzte, Restaurants und weitere Annehmlichkeiten befinden sich in fußläufiger Entfernung. 

Beschreibung der Immobilie

Einzigartig, arbeiten und wohnen in einem top modern,

Die Liegenschaft ist etwas ganz Besonderes!



Wohnung

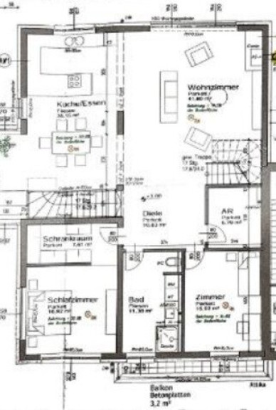
Die Wohnung befindet sich über der Ordination und ist atemberaubend. Sie betreten die Wohnung durch einen Eingangsbereich, von dem aus Sie auch den Garten erreichen können. Wenn Sie die Stiegen in den ersten Stock hinauf gehen, eröffnet sich Ihnen ein wunderbarer Wohnraum mit offener Küche. In diesem Bereich sind wirklich keine Wünsche an modernes Wohnen offen geblieben. Sie finden eine moderne Einbauküche mit allen Geräten, eine große Kochinsel, die gleichzeitig die Küche vom Essbereich trennt. Einen gemütlichen Kuschelbereich, der in eine große Fensternische eingebaut ist und natürlich auch den Wohnbereich. Die großen Fensterflächen lassen hier Innen- und Außenbereich fließend ineinander über gehen! 

Weiters finden Sie hier zwei Schlafzimmer und ein Bad und einen Balkon.

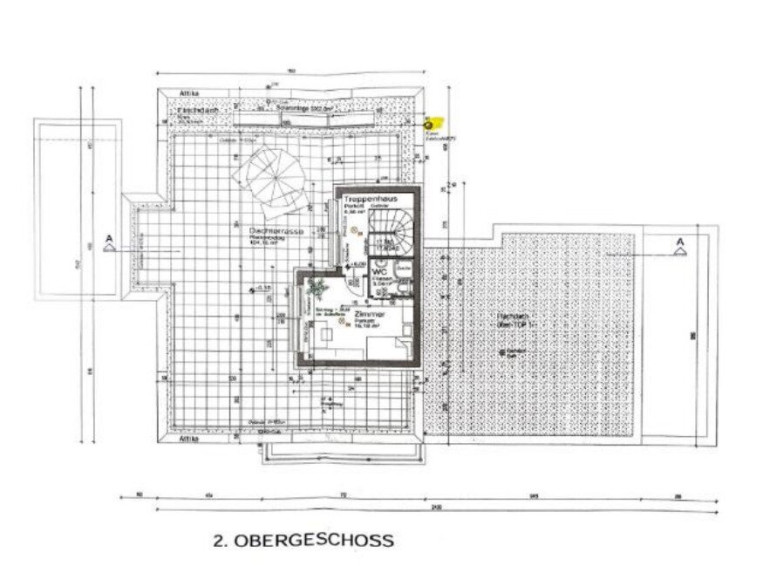
Wenn Sie die offene Treppe ins Obergeschoss nehmen, eröffnet sich Ihnen sofort der herrliche Blich auf die große Dachterrasse. Hier befindet sich ein Schlafzimmer und ein Badezimmer.  



Wenn Sie Interesse haben, rufen Sie mich einfach an und wir vereinbaren einen Besichtigungstermin!







Noch nichts gefunden?  Wir suchen gerne die passende Immobilie für sie und informieren Sie über geeignete Immobilienangebote noch vor allen anderen.
Legen Sie jetzt Ihren individuellen Suchagenten unter folgendem Link an. Wir schicken Ihnen passende Immobilien exklusiv vorab zu ihr Denich Real Immobilienservice

Suchagent anlegen


Der Immobilienmakler erklärt, dass er – entgegen dem in der Immobilienwirtschaft üblichen Geschäftsgebrauch des Doppelmaklers – einseitig nur für den Vermieter tätig ist.

Infrastruktur / Entfernungen

Gesundheit
Arzt <500m
Apotheke <500m
Klinik <1.500m
Krankenhaus <2.000m

Kinder & Schulen
Schule <500m
Kindergarten <500m
Universität <2.000m
Höhere Schule <2.000m

Nahversorgung
Supermarkt <500m
Bäckerei <500m
Einkaufszentrum <3.500m

Sonstige
Geldautomat <500m
Bank <500m
Post <1.500m
Polizei <1.000m

Verkehr
Bus <500m
U-Bahn <1.500m
Straßenbahn <500m
Bahnhof <1.500m
Autobahnanschluss <3.000m

Angaben Entfernung Luftlinie / Quelle: OpenStreetMap

Eckdaten Objektnr. 1416

Art: Wohnung
Land: Österreich
Zustand: Gepflegt
Alter: Neubau
Gesamtmiete: 2.750,00
Kaltmiete (netto): 2.500,00 €
Kaltmiete: 2.750,00 €
Betriebskosten: 250,00 €
Wohnfläche: 200,00 m²
Zimmer: 4
Balkone: 1
Terrassen: 1
Nebenkostenübersicht Miete Immobilie merken Exposé

Ausstattung

Parkett, Fliesen, Gas, Fußbodenheizung, Einbauküche, Wohnküche / offene Küche, Westbalkon, Bad mit Fenster, Dusche, Garage, Parkplatz, Sauna


Immobilie anfragen


Ihre persönliche Beratung

DENICH-REAL Immobilien GmbH

Martina Denich-Kobula

DENICH-REAL Immobilien GmbH

T +43 664 4609630

H +43 664 4609630