1130 Wien – Exklusive 3-Zimmer-Gartenwohnung , 133 m² Garten, 32 m² Terrasse, Erstbezug, Ruhelage

Wohnung , 1130 Wien


Sehr gute Wohnlage im 13. Bezirk mit ausgezeichneter Infrastruktur, Nahversorgung, Schulen und öffentlicher Anbindung. Zahlreiche Grünflächen und Erholungsmöglichkeiten in unmittelbarer Nähe.

Beschreibung der Immobilie

1130 Wien – Exklusive 3-Zimmer-Gartenwohnung , 133 m² Garten, 32 m² Terrasse, Erstbezug, Ruhelage

In absoluter Grünruhelage des begehrten 13. Bezirks gelangt diese hochwertig ausgestattete 3-Zimmer-Neubauwohnung mit großzügigem Eigengarten zum Verkauf.



Die Wohnung überzeugt durch moderne Architektur, exklusive Ausstattung und eine ideale Raumaufteilung.




? Eckdaten




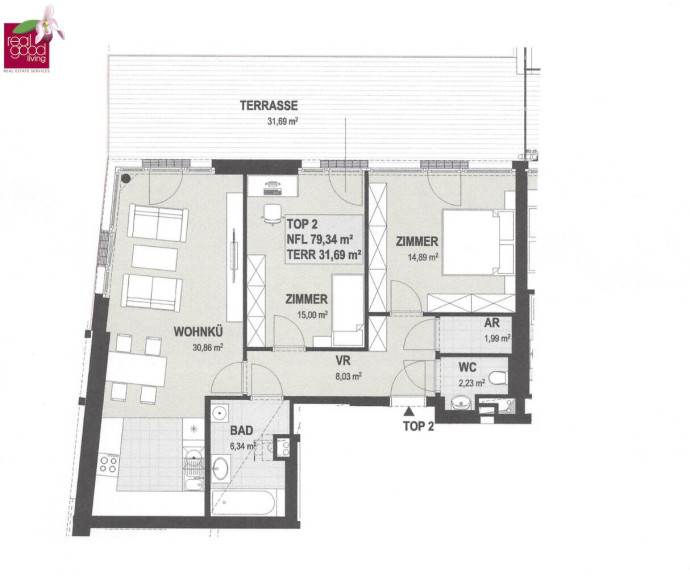
  • Wohnfläche: 79,34 m²



  • Terrasse: 31,69 m²



  • Eigengarten: 133,17 m²



  • 3 Zimmer



  • Neubau – Erstbezug



  • HWB: 40 kWh/m²a



  • Lift vorhanden



  • Kellerabteil



  • Tiefgaragenplatz verpflichtend




? Raumaufteilung




  • Vorraum: 8,03 m²



  • Wohnküche: 30,86 m² mit direktem Zugang zur Terrasse & Garten



  • Zimmer: 15,00 m²



  • Zimmer: 14,89 m²



  • Bad mit Wanne & Dusche: 6,34 m²



  • WC getrennt: 2,23 m²



  • Abstellraum: 1,99 m²





✨ Ausstattung & Highlights




  • Hochwertige Holz-Alu-Fenster



  • Außenliegender Sonnenschutz



  • Fußbodenheizung (Gas-Zentralheizung)



  • Klimaanlage



  • Parkett- & Fliesenböden



  • Bad mit Wanne & Dusche



  • Getrenntes WC



  • Personenaufzug



  • Fahrradraum & Abstellraum



  • Grünblick



  • Absolute Ruhelage




? Kaufpreis




  • Wohnung: € 895.000,–



  • Tiefgaragenplatz: € 40.000,–



  • Gesamtkaufpreis: € 935.000,–




Provision: 3 % zzgl. 20 % USt.



? Kontakt



Herr Bruno Franz
Tel.: +43 664 355 3790



Bitte beachten Sie, dass Anfragen nur mit vollständigen Kontaktdaten (inkl. Telefonnummer) bearbeitet werden können.



Gerne unterstützen wir Sie auch bei der Finanzierung und finden gemeinsam mit unseren langjährigen Partnern die besten Konditionen.








Wir weisen darauf hin, dass zwischen dem Vermittler und dem zu vermittelnden Dritten ein familiäres oder wirtschaftliches Naheverhältnis besteht.


Der Vermittler ist als Doppelmakler tätig.

Infrastruktur / Entfernungen

Gesundheit
Arzt <1.000m
Apotheke <1.000m
Klinik <1.000m
Krankenhaus <1.000m

Kinder & Schulen
Schule <1.500m
Kindergarten <1.000m
Universität <1.500m
Höhere Schule <5.500m

Nahversorgung
Supermarkt <500m
Bäckerei <1.000m
Einkaufszentrum <4.500m

Sonstige
Geldautomat <1.500m
Bank <1.500m
Post <1.500m
Polizei <1.500m

Verkehr
Bus <500m
U-Bahn <2.500m
Straßenbahn <1.000m
Bahnhof <1.500m
Autobahnanschluss <4.500m

Angaben Entfernung Luftlinie / Quelle: OpenStreetMap

Eckdaten Objektnr. 4356/405

Art: Wohnung
Land: Österreich
Zustand: Erstbezug
Alter: Neubau
Kaufpreis: 895.000,00
Wohnfläche: 79,00 m²
Zimmer: 3
Bäder: 1
WC: 1
Terrassen: 1
Garten: 133,00 m²
Keller: 2,00 m²
Heizwärmebedarf: 40,00 kWh/m²a
Nebenkostenübersicht Kauf Immobilie merken Exposé

Ausstattung

Parkett, Fliesen, Gas, Fußbodenheizung, Zentralheizung, Personenaufzug, Badewanne, Dusche, Kabel/Satelliten-TV, Tiefgarage


Immobilie anfragen


Ihre persönliche Beratung

RealGoodLiving Real Estate Services GmbH

Bruno Franz

RealGoodLiving Real Estate Services GmbH

T +43 660 245 44 57

H +43 664 3553 790