Unbefristet+Ablösefrei | Vielfältige Nutzungsmöglichkeiten | U6 Gumpendorfer Straße

Gastgewerbe , 1150 Wien


Beschreibung der Immobilie

Unbefristet+Ablösefrei | Vielfältige Nutzungsmöglichkeiten | U6 Gumpendorfer Straße

Einmalige Gelegenheit | Erdgeschoß-Ecklokal mit Straßenzugang | Umbauten auf eigene Kosten möglich



Ablösefrei und unbefristet



vielfältige Nutzungsmöglichkeiten (Praxis, Labor, Handel, Gastro etc.) - Hohe Räume



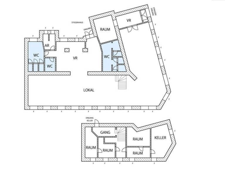
Ehemalige Disco Ponyhof - Geschäftslokal in der Sechshauser Straße bei der U-Bahnstation Gumpendorfer Straße



Erdgeschoß ca. 270m² plus Kellergeschoß,



Monatsmiete inkl. BK und 20% USt.: €4.900



Kaution:4xBruttomonatsmiete inkl. USt.



Mietvertragsgebühr Finanzamt



Bitte beachten Sie, dass bei erfolgreicher Vermittlung mit Rechtswirksamkeit des zu vermittelnden Geschäfts eine Provision laut Immobilienmaklerverordnung zu leisten ist (3 Bruttomonatsmieten zuzüglich 20% Ust.).



Auf Ihre Anfrage freut sich:



Ihr REAL3-Team

REAL3 Immobilien GmbH

info@real3.at



0699 131 00 317



Alle Informationen, insbesondere jene hinsichtlich des Heizwärmebedarfs als auch des Gesamtenergieeffizienzquotienten beruhen auf den Auskünften und Unterlagen des Eigentümers. Die REAL3 Immobilien GmbH hat weder die Richtigkeit oder Vollständigkeit der Angaben noch die tatsächliche Gesamtenergieeffizienz überprüft und übernimmt hierfür keine Gewähr.



Wir weisen darauf hin, dass zwischen der REAL3 Immobilien GmbH und dem zu vermittelnden Dritten ein wirtschaftliches Naheverhältnis besteht. Der Makler ist als Doppelmakler tätig.



Energieklasse E


Wir weisen darauf hin, dass zwischen dem Vermittler und dem zu vermittelnden Dritten ein familiäres oder wirtschaftliches Naheverhältnis besteht.


Der Vermittler ist als Doppelmakler tätig.

Infrastruktur / Entfernungen

Gesundheit
Arzt <500m
Apotheke <500m
Klinik <500m
Krankenhaus <1.000m

Kinder & Schulen
Schule <500m
Kindergarten <500m
Universität <500m
Höhere Schule <1.500m

Nahversorgung
Supermarkt <500m
Bäckerei <500m
Einkaufszentrum <1.500m

Sonstige
Geldautomat <1.000m
Bank <1.000m
Post <500m
Polizei <500m

Verkehr
Bus <500m
U-Bahn <500m
Straßenbahn <500m
Bahnhof <500m
Autobahnanschluss <4.000m

Angaben Entfernung Luftlinie / Quelle: OpenStreetMap

Eckdaten Objektnr. 5853/3646

Art: Gastgewerbe
Land: Österreich
Alter: Altbau
Kaltmiete (netto): 3.314,53 €
Kaltmiete: 4.083,33 €
Betriebskosten: 768,80 €
MwSt Gesamt: 816,67 €
Wohnfläche: 320,57 m²
Nutzfläche: 320,57 m²
WC: 3
Nebenkostenübersicht Miete Immobilie merken Exposé

Ausstattung

Gas, Etagenheizung


Immobilie anfragen


Ihre persönliche Beratung

REAL3 Immobilien GmbH

REAL3 Immobilien GmbH

REAL3 Immobilien GmbH

T +431997159317

H +43 699 131 00 317