Gut geführtes Lokal im 21. Bezirk ist bereit zur Weitergabe

Gastgewerbe , 1210 Wien


nahe des Floridsdorfer Spitzes

Beschreibung der Immobilie

Gut geführtes Lokal im 21. Bezirk ist bereit zur Weitergabe

Zur Übernahme wartet ein gut geführtes EG-Lokal im 21. Bezirk.



Nutzen Sie die einzigartige Chance und verwirklichen Sie sich Ihren Traum als Gastronom*in in einer beliebten Lage des 21. Bezirks in der Nähe des Floridsdorfer Spitzes.



Kunden genießen das Ambiente im gemütlich eingerichteten Gastraum und im Sommer die Atmosphäre im Gastgarten.



Hardfacts:



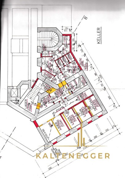
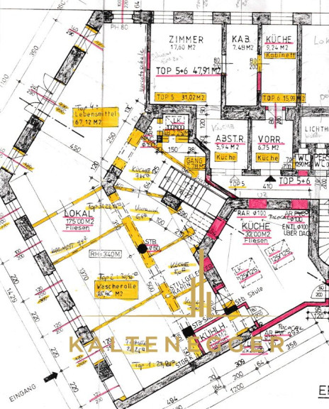
  • Das Lokal hat im EG eine Größe von ca. 175 m²
  • Zusätzliche 2 Lagerräume im Keller und ein großes Kellerabteil
  • Die Damentoilette besteht aus 3 WCs, die Herrentoilette aus 2 WCs und 3 Pissoir
  • Das Lokal ist mit einer Fußbodenheizung ausgestattet und wird mittels Gas beheizt
  • Der Gastgarten hat eine Größe von ca. 41,80 m² und ist mit einer elektrischen Markise bestückt; 30 Verabreichungsplätze bewilligt
  • Gastraum mit ca. 40 Verabreichungsplätzen; ca. 80 Verabreichungsplätze bewilligt
  • Aufrechte Betriebsanlagengenehmigung durch gute Führung seit Jahrzehnten mit der Konzession: "Gastgewerbe in der Betriebsart eines Restaurants mit den Berechtigungen nach § 189 Abs.1, z.2, 3 und 4 Gewo 1973"


Mietpreis: 2.338,07 € + 20 % = 2.805,69 €



Mietdauer: unbefristet



Kaution: 3 Bruttomonatsmieten



Ablöse: 110.000,00 € + 20 % USt. = 132.000,00 €



Hinweis gemäß Energieausweisvorlagegesetz: Ein Energieausweis wurde vom derzeitigen Mieter, nach unserer Aufklärung über die ab 1.12.2012 geltende generelle Vorlagepflicht, sowie Aufforderung zu seiner Erstellung noch nicht vorgelegt. Daher gilt zumindest eine dem Alter und der Art des Gebäudes entsprechende Gesamtenergieeffizienz als vereinbart. Wir übernehmen keinerlei Gewähr oder Haftung für die tatsächliche Energieeffizienz der angebotenen Immobilie.



Zögern Sie nicht und senden Sie mir gerne eine Anfrage für dieses Lokal - ich freue mich bereits jetzt auf eine Besichtigung mit Ihnen!


Der Vermittler ist als Doppelmakler tätig.

Eckdaten Objektnr. 5545

Art: Gastgewerbe
Land: Österreich
Zustand: Gepflegt
Möbliert: Voll
Kaltmiete (netto): 1.887,24 €
Kaltmiete: 2.338,07 €
Betriebskosten: 354,66 €
MwSt Gesamt: 467,61 €
Nutzfläche: 175,00 m²
Bäder: 1
WC: 3
Garten: 41,80 m²
Keller: 150,00 m²
Nebenkostenübersicht Miete Immobilie merken Exposé

Ausstattung

Fliesen, Gas, Etagenheizung, Dusche


Immobilie anfragen


Ihre persönliche Beratung

Kaltenegger Realitäten GmbH

Pia Zobok

Kaltenegger Realitäten GmbH

H +43 660 2527118