Bestlage nahe Belvedere! Luxuriöse 3-Zimmer-Erstbezug-Dachgeschoss-Wohnung mit zwei Balkonen in historischem Gebäude

Wohnung - Dachgeschoß, 1030 Wien


Beschreibung der Immobilie

Bestlage nahe Belvedere! Luxuriöse 3-Zimmer-Erstbezug-Dachgeschoss-Wohnung mit zwei Balkonen in historischem Gebäude

Zum sofortigen Verkauf gelangt eine luxuriöse ca. 103 m² große, lichtdurchflutete Dachgeschoss-Wohnung mit einem ca. 10 m² Balkon sowie einer 8 m² großen Terrasse in einem historischen Gebäude. Der zweigeschossige Dachgeschoss-Ausbau wurde soeben fertiggestellt.



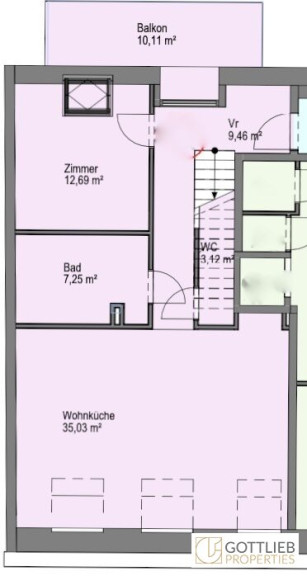
Man betritt die Wohnung über den Vorraum und gelangt von hier aus zentral in den großzügigen Wohn-Ess-Bereich, eines der beiden Schlafzimmer sowie ins Wellness-Bad und in die separate Toilette. Der hofseitig gelegene Balkon ist ebenfalls von Vorzimmer aus begehbar.



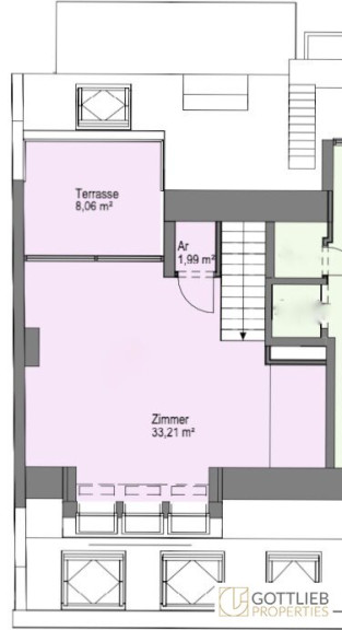
Über eine Treppe erreicht man das Obergeschoss, in dem sich ein weiteres Schlafzimmer mit Ausgang auf die Terrasse sowie ein Abstellraum befinden.



Das historische Haus mit außergewöhnlicher Geschichte wurde im Jahre 1892 vom Kunst-Tischler des Kaisers Franz Joseph I. in der damaligen Vorstadt als Einfamilienhaus erbaut. Das imposante Eingangstor samt weitläufiger Eingangshalle verleiht dem Haus eine zeitlose Eleganz. Durch einen gepflegten, begrünten Innenhof im Hause sowie im Nebengebäude wirken die Wohnungen gartenseitig wie eine grüne Oase.



Im Haus befindet sich auch ein familiengeführtes Apartmenthaus ohne Gastronomie. Dies bietet somit eine zusätzliche Sicherheit und Aufsicht für das gesamte Gebäude.



In unmittelbarer Nähe können PKW-Stellplätze um € 120,00 inklusive USt. p.M. angemietet werden.



Im sanierten Keller sind Kellerabteile für die Dachgeschoss-Wohnungen in Planung.





+ absolute Grünruhelage



+ erstes und zweites Dachgeschoss



+ ca. 103,61 m² Wohnfläche



+ ca. 10,11 m² Balkon im ersten Dachgeschoss



+ ca. 8,06 m² Terrasse im zweiten Dachgeschoss





Erstes Dachgeschoss



+ ca. 35,03 m² großzügiger Wohn-Ess-Bereich mit offener Wohnküche



+ ca. 12,69 m² Schlafzimmer



+ ca. 10,11 m² Balkon



+ ca. 7,25 m² Wannenbad mit separater Dusche und Doppelwaschbecken



+ separate Toilette mit Handwaschbecken



+ Vorraum mit integrierter Waschmaschine und Trockner der Marke "Siemens"



+ Treppenaufgang zum zweiten Dachgeschoss





Zweites Dachgeschoss



+ ca. 33,21 m² Schlafzimmer mit direktem Zugang zur



+ ca. 8,06 m² Terrasse mit nordseitigem Gartenblick



+ ca. 2,00 m² Abstellraum





Ausstattung



+ Fußbodenheizung mit zentraler Versorgung



+ Kühldecke mit zentraler Versorgung



+ Luftwärmepumpe / Zentralheizung



+ BUS-System



+ Parkettböden Eiche geölt mit Fischgrät-Verlegung der Marke "Edeldielen Manufaktur"



+ exklusive Materialien Silestone und Dekton von "Cosentino" in Küche und Nassräumen



+ hochwertige Fermacell-Wände und Decken



+ Bad mit maßgefertigter Dusche, Badewanne, Doppelwaschbecken mit Unterschrank und beleuchtetem Spiegel



+ komplett ausgestattete Küche mit Kühl-Gefrier-Kombination, selbstreinigendem Backofen, Dampfgarer und Geschirrspüler der Marke "Siemens" sowie Induktionsherd mit automatischer Absaugung der Marke "Bora"



+ elektrisch bedienbare Fenster der Marke "Velux" mit Aussen- und Innenrollos und Sensoren, selbstschließend bei Regen, über App bei Wind und Sonneneinstrahlung 



+ Einbau- und Aufbaulampen der Firma DSL



+ Lichtplanung der Firma Franke



+ Toilette mit selbstreinigender Dusche der Marken "Meissen Keramik" / "Geberit"



+ Sicherheitseingangstüre WK II mit elektronisch ansteuerbarer Falle bzw. Motorzylinder



+ automatische Balkon- und Terrassenbewässerung mit frostsicherem Ventil der Firma Kemper





Lage und Infrastruktur



Alle Geschäfte des täglichen Bedarfs sind fußläufig erreichbar.



In unmittelbarer Nähe befinden sich Kindergärten, Schulen, das Krankenhaus Klinik Landstraße und Naherholungsgebiete, wie der Schlosspark Belvedere sowie der grüne Prater.





Verkehrsanbindung



Die Wohnung liegt in einer verkehrsberuhigten 30er Zone und befindet sich in einer ruhigen Einbahnstraße



+ U-Bahn-Linie U3



+ S-Bahn-Station "Rennweg"



+ Straßenbahn-Linien O und 71



+ Autobahn A2



+ Ost-Autobahn A4 Richtung Flughafen Schwechat





Sonstiges



In unmittelbarer Nähe können PKW-Stellplätze um € 120,00 inklusive USt. p.M. angemietet werden.



Im sanierten Keller sind Kellerabteile für die Dachgeschoss-Wohnungen in Planung.



Im selben Gebäude kommen weitere Dachgeschoss-Wohnungen zwischen 93,00 m2 und 106,00 m2 zum sofortigen Verkauf.



Wir ersuchen um Verständnis, dass wir aufgrund unserer Nachweispflicht gegenüber dem Eigentümer nur Anfragen mit vollständigen Kontaktdaten (Name, Adresse, Mobilnummer, Email) bearbeiten können.


Wir weisen darauf hin, dass zwischen dem Vermittler und dem zu vermittelnden Dritten ein familiäres oder wirtschaftliches Naheverhältnis besteht.


Der Vermittler ist als Doppelmakler tätig.

Infrastruktur / Entfernungen

Gesundheit
Arzt <500m
Apotheke <500m
Klinik <1.000m
Krankenhaus <500m

Kinder & Schulen
Schule <500m
Kindergarten <500m
Universität <1.000m
Höhere Schule <500m

Nahversorgung
Supermarkt <500m
Bäckerei <500m
Einkaufszentrum <1.000m

Sonstige
Geldautomat <500m
Bank <500m
Post <500m
Polizei <500m

Verkehr
Bus <500m
U-Bahn <1.000m
Straßenbahn <500m
Bahnhof <500m
Autobahnanschluss <2.000m

Angaben Entfernung Luftlinie / Quelle: OpenStreetMap

Eckdaten Objektnr. 3954

Art: Wohnung - Dachgeschoß
Land: Österreich
Baujahr: 1892
Zustand: Erstbezug
Alter: Altbau
Kaufpreis: 980.000,00
Betriebskosten: 280,36 €
Heizkosten: 102,41 €
MwSt Gesamt: 52,44 €
Wohnfläche: 103,61 m²
Nutzfläche: 116,00 m²
Zimmer: 3
Bäder: 1
WC: 1
Balkone: 1
Terrassen: 1
Heizwärmebedarf:  B  34,70 kWh/m²a
fGEE:  A  0,73
Nebenkostenübersicht Kauf Immobilie merken Exposé

Ausstattung

Parkett, Dielenboden, Steinboden, Fußbodenheizung, Zentralheizung, Wohnküche / offene Küche, Personenaufzug, Nordbalkon, Badewanne, Dusche, Kabel/Satelliten-TV


Immobilie anfragen


Ihre persönliche Beratung

Desirée Gottlieb

Gottlieb Properties Immobilientreuhand GmbH

H + 43 699 14702557