Helle und charmante Familienwohnung mit Loggia – umgeben von Grün, im Herzen von Penzing

Wohnung , 1140 Wien


Die Wohnung befindet sich in einer ruhigen und gepflegten Wohnlage mit sehr guter Infrastruktur. Einkaufsmöglichkeiten, Schulen, öffentliche Verkehrsmittel und Freizeitangebote sind in wenigen Minuten erreichbar.

Beschreibung der Immobilie

Helle und charmante Familienwohnung mit Loggia – umgeben von Grün, im Herzen von Penzing

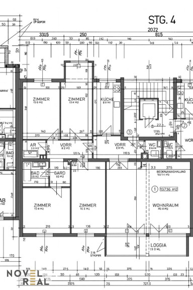
Charmante, geräumige Eigentumswohnung mit vier Schlafzimmern, Loggia und zwei Tiefgaragenstellplätzen und zusätzlichem Lagerraum



Diese helle und gepflegte Wohnung bietet ein großzügiges Raumgefühl, eine funktionale Aufteilung und eine ruhige Wohnlage. Sie ist ideal für Familien oder Menschen, die viel Platz und eine angenehme Wohnatmosphäre schätzen.



  • Ein weitläufiger Wohn- und Essbereich, der durch große Fensterflächen von Tageslicht durchflutet wird und einen direkten Zugang zur Loggia bietet. Der Ausblick schafft eine Verbindung zwischen Innen und Außen – ein Ort, an dem man den Tag mit Weitblick und Gelassenheit genießen kann
  • Separate Küche: Praktisch geschnitten, mit ausreichend Arbeitsfläche und Stauraum. Die bestehende Küche ist älter, aber gepflegt, und lässt sich bei Wunsch nach eigenem Stil gut modernisieren.
  • Ein Hauptschlafzimmer mit ruhiger Ausrichtung und viel Platz für einen großen Schrank.
  • Drei weitere Zimmer, flexibel nutzbar als Kinder-, Gäste- oder Arbeitszimmer.
  • Badezimmer: Mit Badewanne, Waschbecken und neutraler Ausstattung – funktional und gepflegt.
  • Separates WC
  • Abstellraum innerhalb der Wohnung bieten zusätzlichen Komfort.
  • Vorraum: Großzügig gestaltet und zentral gelegen, mit praktischen Staumöglichkeiten.


Besonders hervorzuheben ist die große überdachte Loggia, die vom Wohnbereich aus zugänglich ist und sich ideal für entspannte Stunden im Freien eignet.



Zusätzliche Flächen



Zur Wohnung gehören zwei Tiefgaragenstellplätze, die bequem und sicher direkt vom Haus aus erreichbar sind, sowie ein zusätzlicher Lagerraum. Diese zusätzlichen Flächen bieten viel Komfort und machen den Alltag besonders angenehm.



Lage



Die Wohnung befindet sich in einer ruhigen und gepflegten Wohnlage mit sehr guter Infrastruktur. Einkaufsmöglichkeiten, Schulen, öffentliche Verkehrsmittel und Freizeitangebote sind in wenigen Minuten erreichbar. Gleichzeitig bietet die Umgebung viel Grün und eine angenehme Wohnqualität – perfekt für alle, die städtische Nähe und Erholung gleichermaßen schätzen.



Preisübersicht



  • Preis der Wohnung: € 599.000
  • Gesamtpreis inkl. zwei Tiefgaragenstellplätzen und zusätzlichem Abstellraum: € 670.000


Die Immobilie wird ausschließlich im Gesamtpaket mit Garage und Lagerraum angeboten. Die genannten Einzelpreise dienen lediglich der Wertdarstellung der jeweiligen Bestandteile



 



Lage und Infrastruktur:



Die Wohnung liegt im 14. Wiener Gemeindebezirk Penzing, einem ruhigen Wohngebiet am westlichen Stadtrand von Wien. Die Lage zeichnet sich durch eine gute Anbindung an öffentliche Verkehrsmittel und eine grüne Umgebung aus. In unmittelbarer Nähe befindet sich der Dehnepark, ein weitläufiges Naherholungsgebiet mit Waldspielplatz, das zu Spaziergängen und Freizeitaktivitäten einlädt. Auch das Hütteldorfer Bad ist nicht weit entfernt.



Die Infrastruktur ist gut ausgebaut. Es gibt Einkaufsmöglichkeiten, Schulen, Kindergärten und medizinische Einrichtungen in der Umgebung. Die Wohngegend ist familienfreundlich und bietet eine angenehmeLebensqualität. Die Verkehrsanbindung erfolgt über Buslinien sowie die nahegelegene Linzer Straße, die eine direkte Verbindung ins Stadtzentrum ermöglicht.



Öffentliche Verkehrsmittel:



•             Buslinien: Die Buslinie 47A hält in der Nähe und verbindet die Gegend mit Hütteldorf (U-Bahn-Linie U4 und Schnellbahn) sowie anderen Teilen von Penzing.



•             Straßenbahn: Die Linie 49 fährt entlang der Linzer Straße und bietet eine direkte Verbindung Richtung Innenstadt bis zur Volkstheater-Station (U2/U3).



•             U-Bahn: Die nächstgelegene U-Bahn-Station ist Hütteldorf (U4), die mit dem Bus oder zu Fuß erreichbar ist.



•             S-Bahn: Der Bahnhof Wien Hütteldorf bietet Zugang zu mehreren S-Bahn-Linien sowie Regionalzügen.



Für die Vereinbarung eines Termins kontaktieren Sie Herr Mag. Michael Hofer telefonisch unter +43 680 111 7660 oder per E-Mail: mh@novel-real.at.



 



Aus rechtlichen Gründen und aufgrund der großen Nachfragen bitten wir um Verständnis, dass wir nur Anfragen per Mail beantworten, wenn Sie uns Ihren vollständigen Namen samt Mailadresse und Mobilnummer bekanntgeben.



Alle Angaben basieren alleinig auf Informationen, die uns von unserem Auftraggeber übermittelt wurden. Trotz aller Sorgfalt können wir für die Richtigkeit, Vollständigkeit und Aktualität dieser Angaben keine Gewähr übernehmen. Jegliche Weitergabe der übermittelten Daten an Dritte ist nicht gestattet. Der Maklervertrag kommt durch schriftliche Vereinbarung oder Inanspruchnahme unserer Maklertätigkeit zustande. Der Makler kann als Doppelmakler tätig werden. Sollte das von uns nachgewiesene Objekt bereits bekannt sein, teilen sie uns dies bitte unverzüglich mit.



Die Maklergebühr ist ausschließlich bei Zustandekommen eines gültigen Rechtsgeschäfts fällig und vom Mieter/Vermieter an Novel Real Immobilien GmbH zu zahlen. Es wird ausdrücklich auf die Nebenkostenübersicht hingewiesen. Bei den Visualisierungen und Abbildungen der Immobilie (insbesondere von Inneneinrichtungen) kann es sich um Symbolfotos bzw. fototechnisch optimierte Fotos handeln. Hiermit weisen wir auf das Bestehen eines wirtschaftlichen Naheverhältnisses zum Verkäufer hin. 




Infrastruktur / Entfernungen

Gesundheit
Arzt <500m
Apotheke <500m
Klinik <2.000m
Krankenhaus <1.000m

Kinder & Schulen
Schule <500m
Kindergarten <500m
Universität <2.500m
Höhere Schule <4.500m

Nahversorgung
Supermarkt <500m
Bäckerei <500m
Einkaufszentrum <3.500m

Sonstige
Geldautomat <500m
Bank <500m
Post <2.000m
Polizei <500m

Verkehr
Bus <500m
U-Bahn <1.000m
Straßenbahn <500m
Bahnhof <1.000m
Autobahnanschluss <3.500m

Angaben Entfernung Luftlinie / Quelle: OpenStreetMap

Eckdaten Objektnr. 6380

Art: Wohnung
Land: Österreich
Baujahr: 1983
Kaufpreis: 599.000,00
Wohnfläche: 137,36 m²
Nutzfläche: 137,36 m²
Zimmer: 5,50
Bäder: 1
WC: 2
Stellplätze: 2
Heizwärmebedarf:  C  62,20 kWh/m²a
fGEE:  C  1,50
Nebenkostenübersicht Kauf Immobilie merken Exposé

Ausstattung

Fliesen, Parkett, Etagenheizung, Einbauküche, Personenaufzug, Garage, Wasch/Trockenraum


Immobilie anfragen


Ihre persönliche Beratung

Novel Real Immobilien GmbH

Mag. Michael Hofer

Novel Real Immobilien GmbH

T +43 (1) 3614014

H +43 680 111 76 60

F +43 (1) 3614014-15