Moderne 2-Zimmer-Wohnung mit Balkon in bester U-Bahn-Nähe - Ihr neues Zuhause wartet!

Wohnung , 1220 Wien


Diese Wohnung im 22. Bezirk von Wien bietet eine ideale Lage für alle Lebensbereiche. In unmittelbarer Nähe finden Sie Ärzte, Apotheken und Kliniken für Ihre Gesundheitsversorgung. Schulen, Kindergärten und sogar eine Universität sorgen für eine ausgezeichnete Bildung. Supermärkte, Bäckereien und Banken sind fußläufig erreichbar. Öffentliche Verkehrsanbindungen wie Bus, U-Bahn, Straßenbahn und Bahnhof gewährleisten eine optimale Erreichbarkeit der Stadt. Ein perfekter Ort für Familien und Berufstätige!

Beschreibung der Immobilie

Moderne 2-Zimmer-Wohnung mit Balkon in bester U-Bahn-Nähe - Ihr neues Zuhause wartet!

Lassen Sie Sich von unserer 360° - 3D Besichtigung überzeugen - Von der Parkbank, vom Sofa oder auch vom Bett, gemütlich über Handy, Tablett, Computer oder Ihrem Internetfähigen Fernseher.



360°- 3D Grad Besichtigung Link: 360 GRAD 



https://my.matterport.com/show/?m=1ghyBBGt4NY





Ausstattung & Wohnmerkmale



• Fahrradraum im Haus

• Kellerabteil Nr. 26 inkludiert

• Großzügiger Lift bis in den 5. Stock

• Wohnungseingang Tür 26

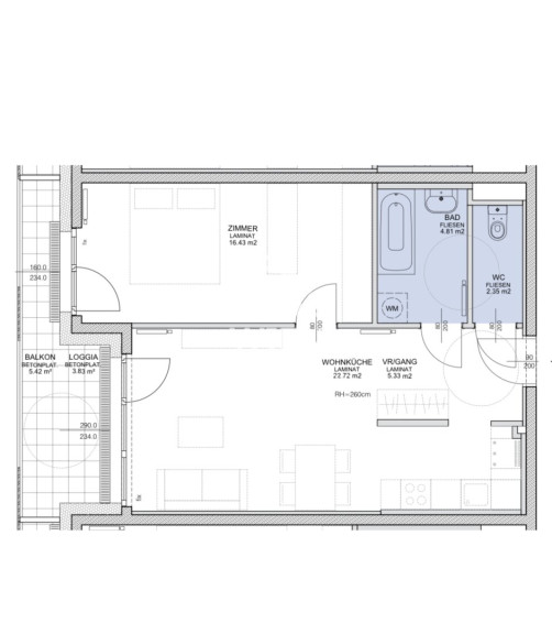
• WC separat

• Badezimmer mit Badewanne und Lüftung

• Parkettboden, ebenfalls mit Lüftung

• Schlafzimmer mit Balkon

• Wohn‑/Esszimmer mit zusätzlichem Balkon

• Wohnküche

• Möbliert oder unmöbliert möglich

• Voll ausgestattete Küche inkl. Besteck

• DAN‑Einbauküche mit AEG‑Geräten, neu und unbenutzt

• Elektronische Außenjalousien in Wohn‑ und Schlafzimmer (hervorragender Hitzeschutz)

• Westbalkon

• Fernwärme über Radiatoren, sehr geringe Heizkosten durch gute Isolierung




Kosten

• exklusive Warmwasser & Heizung ca. 100 € per Akonto 
• Strom nach Verbrauch



Parken

• Parkgarage im Haus für 120 € / Monat anmietbar

• Parkplätze rund ums Haus vorhanden, jedoch meist nicht frei



Bitte beachten Sie, dass wir aufgrund der Nachweispflicht gegenüber dem Eigentümer nur Anfragen mit vollständiger Angabe der Anschrift sowie Angaben zur Person (Name, Telefonnummer, E-Mail) bearbeiten können.


Der Immobilienmakler erklärt, dass er – entgegen dem in der Immobilienwirtschaft üblichen Geschäftsgebrauch des Doppelmaklers – einseitig nur für den Vermieter tätig ist.

Infrastruktur / Entfernungen

Gesundheit
Arzt <500m
Apotheke <1.000m
Klinik <1.000m
Krankenhaus <4.000m

Kinder & Schulen
Schule <500m
Kindergarten <500m
Universität <1.000m
Höhere Schule <1.000m

Nahversorgung
Supermarkt <500m
Bäckerei <500m
Einkaufszentrum <4.000m

Sonstige
Geldautomat <2.000m
Bank <1.000m
Post <1.000m
Polizei <1.000m

Verkehr
Bus <500m
U-Bahn <500m
Straßenbahn <1.000m
Bahnhof <500m
Autobahnanschluss <4.000m

Angaben Entfernung Luftlinie / Quelle: OpenStreetMap

Eckdaten Objektnr. 56309

Art: Wohnung
Land: Österreich
Baujahr: 2019
Alter: Neubau
Gesamtmiete: 1.100,00
Kaltmiete (netto): 1.000,00 €
Kaltmiete: 1.000,00 €
MwSt Gesamt: 100,00 €
Wohnfläche: 51,64 m²
Zimmer: 2
Bäder: 1
WC: 1
Heizwärmebedarf:  A  17,31 kWh/m²a
fGEE:  A+  0,69
Nebenkostenübersicht Miete Immobilie merken Exposé

Ausstattung

Parkett, Fernwärme, Wohnküche / offene Küche, Personenaufzug, Westbalkon, Badewanne


Immobilie anfragen


Ihre persönliche Beratung

Real Immo Wien Immobilientreuhand - Inh. Gerald Frank

Philipp Stummer

Real Immo Wien Immobilientreuhand

T +4315120488

H +4366499651213