Perfekte Anlegerwohnung in Top-Lage I Hofruhelage
Wohnung
,
1100
Wien
Beschreibung der Immobilie
Perfekte Anlegerwohnung in Top-Lage I Hofruhelage
PROJEKTBESCHREIBUNGIn der Muhrengasse 58 sind 19 smarte Neubauwohnungen fertiggestellt! Das Projekt besticht durch die unmittelbare Nähe zur U1 und ist unweit der belebten Einkaufsmeile Favoritenstraße gelegen. Hier befinden sich attraktive Wohnräume, verpackt in einer zeitgenössich-modernen Fassade, die das Stadtviertel beleben und bereichern werden - genau dort, wo urbanes Leben auf Zukunftsvision trifft.
Aufgrund der smarten Grundrisse sowie der zentralen Lage, verspricht das Objekt seinen Anlegern eine besonders gute Vermietbarkeit!
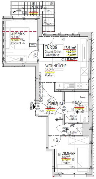
Die Wohnung T8 verfügt über 47,91m² Wohnfläche, und teilt sich wie folgt auf:
Vorraum, Wohnküche mit Zugang zum Balkon, Schlafzimmer (hofseitig), Schlafzimmer (straßenseitig), Badezimmer, WC separat
AUSSTATTUNG
• Exklusive Parkettböden in allen Wohn- und Schlafräumen
• 3-fach verglaste Fenster
• Großzügige Terrassen, Balkone oder Loggien
• Großformatige Fliesen in den Sanitärbereichen.
• bodenbündige Duschen mit qualitativ hochwertigen Armaturen
• Elektrisch Sonnenschutz.
• Nachhaltiges Heizen mittels Fernwärme und Fußbodenheizung
• Kabel-TV Anschlüsse Multimediadose
• Massive Wohnungseingangstüren
• Großzügige Einlagerungsräume
• Ausreichend Kinderwagenabstellplätze (mit dem Aufzug erreichbar)
• Ausreichend Fahrradabstellplätze (mit dem Aufzug erreichbar)
• Energiekennzahlen:
Lage & Infrastruktur
Selten präsentiert sich ein Stadtteil so dynamisch, aufstrebend, authentisch und im Aufbruch wie Favoriten. Man befindet sich eingebettet zwischen der Favoritenstraße & Laxenburger Straße, und doch nur wenige Minuten von der Wiener Innenstadt entfernt.
Öffentliche Anbindung:
U1-Station Troststraße: 300m
Straßenbahn: 11, 0
Buslinie: 65A, 66A
Für weitere Rückfragen sowie einen persönlichen Termin zu diesen Projekt stehen wir Ihnen gerne zur Verfügung!
Eckdaten Objektnr. 141/84914
| Art: | Wohnung |
| Land: | Österreich |
| Baujahr: | 2025 |
| Alter: | Neubau |
| Kaufpreis: | 266.630,00 € |
| Kaufpreis / m²: | 5.530,60 € |
| Wohnfläche: | 48,21 m² |
| Zimmer: | 3 |
| Bäder: | 1 |
| WC: | 1 |
| Balkone: | 1 |
| Heizwärmebedarf: | B 25,60 kWh/m²a |
| fGEE: | A 0,75 |
Ausstattung
Personenaufzug
Ihre persönliche Beratung
Dieser Makler ist ein offizielles Mitglied des IR – ir.at Mehr Erfahren
