Erstbezug nach Sanierung - 3- Zimmerwohnung mit Loggia

Wohnung , 8600 Bruck an der Mur , Goethestraße 13


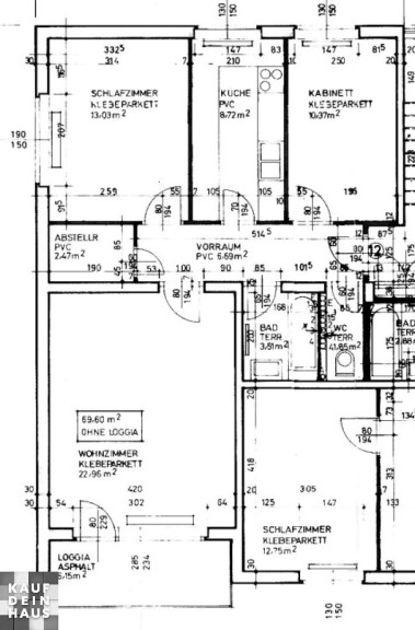
Beschreibung der Immobilie

Erstbezug nach Sanierung - 3- Zimmerwohnung mit Loggia

Diese Wohnung wird nach Mietzugsage für Sie saniert
Bilder vom derzeitigen Zustand



- Vorraum, Flur

- Wohn und Esszimmer

- Schlafzimmer

- Küche mit Fenster (die Wohnung wird mit Kücheneinrichtung vermietet)

- Badezimmer mit Dusche

- WC

- Abstellraum



Unbefristeter Mietvertrag
!!! PROVISIONSFREI !!!


Der Immobilienmakler erklärt, dass er – entgegen dem in der Immobilienwirtschaft üblichen Geschäftsgebrauch des Doppelmaklers – einseitig nur für den Vermieter tätig ist.

Infrastruktur / Entfernungen

Gesundheit
Arzt <225m
Apotheke <75m
Krankenhaus <1.500m

Kinder & Schulen
Schule <275m
Kindergarten <450m
Universität <4.100m

Nahversorgung
Supermarkt <325m
Bäckerei <150m
Einkaufszentrum <600m

Sonstige
Bank <275m
Geldautomat <375m
Post <475m
Polizei <3.875m

Verkehr
Bus <125m
Autobahnanschluss <1.175m
Bahnhof <1.275m
Flughafen <7.400m

Angaben Entfernung Luftlinie / Quelle: OpenStreetMap

Eckdaten Objektnr. 2303

Art: Wohnung
Land: Österreich
Baujahr: 1967
Gesamtmiete: 761,52
Kaltmiete (netto): 379,38 €
Kaltmiete: 562,01 €
Betriebskosten: 182,63 €
Heizkosten: 114,65 €
MwSt Gesamt: 84,86 €
Wohnfläche: 67,44 m²
Nutzfläche: 73,50 m²
Zimmer: 3,50
Bäder: 1
WC: 1
Heizwärmebedarf: 133,90 kWh/m²a
Nebenkostenübersicht Miete Immobilie merken Exposé

Ausstattung

Fliesen, Laminatboden, Zentralheizung, Einbauküche, Personenaufzug, Dusche


Immobilie anfragen


Ihre persönliche Beratung

KDH Immobilien GmbH

Markus Unger-Ullmann

KDH Immobilien GmbH

T +43 660 32 13 992