Erstbezug: 3-Zimmer Altbau, Nähe U6 Währingerstraße

Wohnung , 1180 Wien


Semperstraße, Wifi, Albertus Magnus Schule

Beschreibung der Immobilie

Erstbezug: 3-Zimmer Altbau, Nähe U6 Währingerstraße

Erstbezuzg: 3-Zimmer Altbauwohnung in der Semperstraße, Nähe U6 Währinger Straße, Wifi und Albertus Magnus Gymnasium.



Das Haus



Gepflegter Altbau in zentraler Wiener Lage. Ruhelage durch verkehrsberuhigte Wohnstraße. Sehr gute Verkehrsanbindung durch die U6 (Währingerstraße), die Autobusse 35A, 37A und 40A. Sehr gute Infrastruktur in nächster Umgebung.



Die Wohnung



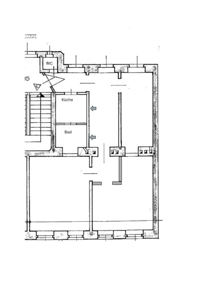
Die Wohnung wurde 2026 aufwendig saniert, ist 77,80 m² groß und liegt im 4. Stock ohne Lift. Die Wohnung besteht aus:



  • Vorzimmer
  • drei getrennt begehbaren Zimmer
  • Küche mit Einbauküche, Geräten und Geschirrspüler
  • Badezimmer mit Dusche und Waschmaschinenanschluss
  • separates WC


Man betritt die Wohnung über den Vorraum. Von hier sind alle Räume getrennt begehbar. Zwei Zimmer blicken straßenseitig auf die Semperstraße, das dritte Zimmer ist etwas kleiner und blickt in den grünen Innenhof. Das Badezimmer ist mit einer Dusche, einem Waschmaschinenanschluss und einem Waschbecken eingerichtet. In der Küche ist eine moderne Einbauküche eingebaut. Hervorzuheben ist die große Glasfläche von der Küche zum Vorraum. Die Wohnung ist ost-west ausgerichtet. Alle Räume sind hell und freundlich.



Hinweis: der beigefügte Grundriss ist schematisch und nicht maßstabsgetreu.



Weiters:



  • Erstbezug
  • helle Räume durch smarte Oberlichten
  • Telekabel, Waschmaschinenanschluss, Gegensprechanlage
  • Gasetagenheizung
  • Fahrradabstellmöglichkeit im Innenhof
  • Kellerabteil


Die Miete:



Die Wohnung wird auf fünf Jahre befristet vermietet. Die monatliche Miete beträgt EUR 1.135.- und besteht aus



  • Hauptmietzins EUR 831,73
  • Betriebskosten netto EUR 200.-
  • Umsatzsteuer EUR 103,27


Die Kaution beträgt EUR 4.000.-



Einmalige Bearbeitungsgebühr EUR 360.- (bzw. 480.- bei Bürgschaft)





Bei Interesse an der Wohnung senden Sie mir bitte eine Anfrage über die Anfragefunktion. Dann leite ich Ihnen gerne das Exposé der Wohnung weiter.




Der Immobilienmakler erklärt, dass er – entgegen dem in der Immobilienwirtschaft üblichen Geschäftsgebrauch des Doppelmaklers – einseitig nur für den Vermieter tätig ist.

Eckdaten Objektnr. 411

Art: Wohnung
Land: Österreich
Alter: Altbau
Gesamtmiete: 1.135,00
Kaltmiete (netto): 831,73 €
Kaltmiete: 1.031,73 €
Betriebskosten: 199,00 €
MwSt Gesamt: 103,27 €
Wohnfläche: 77,80 m²
Zimmer: 3
Bäder: 1
WC: 1
Keller: 2,00 m²
Heizwärmebedarf:  D  130,00 kWh/m²a
Nebenkostenübersicht Miete Immobilie merken Exposé

Ausstattung

Fliesen, Parkett, Gas, Einbauküche, Dusche, Kabel/Satelliten-TV


Immobilie anfragen


Ihre persönliche Beratung

Julius Opfermann

Adastra Immobilien - WMKM Opfermann e.U.

H +43 660 5956423