#SQ - ERSTBEZUG - VOLLSTÄNDIG SANIERTER ALTBAU MIT PERFEKTEM GRUNDRISS IN RUHIGER TRENDLAGE

Wohnung , 1170 Wien,Hernals


Diese stilvoll und hochwertig sanierte Altbauwohnung befindet sich in einer ruhigen Seitengasse genau an der Grenze zum 17. Bezirk Hernals im beliebten 16. Bezirk Ottakring mit ausgezeichneter Infrastruktur. Die U3-Station Ottakring ist in ca. 9 Gehminuten erreichbar. Nur rund 200 m entfernt befinden sich die Straßenbahnlinie 2 (Station Wilhelminenstraße) sowie die Buslinie 10A (Familienplatz). Über die Linie 2 erreichen Sie die U6-Station Josefstädter Straße in etwa 10 Minuten. Die Nahversorgung ist hervorragend: Ein Supermarkt liegt nur ca. 160 m entfernt, die Ottakringer Straße ist in etwa 3 Gehminuten, die Thaliastraße in rund 6 Gehminuten erreichbar. Das trendige Yppenplatz-Viertel mit seinen Märkten, Cafés und Lokalen erreichen Sie in ca. 15 Gehminuten. Erholung bietet der Lorenz-Bayer-Park in nur 5 Gehminuten, das Wilhelminenspital befindet sich ebenfalls in unmittelbarer Nähe. Insgesamt überzeugt die Lage durch kurze Wege, hervorragende Anbindung und angenehme Wohnruhe.

Beschreibung der Immobilie

#SQ - ERSTBEZUG - VOLLSTÄNDIG SANIERTER ALTBAU MIT PERFEKTEM GRUNDRISS IN RUHIGER TRENDLAGE

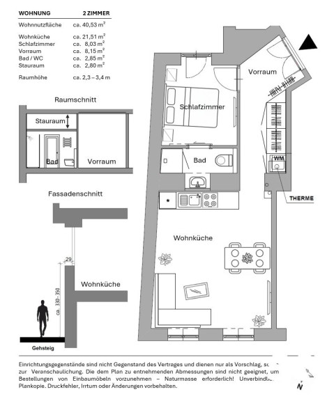
In einer ruhigen und zugleich trendigen Wohnlage des 16. Bezirks befindet sich diese außergewöhnlich gut geschnittene Altbauwohnung mit ca. 40,5 m² Wohnfläche. Sie liegt uneinsichtig im Hochparterre (Niveau 1. OG) eines gepflegten Hauses aus der Jahrhundertwende und überzeugt durch eine seltene Kombination aus Altbauflair, modernem Wohnkomfort und durchdachter Raumplanung.



Gerade im Altbau sind stimmige Grundrisse und zeitgemäße Ausstattung keine Selbstverständlichkeit – hier wurde beides auf höchstem Niveau vereint. Die lichte Raumhöhe von ca. 3,40 m in allen Aufenthaltsräumen, große Fensterflächen und ein französischer Balkon mit Blick in den absolut ruhigen, begrünten Innenhof schaffen ein offenes, angenehmes Wohngefühl mit viel Licht und Privatsphäre.



Der hervorragende Grundriss bietet:




  • eine großzügige Wohnküche mit ausreichend Platz für Küche, Esstisch und Wohnbereich,



  • ein ruhiges Schlafzimmer zum Innenhof mit direktem Badezimmerzugang,



  • einen zusätzlichen, clever integrierten Stauraum (ca. 2,8 m²),



  • sowie einen zentralen Vorraum, der Platz für einen großzügigen Einbauschrank bietet und in dem Waschmaschine und Therme elegant verborgen werden können.




Die Wohnung wurde soeben generalsaniert und wird als hochwertiger Erstbezug angeboten. Historische Elemente wie Stuckatur treffen hier auf ein modernes Beleuchtungskonzept mit stilvollen Wandleuchten, edle Materialien und zeitloses Design.




Ausstattungs-Highlights




  • Vollständig erneuerte Elektrik und Heizung



  • Bad mit Keramiken von Villeroy & Boch und Armaturen von Hansgrohe



  • Großformatiges Feinsteinzeug



  • Edles Eichenparkett im Fischgrätmuster



  • Hochwertiges, stimmiges Wohn- und Lichtkonzept



  • Französischer Balkon mit Blick in den ruhigen Innenhof





Eckdaten




  • Wohnfläche: ca. 40,5 m²



  • Zimmer: 2



  • Baujahr: ca. 1900 – Altbau



  • Zustand: Erstbezug nach Generalsanierung



  • Heizung: WOLF Gas-Etagenheizung mit Radiatoren



  • Böden: Fischgrät-Parkett & moderne Fliesen



  • Fenster: Isolier-Kunststofffenster mit Doppelverglasung



  • Sehr gute öffentliche Anbindung



  • Kaufpreis: € 222.750, -






Diese Wohnung ist eine echte Rarität im Altbau-Segment: perfekter Grundriss, hochwertige Sanierung und ein Wohngefühl, das man in dieser Größe nur selten findet. Ideal für Singles, Paare oder Anleger, die urbanen Lebensstil, Qualität und das Besondere suchen.



Kontaktdaten:



Bitte kontaktieren Sie Herrn Adam Brandis direkt über das Kontaktformular oder unter +43 699 814 70 580 sowie brandis@stadtquartier.at für weitere Fragen und Besichtigungen.



Wir freuen uns auf Ihre Anfrage!

Weitere Objekte auf www.stadtquartier.at





Disclaimer: Die in den Bildern dargestellten Einrichtungen sind als Vorschläge zu verstehen und wurden mit KI in die originalen Bilder eingefügt.


Wir weisen darauf hin, dass zwischen dem Vermittler und dem zu vermittelnden Dritten ein familiäres oder wirtschaftliches Naheverhältnis besteht.


Der Vermittler ist als Doppelmakler tätig.

Infrastruktur / Entfernungen

Gesundheit
Arzt <500m
Apotheke <500m
Klinik <500m
Krankenhaus <1.500m

Kinder & Schulen
Schule <500m
Kindergarten <500m
Universität <1.500m
Höhere Schule <1.000m

Nahversorgung
Supermarkt <500m
Bäckerei <500m
Einkaufszentrum <1.000m

Sonstige
Geldautomat <500m
Bank <500m
Post <500m
Polizei <500m

Verkehr
Bus <500m
U-Bahn <1.000m
Straßenbahn <500m
Bahnhof <1.000m
Autobahnanschluss <4.500m

Angaben Entfernung Luftlinie / Quelle: OpenStreetMap

Eckdaten Objektnr. 21254

Art: Wohnung
Land: Österreich
Baujahr: 1900
Zustand: Erstbezug
Alter: Altbau
Kaufpreis: 222.750,00
Betriebskosten: 112,39 €
MwSt Gesamt: 11,32 €
Wohnfläche: 40,50 m²
Zimmer: 2
Bäder: 1
WC: 1
Heizwärmebedarf:  D  133,00 kWh/m²a
fGEE:  D  2,31
Nebenkostenübersicht Kauf Immobilie merken Exposé

Ausstattung

Parkett, Fliesen, Gas, Etagenheizung, Dusche, Kabel/Satelliten-TV


Immobilie anfragen


Ihre persönliche Beratung

STADTQUARTIER Home GmbH

Adam Brandis

STADTQUARTIER Real Estate Group

T +43 699 81470580

H +43 699 81470580

F +43 1 796155815