Altbau wie man ihn liebt! Währing von seiner besten Seite! Traumhaft saniertes Altbauhaus + Ruhige Seitengasse + Super beliebtes Grätzl! Viel Grün + Viel Charme! Jetzt zugreifen!

Wohnung , 1180 Wien , Hofstattgasse


BESTLAGE! Ein traumhaft schönes Altbauhaus in 1180 Wien! Inn-Treffs, traditionelle Cafés, Szenelokale, Beisl und Restaurants, vom guten Chinesen bis zum typischen Italiener, sowie zahlreiche Supermärkte ums Eck aber auch der Kutschkermarkt, mit täglich frischen Waren und vielen prächtigen Marktständen sind nur ein Teil des florierenden Lebens in diesem wunderbaren Grätzl. Auf der Währingerstraße finden Sie außerdem alle Geschäfte des täglichen Bedarfs - Billa, Hofer, DM und Denn´s Biomarkt befinden sich quasi ums Eck! Dieses Währing bietet sowohl Zentrumsnähe und eine perfekte Anbindung in die City als auch die Gelegenheit in Kürze zu den schönsten Wiener Parks wie dem Türkenschanzpark oder dem Pötzleinsdorfer Schlosspark, sowie zu den Heurigen am Schafberg oder in Neustift am Walde zu gelangen. Hier schlägt das Herz von Kultur- und Sportbegeisterten höher! Zahlreiche Schulen, eine hohe Dichte an Ärzten, Krankenhäuser sowie Privatkliniken und Universitäten runden eine perfekte Infrastruktur ab! Öffentliche Anbindung: Straßenbahn 40, 41 // Bus N41, 37A, 40A

Beschreibung der Immobilie

Altbau wie man ihn liebt! Währing von seiner besten Seite! Traumhaft saniertes Altbauhaus + Ruhige Seitengasse + Super beliebtes Grätzl! Viel Grün + Viel Charme! Jetzt zugreifen!

Altbau wie man ihn liebt! Währing von seiner besten Seite! Traumhaft saniertes Altbauhaus + Ruhige Seitengasse + Super beliebtes Grätzl! Viel Grün + Viel Charme! Jetzt zugreifen!



Worauf warten Sie?





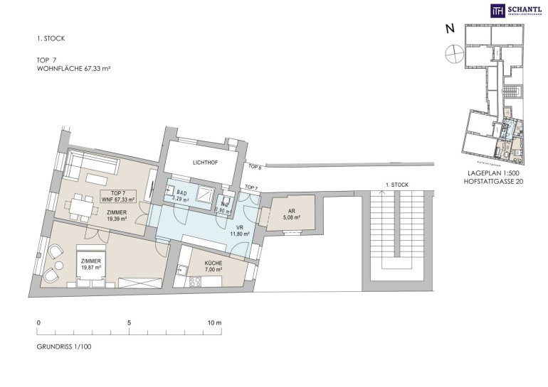
Ihre neue Wohnung am 1.Stock (ein Lift wird noch auf Kosten des Verkäufers eingebaut) in einem traumhaft schönen Altbauhaus wird Sie begeistern und teilt sich in einen geräumigen Vorraum mit Platz für eine Garderobe und Stauraum, ein separates WC, ein schönes Badezimmer mit Dusche und Waschmaschinenanschluss, eine separate Küche, ein gemütliches Wohn-Esszimmer sowie ein großes Schlafzimmer und ein weiteres Zimmer, welches sich zum Beispiel als Arbeitszimmer gut eignet.



Highlights: Flügeltüren / Fischgrät-Parkett / Traumhaft saniertes Altbgebäude



Ein Aufzug wird vertraglich zugesichert und vom Verkäufer auf dessen Kosten errichtet - Fertigstellung innerhalb von 3 Jahren!





Hohe Räume, große Gefühle - klassischer Altbau in ruhiger Bestlage von Währing!



Kaufpreis: € 535.000.-



Wohnfläche: ca. 67,33m² + Kellerabteil



Bezug: ab sofort



Nicht lange zögern! Dieses Schmuckstück wird nicht lange zu haben sein...





Bei konkretem Interesse senden wir Ihnen sehr gerne weiterführende Dokumente zu, wie:



o Grundbuchauszug



o Wohnungseigentumsvertrag



o Nutzwertgutachten



o Eigentümerversammlungsprotokoll (Falls vorhanden) etc...





Unser Service für Sie: Wenn Sie sich für diese Immobilie entschieden haben, begleiten wir Sie gerne vom Kaufanbot weg inkl. Klärung von Sonderwünschen und der Vertragsunterzeichnung über die Wohnungsübergabe bis hin zu diversen Ummeldungen wie Strom und Gas. Entsprechende Formulare oder auch Meldezettel stellen wir Ihnen sehr gerne zur Verfügung.



Gerne unterstützen wir Sie auch bei der Finanzierung Ihres Traumobjekts und finden mit unseren langjährigen Partnern die besten Konditionen für Sie.



Vereinbaren Sie noch heute einen Termin, wir beraten Sie gerne!



www.schantl-ith.at


Wir weisen darauf hin, dass zwischen dem Vermittler und dem zu vermittelnden Dritten ein familiäres oder wirtschaftliches Naheverhältnis besteht.


Der Vermittler ist als Doppelmakler tätig.

Infrastruktur / Entfernungen

Gesundheit
Arzt <250m
Apotheke <250m
Klinik <750m
Krankenhaus <1.000m

Kinder & Schulen
Schule <250m
Kindergarten <250m
Universität <1.000m
Höhere Schule <250m

Nahversorgung
Supermarkt <250m
Bäckerei <250m
Einkaufszentrum <1.250m

Sonstige
Geldautomat <500m
Bank <500m
Post <500m
Polizei <500m

Verkehr
Bus <250m
U-Bahn <1.000m
Straßenbahn <250m
Bahnhof <750m
Autobahnanschluss <2.250m

Angaben Entfernung Luftlinie / Quelle: OpenStreetMap

Eckdaten Objektnr. 295245

Art: Wohnung
Land: Österreich
Baujahr: 1900
Alter: Altbau
Kaufpreis: 535.000,00
Kaufpreis / m²: 7.945,94 €
Betriebskosten: 147,16 €
MwSt Gesamt: 14,72 €
Wohnfläche: 67,33 m²
Nutzfläche: 67,33 m²
Zimmer: 2,50
Bäder: 1
WC: 1
Keller: 2,50 m²
Heizwärmebedarf:  E  165,30 kWh/m²a
fGEE:  D  2,37
Nebenkostenübersicht Kauf Immobilie merken Exposé

Ausstattung

Fliesen, Parkett, Gas, Etagenheizung, Einbauküche, Personenaufzug, Bad mit Fenster, Dusche, Kabel/Satelliten-TV


Immobilie anfragen


Ihre persönliche Beratung

Schantl ITH Immobilientreuhand GmbH

Samir Agha-Schantl

Schantl ITH Immobilientreuhand GmbH

T 0043 664 3070009

H 0043 660 4701793