Besser geht´s nicht! Einfach genial - Familienwohnung der Extraklasse! 2 Balkone + Riesige Terrasse + 5 Zimmer + Hochwertige Ausstattung + Ideale Infrastruktur + Garage + Ein neues Lebebsgefühl!

Wohnung - Dachgeschoß, 1220 Wien , Asperner Heldenplatz


Grün wohnen. Urban leben. Willkommen im neuen Wien – wo die U-Bahn ums Eck, die Lobau in Reichweite und das Leben im Fluss ist! Am Asperner Heldenplatz wohnt man ruhig und naturnah, aber mit allem, was den Alltag leicht macht: Seestadt-Nähe, Nahversorgung, Freiraum – und die Innenstadt in nur 20 Minuten. Ein Ort für Menschen, die nicht zwischen Stadt und Natur wählen wollen. Ruckzuck ins Zentrum: In wenigen Minuten erreichen Sie die U2-Station Aspernstraße – von dort sind es nur 20 Minuten direkt ins Zentrum. Dazu gibt es noch folgende Möglichkeiten: Buslinien 26A, 84A, 97A, 98A – ideal Richtung Seestadt, Kagran oder Stadlau. Ob Morgenspaziergang in der Lobau, Radtour entlang des Mühlwassers oder Picknick am Badeteich Hirschstetten – hier beginnt Freiraum direkt vor der Haustür! Aspern ist Wiens Stadtteil der nächsten Generation – und Asperner Heldenplatz 7 liegt mittendrin: naturnah, urban, charmant – ein Platz, der wächst und dennoch bleibt.

Beschreibung der Immobilie

Besser geht´s nicht! Einfach genial - Familienwohnung der Extraklasse! 2 Balkone + Riesige Terrasse + 5 Zimmer + Hochwertige Ausstattung + Ideale Infrastruktur + Garage + Ein neues Lebebsgefühl!

Für alle, denen Standard nicht reicht! 3 x Freiraum + 5 x Raumgefühl! Hier wartet eine Familienwohnung der Extraklasse auf Sie!



NEU! Geduld war selten so schön - Ihr Zuhause ab 2027!





Dort wo sich urbaner Komfort und naturnahe Lebensqualität die Hand reichen, entstehen 8 außergewöhnlich durchdachte Eigentumswohnungen in Größen von ca. 39 m² bis ca. 138 m².



Ob charmante Gartenwohnung, sonnige Terrassenwohnung oder großzügiges Familienrefugium - jede Einheit begeistert mit einer Freifläche (Balkon, Terrasse oder Garten), moderner Ausstattung und einem Grundriss, der den Alltag leichter macht.



Balkon, Terrasse oder Eigengarten bei jeder Wohnung
Effiziente, nachhaltige Bauweise mit moderner Technik
Eigene Tiefgaragenplätze verfügbar
Wohnungen für jedes Lebensmodell und jedes Budget



Hier wartet ein Neubau-Traumprojekt auf Sie! Perfekt als Anlage als auch für Eigennutzer!



Lebenswert / Grün / Leistbar / Moderner Neubau / Energieeffzient



Fertigstellung: Q4 2027





Zeit für Besonderes! Einfach genial - Familienwohnung der Extraklasse! 2 Balkone + Riesige Terrasse + 5 Zimmer + Hochwertige Ausstattung + Ideale Infrastruktur + Garage + Ein neues Lebebsgefühl!



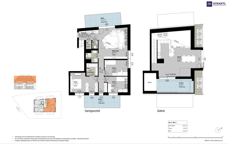
TOP 7 (DG: Wohnung mit 2 Balkonen + Terrasse, 5 Zimmer, 2 Bäder, 2 WCs)



Ihre neue Wohnung wird Sie restlos begeistern und teilt sich auf der 1.Ebene in einen Vorraum mit Platz für eine Garderobe, ein gemütliches und großzügiges Wohnzimmer mit Zugang zu einem der 2 großen Balkone, einen praktischen Abstellraum, ein separates WC mit Handwaschbecken, ein Badezimmer mit Dusche und Waschmaschinenanschluss, ein 2. Badezimmer mit Badewanne und 2.WC, sowie 3 getrennt begehbare Schlafzimmer. 2 Schlafzimmer haben noch zusätzlich Zugang zum 2. großen Balkon.



Highlight im Wohnzimmer ist sicherlich der nach oben (bis zur 2.Ebene) offene Luftraum! Mehr Licht, mehr Luft, mehr Freiraum!



Auf der 2.Ebene befindet sich die lichtdurchflutete und riesige Wohnküche mit Zugang zur großen und Traumterrasse.





Mehr Luft, mehr Licht, mehr Lebensfreude!



Highlights: 2 Balkone mit ca. 30,22m² + Große Terrasse mit ca. 17m² / 3-fach isolierte Fenster / Sicherheitstüren WK-3 / Fußbodenheizung- und Kühlung / Echtholz-Dielenparkett / Sonnenschutz / Klimaanlagen vorbereitet uvm.





Gänsehaut garantiert! Hier endet der Alltag und beginnt das Außergewöhnliche!



Wohnfläche: ca. 138,19m² + 1.Balkon: ca. 15,13m² + 2.Balkon: ca. 15,09m² + Terrasse: ca. 16,90m² + Kellerabteil



Kaufpreis für Anleger: € 818.090.- netto + USt



Kaufpreis für Eigennutzer: € 899.000.-





Garagenplatz für Anleger (optional): € 27.209.- netto + USt



Garagenplatz für Eigennutzer (optional): € 29.900.-



Das Leben ist zu kurz für falsche Wohnungen!





Geplante Fertigstellung laut Auskunft des Bauträgers: Q4 2027



Die Einschätzung der Betriebskosten erfolgt noch seitens der Hausverwaltung und wird nachgereicht, geschätzt werden ca. € 2.-/m².





Worauf warten Sie noch? Verwirklichen Sie Ihren Wohntraum jetzt!



Gerne senden wir Ihnen auch Unterlagen zu den noch verfügbaren Einheiten zu...



www.schantl-ith.at


Wir weisen darauf hin, dass zwischen dem Vermittler und dem zu vermittelnden Dritten ein familiäres oder wirtschaftliches Naheverhältnis besteht.


Der Vermittler ist als Doppelmakler tätig.

Infrastruktur / Entfernungen

Gesundheit
Arzt <250m
Apotheke <750m
Klinik <1.000m
Krankenhaus <1.500m

Kinder & Schulen
Schule <250m
Kindergarten <500m
Universität <2.250m
Höhere Schule <2.250m

Nahversorgung
Supermarkt <500m
Bäckerei <500m
Einkaufszentrum <3.250m

Sonstige
Geldautomat <250m
Bank <250m
Post <750m
Polizei <500m

Verkehr
Bus <250m
U-Bahn <750m
Straßenbahn <250m
Bahnhof <750m
Autobahnanschluss <2.500m

Angaben Entfernung Luftlinie / Quelle: OpenStreetMap

Eckdaten Objektnr. 295291

Art: Wohnung - Dachgeschoß
Land: Österreich
Baujahr: 2025
Zustand: Erstbezug
Alter: Neubau
Kaufpreis: 818.090,00
Kaufpreis / m²: 5.057,74 €
Wohnfläche: 138,19 m²
Nutzfläche: 161,75 m²
Zimmer: 5
Bäder: 2
WC: 2
Balkone: 2
Terrassen: 1
Heizwärmebedarf:  B  29,10 kWh/m²a
fGEE:  A+  0,67
Nebenkostenübersicht Kauf Immobilie merken Exposé

Ausstattung

Dielenboden, Fliesen, Steinboden, Parkett, Solarenergie, Fußbodenheizung, Personenaufzug, Westbalkon, Badewanne, Dusche, Kabel/Satelliten-TV, Tiefgarage


Immobilie anfragen


Ihre persönliche Beratung

Schantl ITH Immobilientreuhand GmbH

Samir Agha-Schantl

Schantl ITH Immobilientreuhand GmbH

T 0043 664 3070009

H 0043 660 4701793