Wohnen in Krems an der Donau - Ihre Chance auf einen Neuanfang ! *WG-tauglich*

Wohnung , 3500 Krems an der Donau


Diese attraktive Wohnung ist in der Mitterau gelegen, einem Stadtteil der beliebten Studentenstadt Krems an der Donau. Nur einen Steinwurf vom Bundessportplatz und dem Bühl Center entfernt, genießen Sie eine hervorragende Infrastruktur. Ärzte, Apotheken, Schulen sowie ein Kindergarten befinden sich in unmittelbarer Nähe. Supermärkte, Bäckereien, Banken und Postdienste sind ebenso schnell erreichbar. Die gute Anbindung an Bus und Bahn sowie der Autobahnanschluss machen diese Lage besonders praktikabel.

Beschreibung der Immobilie

Wohnen in Krems an der Donau - Ihre Chance auf einen Neuanfang ! *WG-tauglich*

WG, Familie oder Work Life Balance?



Wir haben die passende Wohnung in Krems - Mitterau für Sie !


Die Kurzinformation für eilige Leser:



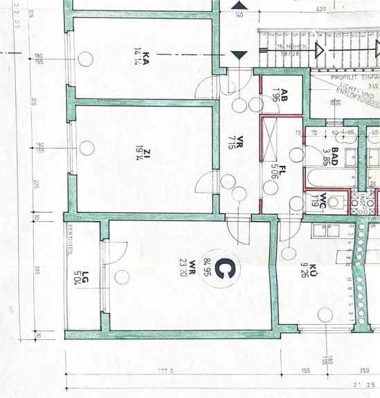
  • Großzügige Wohnung mit drei getrennt begehbaren Zimmern und gemütlicher Loggia !
  • Nutzfläche von rund 84,95 m² + rund 5,04 m² Loggia
    bestehend aus Vorraum, Badezimmer mit Wanne, Abstellraum, separates WC, Küche mit Ausblick auf Stift Göttweig und 3 Zimmer (eines davon mit Ausgang auf die Loggia)
  • Top Lage für Studenten oder Familien
  • das Wohnhaus wird aktuell generalsaniert
  • Gegensprechanlage vorhanden
  • manuelle Innenjalousien bei allen Fenstern
  • zugeordnetes Kellerabteil 







Die ausführliche Beschreibung:



Besagte Wohnung befindet sich in Krems an der Donau - Mitterau und überzeugt durch den ihren großzügig konzipierten Schnitt und die gute Lage mitten in Krems.



Mit dem Lift gelangen Sie in den 6. Stock. Der Vorraum ist geräumig und bietet genügend Platz für eine Garderobe und einen Schuhschrank. Linkerhand steht Ihnen ein praktischer Abstellraum zur Verfügung, auf der rechten Seite befinden sich 3 Zimmer, welche sich ideal in Wohnzimmer, Schlafzimmer und Kinderzimmer/Home-Office-Büro einteilen lassen. Alle Zimmer sind hell und zentral begehbar, daher ist die Wohnung ebenso WG-tauglich. Das größte der 3 Zimmer verfügt über eine Loggia, von welcher Sie das Treiben von Krems beobachten können. Die Küche bietet nicht nur Platz für eine gemütliche Essecke, sondern auch einen Ausblick auf das Stift Göttweig. Vorbei am separaten WC gelangen Sie ins Badezimmer, welches mit Wanne, Handwaschbecken und Waschmaschinenanschluss ausgestattet ist.





Highlights für Sport- u. Entspannungsliebhaber in der Umgebung - ganz gleich, ob jung oder alt: im Umkreis von rund 10 Autominuten stehen Ihnen sämtliche Indoor und Outdoor Freizeitaktivitäten zur Verfügung. Hier befinden sich ein Padel Tennis Platz sowie der Bundessportplatz, ein Freibad und Hallenbad, Bowling Center, verschiedene Fitnessstudios und in der Wintersaison ein Eislaufplatz. Die Kremser Weinberge eignen sich ideal für einen entspannten Spaziergang als Ausgleich zum Alltag. Auch der Stadtpark ist ein beliebter Spot zum Verweilen an warmen Tagen. Die malerische Donauländelädt bei einer Tagestour mit dem Fahrrad zu einem kulinarischen Zwischenstopp beim Wellenspiel ein.








Beheizung und Warmwasseraufbereitung:



Die Beheizung und Warmwasseraufbereitung erfolgt mittels Gaszentralheizung. Die Räumlichkeiten werden per Radiatoren bestens beheizt.








Infrastruktur:



Ärzte, Nahversorger, Trafik, verschiedene Freizeitmöglichkeiten, Kindergärten, Schulen, uvm. stehen fußläufig zur Verfügung.








Verkehrsanbindung:



Buslinien:




  • 2 – Stadtbus Krems: Krems Bahnhof ↔ Krems Bründlgraben/EKZ



  • 7 – Stadtbus Krems: Krems Bahnhof ↔ Krems Gewerbepark Ost



  • 446 – Regionalbus: Krems – Traismauer – Sieghartskirchen



  • 486 – Regionalbus: Krems – Höbenbach – Paudorf



  • 487 – Regionalbus: Krems – Furth – Paudorf – Herzogenburg (Baufahrplan)



  • 488 – Regionalbus: Krems – Paudorf – Statzendorf



  • 489 – Regionalbus: Krems – Gansbach – Loosdorf







Mit dem Auto:


Mit dem Auto erreichen Sie in rund 6 Minuten die Kremser Innenstadt (Fußgängerzone). Die St. Pöltner Innenstadt ist rund 28 Autominuten entfernt.

Anbindungen an A1 und A22: S33 Anschluss „Krems-Süd“ / Übergang Richtung St. Pölten und S5 / Stockerauer Schnellstraße Anschluss über Traismauer





Wichtig



Unter bestimmten Voraussetzungen (Anmeldung als Hauptwohnsitz, dringendes Wohnbedürfnis), kommen Sie jetzt in den Genuss der Gebührenbefreiung der Grundbucheintragungsgebühr (1,1%) und der Eintragungsgebühr des Pfandrechts (1,2%) !





SIE SIND NOCH UNSCHLÜSSIG, OB IHRE FINANZIERUNG GESICHERT IST?



Ihre Hausbank benötigt im Regelfall 4-6 Wochen, um Ihnen mitzuteilen, ob Ihr Kredit bewilligt wird, oder nicht. Unser Finanzierungspartner sagt Ihnen nicht nur anhand Ihrer Unterlagen in kürzester Zeit, ob die Finanzierung klappen wird, er sorgt auch für den besten und günstigsten Wohnkredit, da er Zugang zu den besten Angeboten aller relevanten Banken hat.



Last but not least: Unser Finanzberater kostet Sie nichts, denn er bekommt seine Provision von der finanzierenden Bank !


Wir weisen darauf hin, dass zwischen dem Vermittler und dem zu vermittelnden Dritten ein familiäres oder wirtschaftliches Naheverhältnis besteht.


Der Vermittler ist als Doppelmakler tätig.

Infrastruktur / Entfernungen

Gesundheit
Arzt <500m
Apotheke <500m
Klinik <1.500m
Krankenhaus <1.000m

Kinder & Schulen
Schule <500m
Kindergarten <500m
Universität <1.500m
Höhere Schule <500m

Nahversorgung
Supermarkt <500m
Bäckerei <500m
Einkaufszentrum <1.500m

Sonstige
Geldautomat <500m
Bank <500m
Post <500m
Polizei <500m

Verkehr
Bus <500m
Autobahnanschluss <1.000m
Bahnhof <1.000m
Flughafen <5.000m

Angaben Entfernung Luftlinie / Quelle: OpenStreetMap

Eckdaten Objektnr. 6547/4197

Art: Wohnung
Land: Österreich
Baujahr: 1966
Zustand: Gepflegt
Kaufpreis: 245.000,00
Betriebskosten: 204,45 €
Heizkosten: 125,37 €
MwSt Gesamt: 45,85 €
Wohnfläche: 84,95 m²
Zimmer: 3
Bäder: 1
WC: 1
Heizwärmebedarf:  D  101,00 kWh/m²a
fGEE:  C  1,67
Nebenkostenübersicht Kauf Immobilie merken Exposé

Immobilie anfragen


Ihre persönliche Beratung

TRUE Immobilien GmbH & Co KG

Melina Stummer

CPS Immobilien Sezgin e.U.

H +43 664 750 55 144