3 Zimmerwohnung mit grossem Wohn-Balkon beim Brunnenmarkt

Wohnung , 1160 Wien


Brunnenmarkt und Hasnerstrasse

Beschreibung der Immobilie

3 Zimmerwohnung mit grossem Wohn-Balkon beim Brunnenmarkt

Daten und  Fakten:



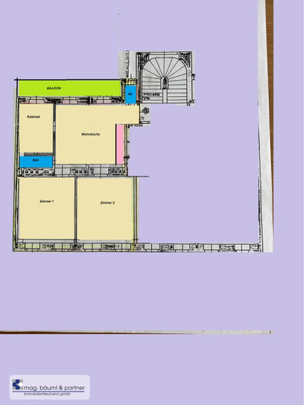
  • 3 Zimmerwohnung ca. (83m²)
  • Alle  Zimmer zentral zu begehen
  • Wohnküche mit  Zugang zum Wohnbalkon 
  • Wohnbalkon ist überdacht und beschattet
  • Badezimmer mit Wanne  
  • Wc getrennt mit Fenster
  • Küche möbliert und mit allen Geräten ausgestattet
  • Neue Fenster 
  • Gaszentralheizung 
  • Kaufpreis : Euro 430.000,00 (VB)




LAGE:



In der Brunnengasse gelegen - unmittelbar beim Brunnenmarkt und der Hasnergasse . Die Strassenbahnen , Busse und U bahn  sind in  fussläufiger Nähe.



Fahrradwege und Strecken sind gleich nebenan und für Autofahrer findet sich immer ein Parkplatz.



Die Stadt ist gleich erreicht.  





BESCHREIBUNG



Die Wohnung ist im 2. Stock eines  Altbaus gelegen und es sind nur 2 Wohnungen pro Stockwerk.



Durch einen kurzen Vorraum gelangt man in eine gemütliche Wohnküche,  die ideal eingerichtet ist, für Kochbegeisterte mit Steinplatte und allen Geräten. Alle  Zimmer sind  zentral zu betreten , haben neue Fenster und es gibt  eine Gaszentralheizung.  Das Badezimmer ist mit einer Wanne ausgestattet und das Wc ist getrennt mit Fenster. 



Der Balkon kann  direkt von der Küche und von dem kleinen  Kabinett betreten werden und erstreckt sich über die gesamte Breite der Wohnung . Er ist beschattet und überdacht und kann somit das ganze Jahr benutzt und genutzt werden. 



Das Haus hat einen ruhigen  Innen-hof , einen gesicherten Fahrrad abstellplatz und einen Kelller .



Die  Fassade , die Leitungen , die Grundsubstanz des Hauses sind in einem sehr guten Zustand keinerelei Sanierungen geplant. 





Kaufpreis :EUR 430.000,00  (VB)






Wir weisen darauf hin, dass zwischen dem Vermittler und dem zu vermittelnden Dritten ein familiäres oder wirtschaftliches Naheverhältnis besteht.


Der Vermittler ist als Doppelmakler tätig.

Infrastruktur / Entfernungen

Gesundheit
Arzt <500m
Apotheke <500m
Klinik <500m
Krankenhaus <1.500m

Kinder & Schulen
Schule <500m
Kindergarten <500m
Universität <1.500m
Höhere Schule <1.000m

Nahversorgung
Supermarkt <500m
Bäckerei <500m
Einkaufszentrum <500m

Sonstige
Geldautomat <500m
Bank <500m
Post <500m
Polizei <500m

Verkehr
Bus <500m
U-Bahn <500m
Straßenbahn <500m
Bahnhof <500m
Autobahnanschluss <4.500m

Angaben Entfernung Luftlinie / Quelle: OpenStreetMap

Eckdaten Objektnr. 11132

Art: Wohnung
Land: Österreich
Zustand: Gepflegt
Alter: Altbau
Kaufpreis: 430.000,00
Betriebskosten: 293,11 €
MwSt Gesamt: 29,31 €
Wohnfläche: 83,00 m²
Nutzfläche: 97,00 m²
Zimmer: 4
WC: 1
Balkone: 1
Heizwärmebedarf:  C  77,80 kWh/m²a
Nebenkostenübersicht Kauf Immobilie merken Exposé

Immobilie anfragen


Ihre persönliche Beratung

Mag. Bäuml & Partner Immobilientreuhand GmbH

Brigitte Müller

Mag. Bäuml & Partner Immobilientreuhand GmbH

T +43 1 877 867 010

H +43 676 458 00 84

F +43 1 877 867 050