Genießen Sie herrliche Sommertage in Ihrem idyllischen Eigenarten - viele weitere Wohnungen auch mit Balkon verfügbar!

Wohnung , 8401 Kalsdorf bei Graz , Zirbenweg


Dieses innovative Wohnbauprojekt mit insgesamt 117 Wohneinheiten befindet sich in der reizenden Marktgemeinde Kalsdorf, welche weniger als 15 Minuten von Graz entfernt ist. Profitieren Sie von einem umfassenden Freizeitangebot (Sporthalle, Eislaufplatz, Hallenbad etc.), ausreichend Einkaufmöglichkeiten und eine atemberaubende Landschaft mit herrlich grünen Wiesen. Darüber hinaus befinden sich Supermärkte, Ärzte und Apotheken in unmittelbarer Nähe.

Beschreibung der Immobilie

Genießen Sie herrliche Sommertage in Ihrem idyllischen Eigenarten - viele weitere Wohnungen auch mit Balkon verfügbar!

Genießen Sie herrliche Sommertage in Ihrem idyllischen Eigenarten - viele weitere Wohnungen auch mit Balkon verfügbar!





Diese traumhafte 2-Zimmer-Wohnung wird gerade in einem modernen Bauprojekt in Kalsdorf bei Graz errichtet. 



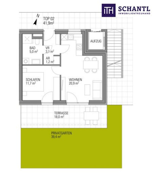
Zu den Highlights der Wohnung zählt ganz klar die fast 17 m² große Terrasse mit 50 m² Eigengarten dar, welcher ausreichend Platz für gemütliche Grillabende mit der Familie oder mit Freunden bietet.



Weiters besticht die ca. 64 m² große Wohnung durch ihren effizienten Grundriss sowie die offene Wohnraumgestaltung. Alle Zimmer sind in Richtung Nachmittagssonne ausgerichtet. Hier bleiben definitiv keine Wünsche offen!



Gebaut wird in Ziegel-Massiv-Bauweise mit perfekter österreichischer Baumeisterqualität. 



 



Raumaufteilung:



  • Vorraum
  • Praktischer Abstellraum
  • Badezimmer mit Dusche und WC
  • Schlafzimmer mit großzügigen Fensterflächen in Richtung Sonne
  • Offener Wohn-Essbereich mit Küche und Zugang auf den Balkon 

     


HIGHLIGHTS:



  • große, traumhafte Dachterrasse
  • Ausgang auf die Terrasse von allen Zimmern
  • nur 4 Einheiten gesamt auf der Etage
  • Penthouse mit Premiumausstattung
  • hochwertiger Parkettboden, Eiche matt 
  • elektrisch gesteuerte Raffstores 
  • 3-fach-Verglasung, Kunststofffenster 
  • Haus-Satellitenanlage/SAT-Anschluss
  • hauseigener Tiefgaragen-Stellplatz um € 19.000,-
  • Wasseranschluss auf der Dachterrasse

     


Weitere verfügbare Wohnungsgrößen: 38m² - 117m² 



Ihr Vorteil: Sie können Ihre Wünsche für die Innenplanung einbringen und umsetzen lassen, sofern es die Statik und der Baufortschritt erlauben. 



Da sich das Objekt noch in der Bauphase befindet, wurden zur Visualisierung Symbolbilder verwendet.





Worauf noch warten?



Vereinbaren Sie noch heute eine Besichtigung oder eine persönliche Beratung mit uns!



Sie wollen Ihre Immobilie verkaufen? Dann sind Sie bei uns goldrichtig!




Wir sind gerne für Sie da und unterstützen Sie unverbindlich bei der Bewertung Ihrer Immobilie. Mit viel Sorgfalt stellen wir Ihnen alle wichtigen Informationen und Unterlagen zusammen, damit Sie die besten Entscheidungen treffen können.



In Kooperation mit unserer SFI Vermögenstreuhand begleiten wir Sie bei der Verwirklichung Ihres Traumobjekts und unterstützen Sie beim nachhaltigen Vermögensaufbau.



Mit unseren erfahrenen Experten sorgen wir dafür, dass Sie die besten Konditionen erhalten – damit Ihre Träume Wirklichkeit werden!



www.schantl-ith.at in Kooperation mit www.sfi-invest.com 



Die Angaben über das angebotene Objekt erfolgen mit der Sorgfalt eines ordentlichen Immobilienmaklers; für die Richtigkeit solcher Angaben, die auf Informationen der über das Objekt Verfügungsberechtigten beruhen, wird keine Gewähr geleistet.

Infrastruktur / Entfernungen

Gesundheit
Arzt <500m
Apotheke <750m
Krankenhaus <10.000m

Kinder & Schulen
Schule <250m
Kindergarten <750m

Nahversorgung
Supermarkt <500m
Bäckerei <500m
Einkaufszentrum <8.000m

Sonstige
Geldautomat <500m
Bank <500m
Post <500m
Polizei <500m

Verkehr
Bus <500m
Autobahnanschluss <3.500m
Straßenbahn <9.000m
Bahnhof <1.250m
Flughafen <4.500m

Angaben Entfernung Luftlinie / Quelle: OpenStreetMap

Eckdaten Objektnr. 295234

Art: Wohnung
Land: Österreich
Baujahr: 2023
Zustand: Erstbezug
Alter: Neubau
Kaufpreis: 249.000,00
Wohnfläche: 64,00 m²
Zimmer: 3
Balkone: 1
Terrassen: 1
Garten: 50,00 m²
Heizwärmebedarf:  B  37,00 kWh/m²a
fGEE:  A+  0,70
Nebenkostenübersicht Kauf Immobilie merken Exposé

Ausstattung

Parkett, Fliesen, Fußbodenheizung, Wohnküche / offene Küche, Dusche, Kabel/Satelliten-TV, Tiefgarage


Immobilie anfragen


Ihre persönliche Beratung

Schantl ITH Immobilientreuhand GmbH

Christopher Wischenbart, BSc

Schantl ITH Immobilientreuhand GmbH

T +43 664 5411047

H +43 664 2507403