Eckreihenhaus – Ziegelmassivbau – Architekturjuwel
Haus
- Reihenhaus,
2100
Korneuburg
,
Leopold-Loibl-Straße
Beschreibung der Immobilie
Eckreihenhaus – Ziegelmassivbau – Architekturjuwel
Architekturjuwel – Drei Reihenhäuser in ruhiger Lage von Korneuburg – Qualität trifft Komfort
Inmitten einer charmanten Wohngegend in der Leopold-Loibl-Siedlung in Korneuburg entstehen drei hochwertig ausgeführte Reihenhäuser in Ziegelmassivbauweise. Umgeben von gepflegten Einfamilienhäusern und einer ausgezeichneten Infrastruktur genießen Sie hier modernen Wohnkomfort in ruhiger, familienfreundlicher Lage.
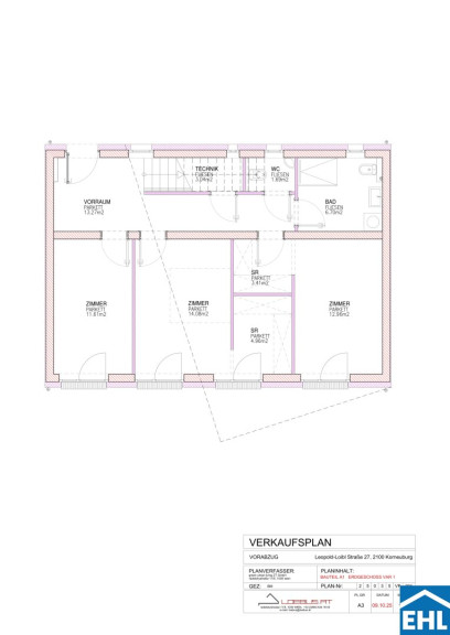
Jedes der drei Häuser bietet rund 117 m² Wohnfläche auf zwei durchdacht gestalteten Etagen – ideal für Familien und alle, die Wert auf Qualität, Funktionalität und zeitgemäßes Wohnen legen.
Erdgeschoss: Rückzugsort mit Gartenanschluss
Drei helle, nach Osten ausgerichtete Schlafzimmer bieten direkten Zugang zum eigenen Garten und schaffen eine lichtdurchflutete, freundliche Wohnatmosphäre – perfekt für entspannte Morgenstunden und erholsame Rückzugsmöglichkeiten.
Obergeschoss: Offenes Wohnen mit Stil
Die großzügige Wohnküche lädt zum gemeinsamen Kochen, Essen und Verweilen ein. Hier verschmelzen Wohnqualität und Gemütlichkeit zu einem idealen Lebensmittelpunkt für die ganze Familie.
Das Badezimmer ist modern ausgestattet – mit eleganten Armaturen und stilvollen Keramiken.
Hochwertige Ausstattung mit Weitblick
Luft/Wasser-Wärmepumpe für nachhaltige Energieversorgung
Vorbereitung für PV-Anlage und Klimaanlage
Dreifach verglaste Kunststofffenster mit Raffstores
Edler Parkettboden in allen Wohnräumen
Große Panorama-Glas-Schiebetür zur Terrasse
Stellplatz direkt vor dem Haus (EUR 15.000,– je Einheit)
Lage mit Lebensqualität
Die ruhige, grüne Umgebung überzeugt mit Naherholungsgebieten, Parks und einer guten öffentlichen Anbindung nach Wien. Schulen, Kindergärten und Einkaufsmöglichkeiten sind schnell erreichbar – ideal für den Alltag mit Kindern.
Baurecht mit Zukunft
Das Grundstück wird im rollierenden Baurecht auf 99 Jahre vergeben. Dieses Projekt bietet ein attraktives Preis-Leistungs-Verhältnis bei gleichzeitig langfristiger Nutzungssicherheit. Eine Indexierung der Pacht ist vereinbart.
Voraussichtliche Fertigstellung: Winter 2026
Provision: 3 % Käuferprovision
Hinweis: Foto zeigt ein bestehendes Reihenhaus (Symbolfoto)
Stilvolles Reihenhaus in ruhiger Lage von Korneuburg – Qualität trifft Komfort
Inmitten einer charmanten Wohngegend in der Leopold-Loibl-Siedlung in Korneuburg erwartet Sie dieses hochwertig ausgeführte Eckreihenhaus in Ziegelmassivbauweise. Umgeben von gepflegten Einfamilienhäusern und einer ausgezeichneten Infrastruktur, genießen Sie hier rund 117 m² Wohnfläche auf zwei durchdacht gestalteten Etagen – ideal für Familien und alle, die modernen Wohnkomfort schätzen.
Erdgeschoss: Rückzugsort mit Gartenanschluss
Drei helle, nach Osten ausgerichtete Schlafzimmer bieten direkten Zugang zum Garten und schaffen eine lichtdurchflutete, freundliche Wohnatmosphäre – perfekt für entspannte Morgenstunden.
Obergeschoss: Offenes Wohnen mit Stil
Die großzügige Wohnküche lädt zum gemeinsamen Kochen, Essen und Verweilen ein. Hier verschmelzen Wohnqualität und Gemütlichkeit zu einem idealen Lebensmittelpunkt für die ganze Familie. Das Badezimmer ist modern ausgestattet – mit eleganten Armaturen und stilvollen Keramiken.
Hochwertige Ausstattung mit Weitblick
Luft/Wasser-Wärmepumpe für nachhaltige Energieversorgung
Vorbereitung für PV-Anlage und Klimaanlage
Dreifach verglaste Kunststofffenster mit Raffstores
Edler Parkettboden in allen Wohnräumen
Große Panorama-Glas-Schiebetür zur Terrasse
Stellplatz direkt vor dem Haus (EUR 15.000,–)
Lage mit Lebensqualität
Die ruhige, grüne Umgebung punktet mit Naherholungsgebieten, Parks und guter öffentlicher Anbindung nach Wien. Schulen, Kindergärten und Einkaufsmöglichkeiten sind schnell erreichbar – ideal für den Alltag mit Kindern.
Baurecht mit Zukunft
Das Grundstück wird im rollierenden Baurecht auf 99 Jahre vergeben. Mit einem monatlichen Pachtzins von nur EUR 271,- bietet dieses Objekt ein attraktives Preis-Leistungs-Verhältnis bei gleichzeitig langfristiger Nutzungssicherheit. Für die Pacht ist eine Indexierung vereinbart.
Voraussichtliche Fertigstellung: Frühling 2026
Provision: 3 % Käuferprovision
Hinweis: Foto vom bestehenden Reihenhaus
Wir weisen darauf hin, dass zwischen dem Vermittler und dem zu vermittelnden Dritten ein familiäres oder wirtschaftliches Naheverhältnis besteht.
Der Vermittler ist als Doppelmakler tätig.
Infrastruktur / Entfernungen
Gesundheit
Arzt <3.250m
Apotheke <1.000m
Krankenhaus <1.000m
Klinik <5.250m
Kinder & Schulen
Schule <750m
Kindergarten <500m
Universität <7.250m
Nahversorgung
Supermarkt <500m
Bäckerei <1.000m
Einkaufszentrum <7.000m
Sonstige
Bank <500m
Geldautomat <500m
Post <750m
Polizei <1.500m
Verkehr
Bus <500m
Straßenbahn <7.750m
Autobahnanschluss <1.250m
Bahnhof <1.250m
Angaben Entfernung Luftlinie / Quelle: OpenStreetMap
Eckdaten Objektnr. 83858
| Art: | Haus - Reihenhaus |
| Land: | Österreich |
| Zustand: | Erstbezug |
| Alter: | Neubau |
| Kaufpreis: | 529.000,00 € |
| Wohnfläche: | 117,00 m² |
| Zimmer: | 4 |
| Bäder: | 1 |
| WC: | 1 |
| Terrassen: | 1 |
| Garten: | 104,00 m² |
| Heizwärmebedarf: | B 45,40 kWh/m²a |
| fGEE: | A+ 0,65 |
Ausstattung
Parkett, Fliesen, Dusche
Ihre persönliche Beratung
Dieser Makler ist ein offizielles Mitglied des IR – ir.at Mehr Erfahren
