Naturnahes Wohnen in Gunskirchen - geförderte Mietwohnungen in moderner Hybridbauweise

Wohnung , 4623 Gunskirchen


Der Neubau in der Gärtnerstraße überzeugt durch eine ideale Kombination aus Ruhe, Alltagstauglichkeit und guter Verkehrsanbindung. Die Wohnungen liegen in einem freundlich gewachsenen Wohngebiet von Gunskirchen, nur wenige Minuten vom Ortszentrum entfernt. Einkaufsmöglichkeiten, Schulen, Kinderbetreuung und medizinische Versorgung befinden sich in unmittelbarer Nähe und sind bequem zu Fuß oder mit dem Fahrrad erreichbar. Das Areal selbst verfügt über attraktive, begrünte Außenflächen, die als Erholungsfläche für die zukünftigen Bewohner:innen dienen. Spielgeräte sind für die Kinder am Grundstück ausreichend vorgesehen.

Beschreibung der Immobilie

Naturnahes Wohnen in Gunskirchen - geförderte Mietwohnungen in moderner Hybridbauweise

Wohnen in Gunskirchen



Am ehemaligen Sportplatz in der Gärtnerstraße in Gunskirchen errichtet die WAG drei moderne Wohngebäude mit insgesamt 60 geförderten Mietwohnungen und einer Tiefgarage mit 81 Stellplätzen. Die Anlage entsteht in nachhaltiger Hybridbauweise und bietet Wohnraum für unterschiedliche Lebenssituationen.



Wie bei allen WAG-Neubauprojekten steht der Einsatz energieeffizienter und umweltschonender Technologien im Vordergrund: Die Geschoßdecken verfügen über eine integrierte Deckenheizung, die in den Wintermonaten nicht nur wohlige Wärme erzeugt, sondern auch im Sommer zur sanften Temperierung eingesetzt werden kann. Das Flachdach wird begrünt und mit einer Photovoltaikanlage ausgestattet – das sorgt für ein besseres Mikroklima sowie ein Plus an Nachhaltigkeit.



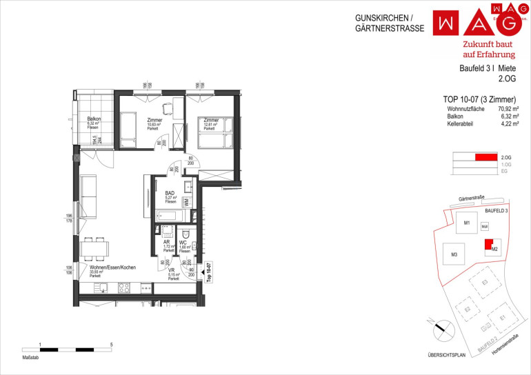
Wohnung Top 7, 2. OG, mit Balkon:



Miete inkl. Betriebs- und Verwaltungskosten sowie MwSt: € 902,34

Heizung samt Deckentemperierung inkl. MwSt.: ca. € 116,00

Miete TG-Stellplatz inkl. MwSt.: ca. € 91,43

Miete Außenstellplatz inkl. MwSt.: ca. € 42,00

Monatliche Kosten gesamt: € 1.151,77 (ohne Strom)

Baukostenbetrag Wohnung: € 3.223,34

Baukostenbeitrag Tiefgaragenplatz: ca. € 530,00

Sie sind an weiteren Wohnungs- bzw. Gewerbeangeboten interessiert? Ein vielfältiges Angebot finden Sie auf unserer Website.

Zur WAG-Immobiliensuche: SUCHE

Zur WAG-Wohnungsanmeldung: Wohnungsanmeldung

Gerne beraten wir Sie persönlich über unser vielfältiges Angebot, rufen Sie uns einfach an! Und das natürlich ohne Vermittlungsgebühren und provisionsfrei!

Angaben sind ohne Gewähr auf Richtigkeit und Vollständigkeit. Druckfehler vorbehalten.

Infrastruktur / Entfernungen

Gesundheit
Arzt <1.000m
Apotheke <1.000m
Klinik <5.500m
Krankenhaus <8.000m

Kinder & Schulen
Schule <1.000m
Kindergarten <1.000m
Universität <7.000m

Nahversorgung
Supermarkt <500m
Bäckerei <1.000m
Einkaufszentrum <3.000m

Sonstige
Bank <1.000m
Geldautomat <1.000m
Post <1.000m
Polizei <1.000m

Verkehr
Bus <500m
Autobahnanschluss <4.000m
Bahnhof <500m
Flughafen <9.500m

Angaben Entfernung Luftlinie / Quelle: OpenStreetMap

Eckdaten Objektnr. 6650/28734

Art: Wohnung
Land: Österreich
Baujahr: 2025
Zustand: Erstbezug
Alter: Neubau
Gesamtmiete: 1.018,34
Kaltmiete (netto): 599,23 €
Kaltmiete: 820,31 €
Betriebskosten: 221,08 €
Heizkosten: 96,67 €
MwSt Gesamt: 101,36 €
Nutzfläche: 70,92 m²
Zimmer: 3
Balkone: 1
Stellplätze: 1
Keller: 4,22 m²
Heizwärmebedarf: 32,80 kWh/m²a
fGEE: 0,75
Nebenkostenübersicht Miete Immobilie merken Exposé

Ausstattung

Fliesen, Parkett, Wohnküche / offene Küche, Personenaufzug, Nordbalkon, Badewanne, Parkplatz, Tiefgarage


Immobilie anfragen


Ihre persönliche Beratung

Team Vermietung 2

WAG Wohnungsanlagen GmbH

T +43 (0)50 338 6012