Edles Wohndesign umgeben von Ruhe und Natur - Gestalten Sie Ihr Traumhaus nach eigenen Wünschen.

Haus - Einfamilienhaus, 2231 Strasshof an der Nordbahn


Dieses exklusive Projekt befindet sich in der beliebten Gemeinde Strasshof, der Bahnhof befindet sich ebenfalls in unmittelbarer Umgebung mit einer sehr guten Anbindung nach Wien. Einkaufsmöglichkeiten, Gastronomie und Restaurants für kulinarische Genüsse gibt ebenfalls im Ort. Kindergarten und Schulen sind bequem erreichbar.

Beschreibung der Immobilie

Edles Wohndesign umgeben von Ruhe und Natur - Gestalten Sie Ihr Traumhaus nach eigenen Wünschen.

Sie wollen Ihr persönliches Traumhaus verwirklichen aber all das ohne nervenaufreibendem Baustress? Dann haben wir genau das Richtige für Sie.



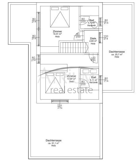
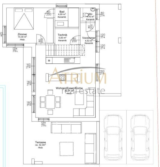
Hier bietet sich der ideale Ort um all Ihre Wohnträume zu erfüllen - Stilvolles Einfamilienhaus mit einer Wohnfläche von ca. 106 m², herrlichen Freiflächen mit gesamt: ca. 100 m² und einer Grundstücksfläche von rund 525 m². Das Bauwerk wird erst nach Kauf gemäß Planung errichtet und bietet somit die Möglichkeit, individuelle Wünsche und Anpassungen in der Ausführung zu berücksichtigen.



Das Einfamilienhaus begeistert vor allem aufgrund eines gut durchdachten Raumkonzepts, großzügigen Glasfronten und moderner Niedrigenergiebauweise in Holz - Fertigteilkonstruktion. Zwei Dachterrassen sowie ein beheizbarer Swimmingpool im Garten sorgen für zahlreiche Sonnenstunden und ein exklusives Wohn- und Freizeitambiente mit Ihrer Familie und Freunden. Sollten Sie noch mehr Platz zum Entfalten benötigen, ist gegen einen Aufpreis von 50.000€ eine Nutzfläche von gesamt 126m² statt 106m² möglich. 



Ausstattung & Highlights:
> Vollausgestattete Wohnküche mit Kochinsel

> Großzügige Fensterfronten für viel Tageslicht

> Moderne Kunststofffenster mit Dreifachverglasung

> Fußbodenheizung in allen Wohnräumen inkl. WC und Bad

> Elektrisch gesteuerte Raffstores bzw. Rollläden in den Haupträumen

> Niedertemperaturheizung mittels Wärmepumpe

> Optionale passive Bauwerkskühlung im Sommer 

> Energieeffiziente Niedrigenergiebauweise

> Fertigteilbauweise mit hochwertiger Bauqualität

> Beheizbarer Swimmingpool 8 × 4 m aus Beton mit Folienauskleidung 





Besondere Highlights:
Da das Haus erst nach Kauf errichtet wird, besteht die exklusive Möglichkeit den Grundriss sowie Ausstattung und Materialien in Abstimmung mit dem Bauträger individuell zu adaptieren und gestalten zu können. Die Zahlung des Kaufpreises erfolgt etappenweise laut Baufortschritt, dies bietet Käufern maximale Flexibilität bei der Gestaltung und Zahlung ihres zukünftigen Eigenheims. Ein weiterer Pluspunkt ist, dass sich die 3,5% Grunderwerbssteuer nur auf den Grundstückspreis berechnet und somit bereits eine erhebliche Ersparnis bei den Kaufnebenkosten erzielt wird. 



Kosten im Überblick:
Kaufpreis Eigengrund: € 299.900, -

Kaufpreis Haus schlüsselfertig: 349.900€

Kaufpreis Gesamt inkl. Küche: € 649.900, -
zzgl. An-/ und Aufschlussgebühren: € 30.000, -

zzgl. Betriebskosten: ca. € 1,50 / m²



 



Neugierig geworden? Dann nehmen Sie heute noch Kontakt auf und lassen sich bei einem persönlichen Beratungsgespräch von den zahlreichen Vorteilen dieser Immobilie überzeugen.

Für weitere Fragen und Details steht Ihnen Frau Trenk unter +43 677 61510 881 gerne jederzeit zur Verfügung. 

 



Noch nichts gefunden? Wir informieren Sie über geeignete Immobilienangebote noch vor allen anderen. Legen Sie jetzt Ihren individuellen Suchagenten unter folgendem Link an.



Wir schicken Ihnen passende Immobilien exklusiv vorab zu Suchagent anlegen - https://atrium-global-investment.service.immo/registrieren/de



 



Wir möchten Sie informieren, dass ein Provisionsanspruch erst nach Unterzeichnung eines Miet- oder Kaufanbots besteht. Besichtigungen und Auskünfte sind selbstverständlich unverbindlich und kostenlos. Oben angeführte Angaben basieren auf Informationen und Unterlagen des Eigentümers und sind unsererseits ohne Gewähr. Wir dürfen gem. § 5 Maklergesetz darauf hinweisen, dass wir als Doppelmakler tätig sind und ein wirtschaftliches Naheverhältnis zu unserem Auftraggeber besteht.

Noch nichts gefunden? Wir informieren Sie über geeignete Immobilienangebote noch vor allen anderen.
Legen Sie jetzt Ihren individuellen Suchagenten unter folgendem Link an. Wir schicken Ihnen passende Immobilien exklusiv vorab zu.

Suchagent anlegen - https://atrium-global-investment.service.immo/registrieren/de


Wir weisen darauf hin, dass zwischen dem Vermittler und dem zu vermittelnden Dritten ein familiäres oder wirtschaftliches Naheverhältnis besteht.


Der Vermittler ist als Doppelmakler tätig.

Infrastruktur / Entfernungen

Gesundheit
Arzt <1.000m
Apotheke <2.500m
Klinik <6.000m

Kinder & Schulen
Kindergarten <500m
Schule <1.000m

Nahversorgung
Supermarkt <500m
Bäckerei <2.500m

Sonstige
Bank <1.500m
Geldautomat <1.500m
Post <2.500m
Polizei <5.500m

Verkehr
Bus <500m
Bahnhof <1.000m

Angaben Entfernung Luftlinie / Quelle: OpenStreetMap

Eckdaten Objektnr. 818

Art: Haus - Einfamilienhaus
Land: Österreich
Zustand: Projektiert
Alter: Neubau
Kaufpreis: 649.900,00
Wohnfläche: 126,00 m²
Nutzfläche: 156,00 m²
Grundstücksfl.: 525,00 m²
Zimmer: 4
Bäder: 3
WC: 2
Terrassen: 3
Stellplätze: 2
Nebenkostenübersicht Kauf Immobilie merken Exposé

Ausstattung

Einbauküche, Wohnküche / offene Küche, Südbalkon, Bad mit Fenster, Badewanne, Dusche, Kabel/Satelliten-TV, Parkplatz, Swimmingpool


Immobilie anfragen


Ihre persönliche Beratung

Atrium Global Investment

Jessica Trenk

Atrium Global Investment

T 013912230

H +43 677 61510 881