St. Georgen MITTE - ein Standort - viele Möglichkeiten

Wohnung , 4880 St. Georgen im Attergau , Attergauer Straße


Wir, die Firma Neuwog errichten in Zusammenarbeit mit dem regionalen Partner Atticon in der Attergauer Straße Nr 13 und 15 in 4880 St. Georgen im Attergau eine Immobile in hervorragender Lage. Mitten im Zentrum nur wenige Gehminuten vom Bahnhof entfernt, genießen Sie eine optimale Anbindung an den öffentlichen Verkehr. Die Lage des Projektes besticht durch seine Nähe zum Attersee ( in 5 Autominuten erreichbar) und auch mit Ihrer sehr guten Autobahnanbindung nach Salzburg. Wir als Bauträger, sind bemüht in den Gewerbeflächen des Objektes Ärzte für eine optimale Gesundheitsvorsorge unterzubringen. Hier wohnen oder arbeiten Sie zentral und komfortabel!

Beschreibung der Immobilie

St. Georgen MITTE - ein Standort - viele Möglichkeiten

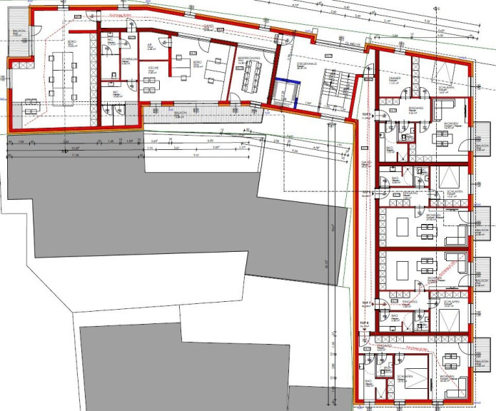
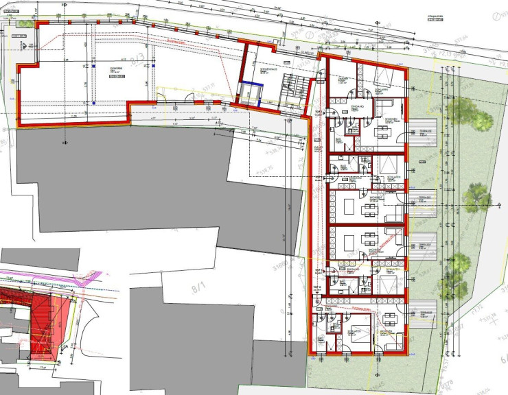
Willkommen in Ihrem neuen Zuhause – einer traumhaften Gartenwohnung im idyllischen St. Georgen im Attergau, Oberösterreich. Diese großzügige 55,63 m² große Wohnung im Erdgeschoss vereint modernen Wohnkomfort mit einer perfekten Lage, die keine Wünsche offenlässt.



Genießen Sie den Luxus eines Erstbezugs in einer Wohnung, die mit viel Liebe zum Detail gestaltet wurde. Die durchdachte Raumaufteilung umfasst zwei helle Zimmer, die Ihnen vielfältige Möglichkeiten zur individuellen Gestaltung bieten. Ob Sie ein gemütliches Schlafzimmer oder ein inspirierendes Arbeitszimmer schaffen möchten, hier finden Sie den idealen Raum für Ihre Ideen.



Ein Highlight dieser Gartenwohnung ist der direkt angrenzende Garten mit Terrasse, der nicht nur für entspannte Stunden im Freien einlädt, sondern auch perfekt für gesellige Zusammenkünfte mit Familie und Freunden ist. Stellen Sie sich vor, wie Sie an warmen Sommertagen auf Ihrer Terrasse sitzen, die Sonne genießen und die frische Luft in vollen Zügen auskosten.



Die hochwertige Ausstattung der Wohnung lässt keine Wünsche offen. Edle Fliesen und warmes Parkett sorgen für ein stilvolles Ambiente. Das moderne Badezimmer ist mit einer bequemen Dusche ausgestattet und lädt nach einem langen Tag zur Entspannung ein. Ein Personenaufzug erleichtert den Zugang zur Wohnung und die Tiefgarage bietet Ihnen nicht nur einen sicheren Stellplatz für Ihr Auto, sondern auch zusätzlichen Stauraum.



Nutzen Sie diese einmalige Gelegenheit und machen Sie diese Gartenwohnung zu Ihrem neuen Zuhause. Erleben Sie die perfekte Symbiose aus modernem Wohnkomfort und naturnaher Lage in St. Georgen im Attergau. Kontaktieren Sie uns noch heute für weitere Informationen oder eine Besichtigung. Ihr neues Leben wartet auf Sie!


Hinweis gemäß Energieausweisvorlagegesetz: Ein Energieausweis wurde vom Eigentümer bzw. Verkäufer, nach unserer Aufklärung über die generell geltende Vorlagepflicht, sowie Aufforderung zu seiner Erstellung noch nicht vorgelegt. Daher gilt zumindest eine dem Alter und der Art des Gebäudes entsprechende Gesamtenergieeffizienz als vereinbart. Wir übernehmen keinerlei Gewähr oder Haftung für die tatsächliche Energieeffizienz der angebotenen Immobilie.

Infrastruktur / Entfernungen

Gesundheit
Arzt <475m
Apotheke <100m
Klinik <2.075m

Kinder & Schulen
Schule <325m
Kindergarten <425m

Nahversorgung
Supermarkt <250m
Bäckerei <700m

Sonstige
Bank <250m
Geldautomat <250m
Post <325m
Polizei <475m

Verkehr
Bus <225m
Bahnhof <300m
Autobahnanschluss <1.550m

Angaben Entfernung Luftlinie / Quelle: OpenStreetMap

Eckdaten Objektnr. 4417/1463

Art: Wohnung
Land: Österreich
Zustand: Erstbezug
Alter: Neubau
Kaufpreis: 270.000,00
Wohnfläche: 55,63 m²
Grundstücksfl.: 1.357,20 m²
Zimmer: 2
Bäder: 1
WC: 1
Terrassen: 1
Keller: 3,66 m²
Nebenkostenübersicht Kauf Immobilie merken Exposé

Ausstattung

Fliesen, Parkett, Personenaufzug, Südbalkon, Dusche, Garage, Wasch/Trockenraum


Immobilie anfragen


Ihre persönliche Beratung

Neuwog Immobilien GmbH

Bmstr. Georg Altmüller

NEUWOG Immobilientreuhand und Liegenschaftserrichtungs GmbH

T +43 7227 2005340

H +43 676 3388238