St. Georgen MITTE - ein Standort - viele Möglichkeiten

Wohnung , 4880 St. Georgen im Attergau , Attergauer Straße


Wir, die Firma Neuwog errichten in Zusammenarbeit mit dem regionalen Partner Atticon in der Attergauer Straße Nr 13 und 15 in 4880 St. Georgen im Attergau eine Immobile in hervorragender Lage. Mitten im Zentrum nur wenige Gehminuten vom Bahnhof entfernt, genießen Sie eine optimale Anbindung an den öffentlichen Verkehr. Die Lage des Projektes besticht durch seine Nähe zum Attersee ( in 5 Autominuten erreichbar) und auch mit Ihrer sehr guten Autobahnanbindung nach Salzburg. Wir als Bauträger, sind bemüht in den Gewerbeflächen des Objektes Ärzte für eine optimale Gesundheitsvorsorge unterzubringen. Hier wohnen oder arbeiten Sie zentral und komfortabel!

Beschreibung der Immobilie

St. Georgen MITTE - ein Standort - viele Möglichkeiten

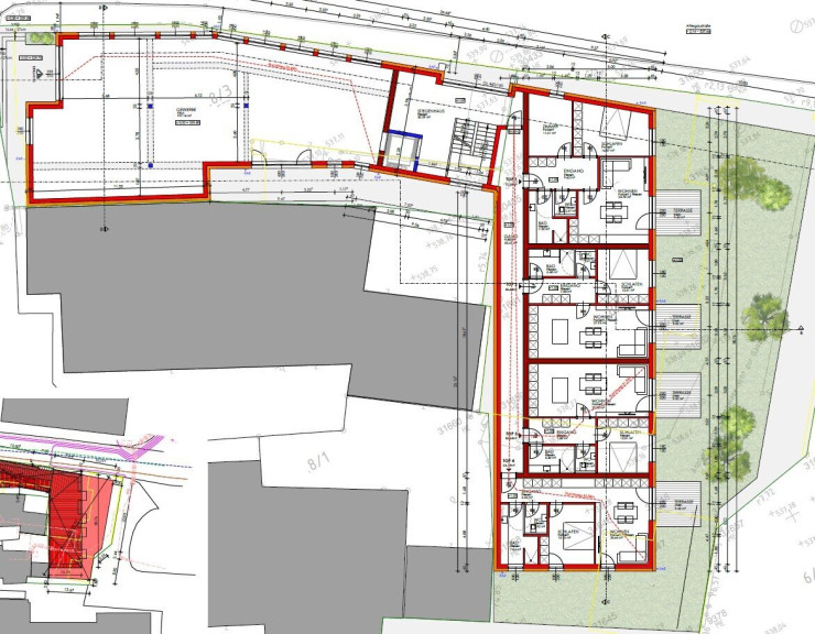
Willkommen in Ihrem neuen Zuhause in 4880 St. Georgen im Attergau – einer charmanten Wohnung, die nicht nur durch ihre hochwertigen Ausstattung, sondern auch durch die perfekte Lage besticht. Diese wunderschöne 2-Zimmer-Wohnung im 1. Obergeschoss bietet Ihnen auf großzügigen 55,63 m² alles, was Sie für ein komfortables und modernes Leben benötigen.



Die Wohnung ist ein Erstbezug und wartet nur darauf, von Ihnen mit Leben gefüllt zu werden. Genießen Sie die lichtdurchfluteten Räume, die mit stilvollen Fliesen und elegantem Parkett ausgestattet sind. Der offene Wohnbereich verbindet sich nahtlos mit der modernen Küche, die Ihnen die Möglichkeit bietet, kulinarische Köstlichkeiten zu zaubern und gesellige Abende mit Freunden und Familie zu verbringen.



Ein besonderes Highlight ist der sonnige Südbalkon, der Ihnen nicht nur einen atemberaubenden Ausblick auf die Umgebung bietet, sondern auch der perfekte Ort ist, um die warmen Sonnenstrahlen zu genießen. Stellen Sie sich vor, wie Sie Ihren Morgenkaffee oder ein Glas Wein am Abend hier in aller Ruhe genießen – ein wahrhaftiger Rückzugsort!



Die Wohnung verfügt über zwei geräumige Zimmer, die sowohl als Schlafzimmer als auch als Arbeitszimmer genutzt werden können. Die moderne Dusche bietet Ihnen den Komfort, den Sie sich wünschen, während die durchdachte Raumaufteilung optimalen Wohnkomfort garantiert. Für zusätzlichen Komfort sorgt der Personenaufzug, der Ihnen den Zugang zur Wohnung erleichtert.



Praktische Extras wie ein Wasch- und Trockenraum sowie ein Fahrradraum machen diese Immobilie besonders attraktiv. Ihre Fahrzeuge finden in der dazugehörigen Garage ausreichend Platz und sind somit optimal vor Witterungseinflüssen geschützt.



Diese Wohnung ist mehr als nur ein Wohnraum – sie ist ein Lebensgefühl. Lassen Sie sich von der Kombination aus moderner Ausstattung, durchdachtem Komfort und einer perfekten Lage begeistern. Vereinbaren Sie noch heute einen Besichtigungstermin und entdecken Sie Ihr neues Zuhause in St. Georgen im Attergau!


Hinweis gemäß Energieausweisvorlagegesetz: Ein Energieausweis wurde vom Eigentümer bzw. Verkäufer, nach unserer Aufklärung über die generell geltende Vorlagepflicht, sowie Aufforderung zu seiner Erstellung noch nicht vorgelegt. Daher gilt zumindest eine dem Alter und der Art des Gebäudes entsprechende Gesamtenergieeffizienz als vereinbart. Wir übernehmen keinerlei Gewähr oder Haftung für die tatsächliche Energieeffizienz der angebotenen Immobilie.

Infrastruktur / Entfernungen

Gesundheit
Arzt <475m
Apotheke <100m
Klinik <2.075m

Kinder & Schulen
Schule <325m
Kindergarten <425m

Nahversorgung
Supermarkt <250m
Bäckerei <700m

Sonstige
Bank <250m
Geldautomat <250m
Post <325m
Polizei <475m

Verkehr
Bus <225m
Bahnhof <300m
Autobahnanschluss <1.550m

Angaben Entfernung Luftlinie / Quelle: OpenStreetMap

Eckdaten Objektnr. 4417/1467

Art: Wohnung
Land: Österreich
Zustand: Erstbezug
Alter: Neubau
Kaufpreis: 260.000,00
Wohnfläche: 55,63 m²
Grundstücksfl.: 1.357,20 m²
Zimmer: 2
Bäder: 1
WC: 1
Balkone: 1
Keller: 3,90 m²
Nebenkostenübersicht Kauf Immobilie merken Exposé

Ausstattung

Fliesen, Parkett, Personenaufzug, Südbalkon, Dusche, Garage, Wasch/Trockenraum


Immobilie anfragen


Ihre persönliche Beratung

Neuwog Immobilien GmbH

Bmstr. Georg Altmüller

NEUWOG Immobilientreuhand und Liegenschaftserrichtungs GmbH

T +43 7227 2005340

H +43 676 3388238