St. Georgen MITTE - ein Standort - viele Möglichkeiten

Wohnung - Dachgeschoß, 4880 St. Georgen im Attergau , Attergauer Straße


Wir, die Firma Neuwog errichten in Zusammenarbeit mit dem regionalen Partner Atticon in der Attergauer Straße Nr 13 und 15 in 4880 St. Georgen im Attergau eine Immobile in hervorragender Lage. Mitten im Zentrum nur wenige Gehminuten vom Bahnhof entfernt, genießen Sie eine optimale Anbindung an den öffentlichen Verkehr. Die Lage des Projektes besticht durch seine Nähe zum Attersee ( in 5 Autominuten erreichbar) und auch mit Ihrer sehr guten Autobahnanbindung nach Salzburg. Wir als Bauträger, sind bemüht in den Gewerbeflächen des Objektes Ärzte für eine optimale Gesundheitsvorsorge unterzubringen. Hier wohnen oder arbeiten Sie zentral und komfortabel!

Beschreibung der Immobilie

St. Georgen MITTE - ein Standort - viele Möglichkeiten

Willkommen in Ihrem neuen Zuhause in St. Georgen im Attergau!



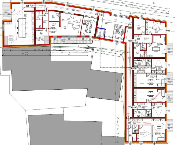
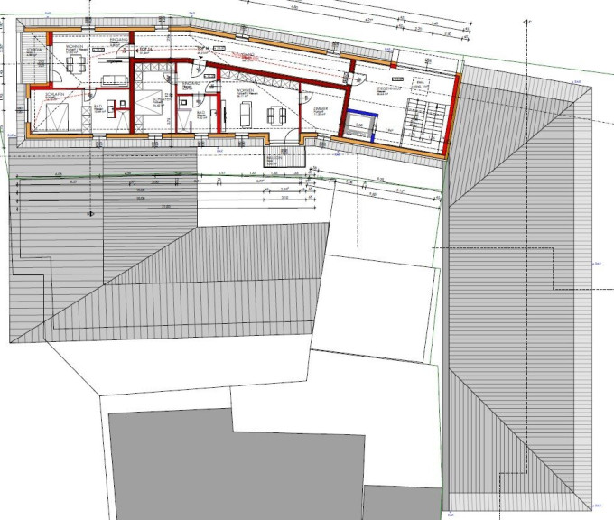
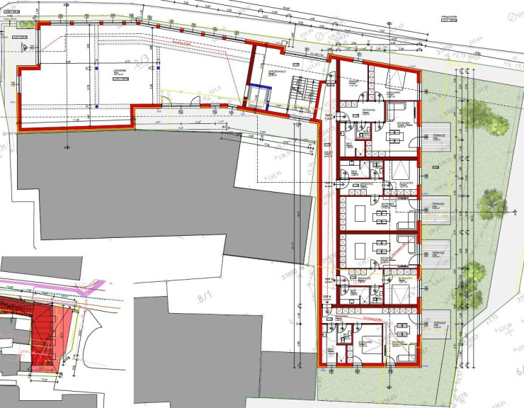
Diese bezaubernde Dachgeschoßwohnung in der 3. Etage bietet Ihnen nicht nur eine erstklassige Wohnlage, sondern auch modernen Wohnkomfort auf 51,5 m². Hier genießen Sie die Vorzüge eines Erstbezugs, der es Ihnen ermöglicht, Ihre persönlichen Wohnträume sofort zu verwirklichen.



Mit zwei hellen und einladenden Zimmern ist diese Wohnung ideal für Paare, kleine Familien oder Singles. Der durchdachte Grundriss sorgt für eine optimale Nutzung der Wohnfläche und bietet Ihnen viel Raum zum Entspannen und Wohnen. Die hochwertige Ausstattung mit Fliesen und Parkett verleiht den Räumen eine elegante Note und sorgt für eine behagliche Atmosphäre.



Ein besonderes Highlight dieser Immobilie ist die Loggia, die Ihnen einen herrlichen Blick in die Umgebung bietet und ideal ist, um die Abendsonne zu genießen. Der Nordwestbalkon lädt dazu ein, nach einem langen Tag zu entspannen und die frische Luft zu genießen.



Die Wohnung ist mit einem modernen Badezimmer ausgestattet, das über ein Fenster und eine komfortable Dusche verfügt. Hier können Sie sich nach einem langen Tag erfrischen und entspannen. Zudem steht Ihnen ein Wasch- und Trockenraum zur Verfügung, der Ihnen das Leben erleichtert.



Ein Personenaufzug sorgt für einen mühelosen Zugang zur Wohnung, während die Garage Ihnen einen sicheren Stellplatz für Ihr Fahrzeug bietet.



Erleben Sie die Vorzüge des Lebens in St. Georgen im Attergau – einer charmanten Gemeinde, die Ihnen sowohl Ruhe als auch eine hervorragende Infrastruktur bietet.



Zögern Sie nicht und vereinbaren Sie noch heute einen Besichtigungstermin. Ihre Traumwohnung wartet auf Sie!


Hinweis gemäß Energieausweisvorlagegesetz: Ein Energieausweis wurde vom Eigentümer bzw. Verkäufer, nach unserer Aufklärung über die generell geltende Vorlagepflicht, sowie Aufforderung zu seiner Erstellung noch nicht vorgelegt. Daher gilt zumindest eine dem Alter und der Art des Gebäudes entsprechende Gesamtenergieeffizienz als vereinbart. Wir übernehmen keinerlei Gewähr oder Haftung für die tatsächliche Energieeffizienz der angebotenen Immobilie.

Infrastruktur / Entfernungen

Gesundheit
Arzt <475m
Apotheke <100m
Klinik <2.075m

Kinder & Schulen
Schule <325m
Kindergarten <425m

Nahversorgung
Supermarkt <250m
Bäckerei <700m

Sonstige
Bank <250m
Geldautomat <250m
Post <325m
Polizei <475m

Verkehr
Bus <225m
Bahnhof <300m
Autobahnanschluss <1.550m

Angaben Entfernung Luftlinie / Quelle: OpenStreetMap

Eckdaten Objektnr. 4417/1477

Art: Wohnung - Dachgeschoß
Land: Österreich
Zustand: Erstbezug
Alter: Neubau
Kaufpreis: 260.000,00
Wohnfläche: 51,50 m²
Grundstücksfl.: 1.357,20 m²
Zimmer: 2
Bäder: 1
WC: 1
Keller: 3,74 m²
Nebenkostenübersicht Kauf Immobilie merken Exposé

Ausstattung

Parkett, Fliesen, Personenaufzug, Bad mit Fenster, Dusche, Garage, Wasch/Trockenraum


Immobilie anfragen


Ihre persönliche Beratung

Neuwog Immobilien GmbH

Bmstr. Georg Altmüller

NEUWOG Immobilientreuhand und Liegenschaftserrichtungs GmbH

T +43 7227 2005340

H +43 676 3388238