St. Georgen MITTE - ein Standort - viele Möglichkeiten

Büro / Praxis , 4880 St. Georgen im Attergau , Attergauer Straße


Wir, die Firma Neuwog errichten in Zusammenarbeit mit dem regionalen Partner Atticon in der Attergauer Straße Nr 13 und 15 in 4880 St. Georgen im Attergau eine Immobile in hervorragender Lage. Mitten im Zentrum nur wenige Gehminuten vom Bahnhof entfernt, genießen Sie eine optimale Anbindung an den öffentlichen Verkehr. Die Lage des Projektes besticht durch seine Nähe zum Attersee ( in 5 Autominuten erreichbar) und auch mit Ihrer sehr guten Autobahnanbindung nach Salzburg. Wir als Bauträger, sind bemüht in den Gewerbeflächen des Objektes Ärzte für eine optimale Gesundheitsvorsorge unterzubringen. Hier wohnen oder arbeiten Sie zentral und komfortabel!

Beschreibung der Immobilie

St. Georgen MITTE - ein Standort - viele Möglichkeiten

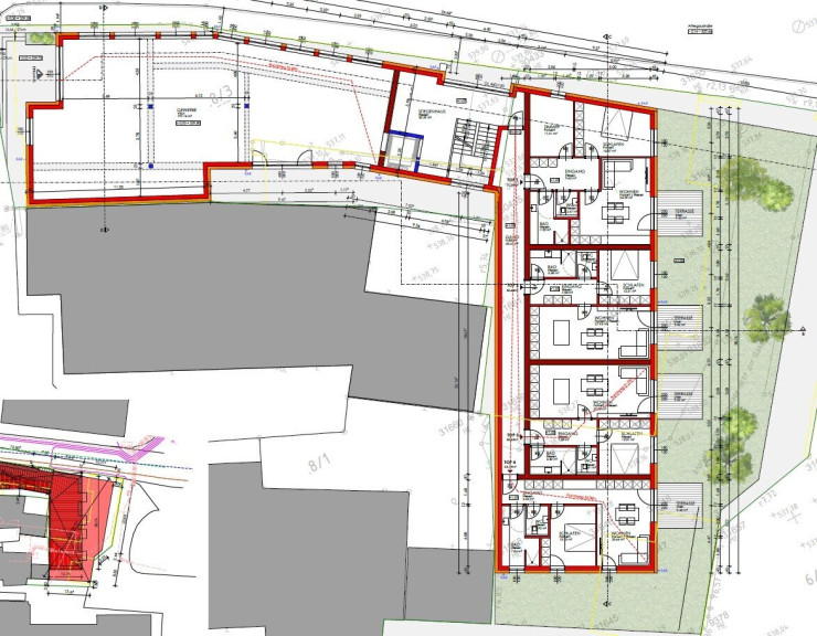
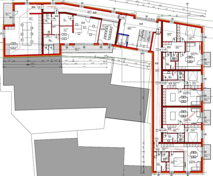
Willkommen in Ihrem neuen Büro oder Ihrer neuen Praxis in der charmanten Gemeinde St. Georgen im Attergau, Oberösterreich. Diese beeindruckende Immobilie im Erdgeschoss bietet Ihnen nicht nur eine großzügige Fläche von 127m², sondern auch zahlreiche Annehmlichkeiten, die Ihre Arbeitsumgebung optimal gestalten.



Der Erstbezug dieser modernen Räumlichkeiten garantiert Ihnen eine zeitgemäße Ausstattung und die Möglichkeit, Ihre individuellen Vorstellungen umzusetzen. Die lichtdurchfluteten Räume sind ideal für kreative Büros, Arztpraxen oder therapeutische Einrichtungen und bieten Ihnen die Flexibilität, die Sie benötigen, um Ihre Dienstleistungen erfolgreich anzubieten.



Genießen Sie die Vorzüge einer großzügigen Terrasse, ideal für entspannte Pausen oder informelle Besprechungen im Freien. Der westlich ausgerichtete Balkon bietet Ihnen zudem die Möglichkeit, den Abend in angenehmer Atmosphäre ausklingen zu lassen. Ihre Kunden und Mitarbeiter werden die einladende und harmonische Atmosphäre zu schätzen wissen.



Ein Personenaufzug sorgt für barrierefreien Zugang zu Ihren Räumlichkeiten, was besonders seniorengerecht ist und Ihnen ermöglicht, eine breite Klientel zu bedienen. Die durchdachte Architektur umfasst zudem eine praktische Rampe, einen Wasch- und Trockenraum, einen Fahrradraum sowie einen Abstellraum – alles, was Sie für einen reibungslosen Arbeitsalltag benötigen.



Die Lage dieser Immobilie könnte nicht besser sein. Mit hervorragender Verkehrsanbindung durch Bus und Bahnhof sind Sie optimal an das öffentliche Verkehrsnetz angebunden. Dies macht Ihre Praxis oder Ihr Büro nicht nur für Sie, sondern auch für Ihre Kunden leicht erreichbar.



In unmittelbarer Nähe finden Sie alles, was das Herz begehrt: Arztpraxen, Apotheken, Schulen, Kindergärten, Supermärkte und Bäckereien. Damit bieten Sie nicht nur eine zentrale Anlaufstelle für Ihre Kunden, sondern auch ein angenehmes Umfeld für Ihre Mitarbeiter.



Nutzen Sie diese einmalige Gelegenheit, Ihre Vision in einem modernen, funktionalen und ansprechenden Raum zu verwirklichen. Diese Büro- oder Praxisfläche in St. Georgen im Attergau ist ein Ort, an dem Sie Ihre beruflichen Ziele erreichen und gleichzeitig ein positives Arbeitsumfeld schaffen können. Lassen Sie sich diese Chance nicht entgehen und vereinbaren Sie noch heute einen Besichtigungstermin!


Hinweis gemäß Energieausweisvorlagegesetz: Ein Energieausweis wurde vom Eigentümer bzw. Verkäufer, nach unserer Aufklärung über die generell geltende Vorlagepflicht, sowie Aufforderung zu seiner Erstellung noch nicht vorgelegt. Daher gilt zumindest eine dem Alter und der Art des Gebäudes entsprechende Gesamtenergieeffizienz als vereinbart. Wir übernehmen keinerlei Gewähr oder Haftung für die tatsächliche Energieeffizienz der angebotenen Immobilie.

Infrastruktur / Entfernungen

Gesundheit
Arzt <475m
Apotheke <100m
Klinik <2.075m

Kinder & Schulen
Schule <325m
Kindergarten <425m

Nahversorgung
Supermarkt <250m
Bäckerei <700m

Sonstige
Bank <250m
Geldautomat <250m
Post <325m
Polizei <475m

Verkehr
Bus <225m
Bahnhof <300m
Autobahnanschluss <1.550m

Angaben Entfernung Luftlinie / Quelle: OpenStreetMap

Eckdaten Objektnr. 4417/1594

Art: Büro / Praxis
Land: Österreich
Zustand: Erstbezug
Alter: Neubau
Kaufpreis: 528.200,00
Nutzfläche: 127,00 m²
Grundstücksfl.: 1.357,20 m²
Verkaufsfläche: 127,00 m²
Bürofläche: 127,00 m²
Terrassen: 1
Nebenkostenübersicht Kauf Immobilie merken Exposé

Ausstattung

Personenaufzug, Westbalkon, Garage, Rampe, Wasch/Trockenraum


Immobilie anfragen


Ihre persönliche Beratung

Neuwog Immobilien GmbH

Bmstr. Georg Altmüller

NEUWOG Immobilientreuhand und Liegenschaftserrichtungs GmbH

T +43 7227 2005340

H +43 676 3388238