St. Georgen MITTE - ein Standort - viele Möglichkeiten

Büro / Praxis , 4880 St. Georgen im Attergau , Attergauer Straße


Wir, die Firma Neuwog errichten in Zusammenarbeit mit dem regionalen Partner Atticon in der Attergauer Straße Nr 13 und 15 in 4880 St. Georgen im Attergau eine Immobile in hervorragender Lage. Mitten im Zentrum nur wenige Gehminuten vom Bahnhof entfernt, genießen Sie eine optimale Anbindung an den öffentlichen Verkehr. Die Lage des Projektes besticht durch seine Nähe zum Attersee ( in 5 Autominuten erreichbar) und auch mit Ihrer sehr guten Autobahnanbindung nach Salzburg. Wir als Bauträger, sind bemüht in den Gewerbeflächen des Objektes Ärzte für eine optimale Gesundheitsvorsorge unterzubringen. Hier wohnen oder arbeiten Sie zentral und komfortabel!

Beschreibung der Immobilie

St. Georgen MITTE - ein Standort - viele Möglichkeiten

Willkommen in Ihrer neuen Büro- oder Praxisimmobilie in der malerischen Gemeinde St. Georgen im Attergau, Oberösterreich!



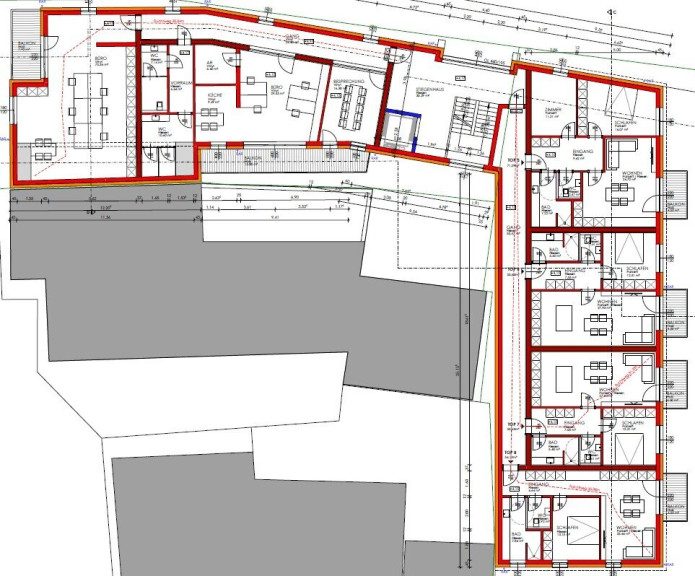
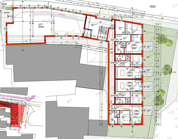
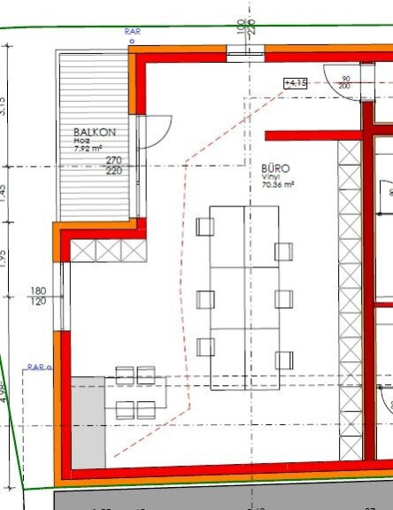
Diese erstklassige Immobilie befindet sich in der ersten Etage eines modernen Neubaus und bietet Ihnen auf 70,36 m² eine ideale Grundlage für Ihre geschäftlichen Aktivitäten. Ob als Büro oder als Praxis – hier haben Sie die Möglichkeit, Ihre Visionen in einem ansprechenden und funktionalen Raum zu verwirklichen.



Der Kaufpreis von 299.255,00 € ist nicht nur attraktiv, sondern auch ein kluger Investitionsschritt in eine Region, die mit einer hervorragenden Lebensqualität und einer starken wirtschaftlichen Perspektive aufwartet.



Die Immobilie ist in der Raumaufteilung individuell planbar und bietet Ihnen die Flexibilität, die Sie benötigen, um Ihre individuellen Anforderungen zu erfüllen.



Ein besonderes Highlight ist der großzügige Balkon: Genießen Sie entspannte Pausen im Freien auf dem großzügigen Nordwestbalkon. Hier können Sie frische Luft schnappen und den Blick auf die umliegende Natur genießen – ideal, um kreative Ideen zu entwickeln oder sich mit Kollegen auszutauschen.



Zusätzlich zu den hellen und freundlichen Raum steht Ihnen ein Personenaufzug zur Verfügung, der den Zugang zu Ihrer neuen Immobilie erleichtert. Die Garage sorgt dafür, dass Ihr Fahrzeug sicher und geschützt ist, während der Wasch- und Trockenraum sowie der Fahrradraum zusätzlichen Komfort bieten.



Die Lage ist ebenfalls unschlagbar: In unmittelbarer Nähe finden Sie alles, was Sie für den täglichen Bedarf benötigen. Ärzte, Apotheken, Schulen, Kindergärten, Supermärkte und Bäckereien sind schnell erreichbar und tragen zu einem angenehmen Arbeitsumfeld bei.



Die Verkehrsanbindung ist durch die Nähe zu Bushaltestellen und Bahnhöfen optimal. So gelangen Sie nicht nur bequem zu Ihren Kunden, sondern auch schnell in die umliegenden Städte.



Außerdem ist die Immobilie seniorengerecht gestaltet, was sie besonders attraktiv für verschiedene Nutzungsarten macht.



Nutzen Sie die Chance, Teil dieser lebendigen Gemeinschaft zu werden und investieren Sie in Ihre Zukunft. Kontaktieren Sie uns für weitere Informationen oder eine Besichtigung. Ihre neue Büro- oder Praxisimmobilie wartet auf Sie!


Hinweis gemäß Energieausweisvorlagegesetz: Ein Energieausweis wurde vom Eigentümer bzw. Verkäufer, nach unserer Aufklärung über die generell geltende Vorlagepflicht, sowie Aufforderung zu seiner Erstellung noch nicht vorgelegt. Daher gilt zumindest eine dem Alter und der Art des Gebäudes entsprechende Gesamtenergieeffizienz als vereinbart. Wir übernehmen keinerlei Gewähr oder Haftung für die tatsächliche Energieeffizienz der angebotenen Immobilie.

Infrastruktur / Entfernungen

Gesundheit
Arzt <475m
Apotheke <100m
Klinik <2.075m

Kinder & Schulen
Schule <325m
Kindergarten <425m

Nahversorgung
Supermarkt <250m
Bäckerei <700m

Sonstige
Bank <250m
Geldautomat <250m
Post <325m
Polizei <475m

Verkehr
Bus <225m
Bahnhof <300m
Autobahnanschluss <1.550m

Angaben Entfernung Luftlinie / Quelle: OpenStreetMap

Eckdaten Objektnr. 4417/1596

Art: Büro / Praxis
Land: Österreich
Zustand: Erstbezug
Alter: Neubau
Kaufpreis: 299.255,00
Nutzfläche: 70,36 m²
Verkaufsfläche: 70,36 m²
Bürofläche: 70,36 m²
Balkone: 1
Nebenkostenübersicht Kauf Immobilie merken Exposé

Ausstattung

Personenaufzug, Westbalkon, Garage, Wasch/Trockenraum


Immobilie anfragen


Ihre persönliche Beratung

Neuwog Immobilien GmbH

Bmstr. Georg Altmüller

NEUWOG Immobilientreuhand und Liegenschaftserrichtungs GmbH

T +43 7227 2005340

H +43 676 3388238