St. Georgen MITTE - ein Standort - viele Möglichkeiten

Büro / Praxis , 4880 St. Georgen im Attergau , Attergauer Straße


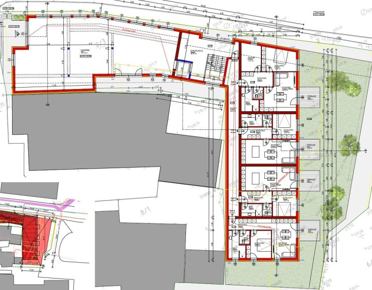
Wir, die Firma Neuwog errichten in Zusammenarbeit mit dem regionalen Partner Atticon in der Attergauer Straße Nr 13 und 15 in 4880 St. Georgen im Attergau eine Immobile in hervorragender Lage. Mitten im Zentrum nur wenige Gehminuten vom Bahnhof entfernt, genießen Sie eine optimale Anbindung an den öffentlichen Verkehr. Die Lage des Projektes besticht durch seine Nähe zum Attersee ( in 5 Autominuten erreichbar) und auch mit Ihrer sehr guten Autobahnanbindung nach Salzburg. Wir als Bauträger, sind bemüht in den Gewerbeflächen des Objektes Ärzte für eine optimale Gesundheitsvorsorge unterzubringen. Hier wohnen oder arbeiten Sie zentral und komfortabel!

Beschreibung der Immobilie

St. Georgen MITTE - ein Standort - viele Möglichkeiten

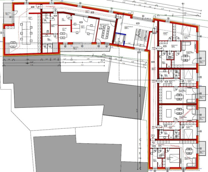
Willkommen in Ihrer neuen Büro- oder Praxisimmobilie in der charmanten Gemeinde St. Georgen im Attergau, Oberösterreich! Diese moderne Immobilie in der ersten Etage bietet Ihnen die ideale Grundlage für Ihre beruflichen Ambitionen.



Mit einem attraktiven Kaufpreis von 352.500,00 € erwerben Sie nicht nur einen Raum, sondern auch die Möglichkeit, Ihre Ideen in einem Erstbezug zum Leben zu erwecken. Die großzügige Fläche lässt sich individuell gestalten und an Ihre spezifischen Bedürfnisse anpassen. Ob als Büro oder Praxis – hier haben Sie die Freiheit, die Räumlichkeiten nach Ihren Vorstellungen zu verändern.



Besonders hervorzuheben ist der einladende Westbalkon, der Ihnen nicht nur eine entspannte Auszeit während der Pausen bietet, sondern auch einen herrlichen Blick auf die Umgebung. Der Nordwestbalkon und die Terrasse erweitern den Raum und laden dazu ein, frische Luft zu schnappen oder informelle Meetings im Freien abzuhalten.



Die Immobilie ist seniorengerecht gestaltet und mit einem modernen Personenaufzug ausgestattet, was den Zugang für alle Altersgruppen erleichtert. Darüber hinaus stehen Ihnen praktische Einrichtungen wie ein Wasch- und Trockenraum sowie ein Fahrradraum zur Verfügung, die den Alltag komfortabel gestalten.



Die Verkehrsanbindung könnte nicht besser sein! Mit Bus und Bahnhof in unmittelbarer Nähe erreichen Sie Ihre Kunden und Klienten schnell und zuverlässig.



Die Lage ist ein weiterer Pluspunkt dieser Immobilie. In der Umgebung finden Sie alles, was Sie brauchen: Ärzte, Apotheken, Schulen, Kindergärten, Supermärkte und Bäckereien – ideal für eine lebendige Nachbarschaft, die sowohl Ihre Mitarbeiter als auch Ihre Klienten schätzen werden.



Nutzen Sie diese einmalige Gelegenheit, sich in einem dynamischen Umfeld niederzulassen, das sowohl berufliche als auch persönliche Bedürfnisse erfüllt. Kontaktieren Sie uns noch heute, um sich diese einzigartige Immobilie nicht entgehen zu lassen! Ihre Zukunft in St. Georgen im Attergau beginnt hier.


Hinweis gemäß Energieausweisvorlagegesetz: Ein Energieausweis wurde vom Eigentümer bzw. Verkäufer, nach unserer Aufklärung über die generell geltende Vorlagepflicht, sowie Aufforderung zu seiner Erstellung noch nicht vorgelegt. Daher gilt zumindest eine dem Alter und der Art des Gebäudes entsprechende Gesamtenergieeffizienz als vereinbart. Wir übernehmen keinerlei Gewähr oder Haftung für die tatsächliche Energieeffizienz der angebotenen Immobilie.

Infrastruktur / Entfernungen

Gesundheit
Arzt <475m
Apotheke <100m
Klinik <2.075m

Kinder & Schulen
Schule <325m
Kindergarten <425m

Nahversorgung
Supermarkt <250m
Bäckerei <700m

Sonstige
Bank <250m
Geldautomat <250m
Post <325m
Polizei <475m

Verkehr
Bus <225m
Bahnhof <300m
Autobahnanschluss <1.550m

Angaben Entfernung Luftlinie / Quelle: OpenStreetMap

Eckdaten Objektnr. 4417/1597

Art: Büro / Praxis
Land: Österreich
Zustand: Erstbezug
Alter: Neubau
Kaufpreis: 352.500,00
Nutzfläche: 86,20 m²
Bürofläche: 86,20 m²
Balkone: 1
Nebenkostenübersicht Kauf Immobilie merken Exposé

Ausstattung

Personenaufzug, Westbalkon, Garage, Wasch/Trockenraum


Immobilie anfragen


Ihre persönliche Beratung

Neuwog Immobilien GmbH

Bmstr. Georg Altmüller

NEUWOG Immobilientreuhand und Liegenschaftserrichtungs GmbH

T +43 7227 2005340

H +43 676 3388238