Ein Zuhause mit Herz, Charme und Gartenidylle.

Haus , 9170 Ferlach


Ferlach

Beschreibung der Immobilie

Ein Zuhause mit Herz, Charme und Gartenidylle.

In idyllischer Lage, nur wenige Minuten südlich von Klagenfurt, erwartet Sie dieses liebevoll gepflegte Einfamilienhaus – ein Ort zum Ankommen und Wohlfühlen.



Das 1985 errichtete und 2023/2024 umfassend renovierte Haus überzeugt mit behaglicher Atmosphäre, durchdachtem Grundriss und einem zauberhaften Garten mit Biotop. Im Erdgeschoss bilden der großzügige Wohn- und Essbereich mit Kachelofen, die helle Küche mit Speis, zwei weitere Zimmer sowie ein Badezimmer das Herzstück des Hauses. Vom Esszimmer aus gelangen Sie direkt auf die Terrasse und in den märchenhaften Garten.



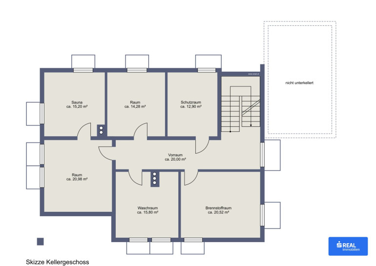
Das Kellergeschoss bietet zusätzliche Wohn- und Stauraumflächen, eine Sauna sowie einen Waschraum. Das Dachgeschoss mit rund 126 m² ist ausbaufähig und bietet Potenzial für individuelle Wohnideen.



Der liebevoll angelegte Garten mit Obstbäumen, Biotop und Terrasse schafft eine Atmosphäre von Ruhe und Naturverbundenheit. Eine Garage mit Carport und Lagerraum rundet das Angebot ab.



Ferlach bietet beste Infrastruktur, Schulen, Einkaufsmöglichkeiten und zahlreiche Freizeitangebote – eingebettet in die wunderschöne Landschaft des Rosentals.



Ein Haus voller Charme und Geborgenheit – ideal für alle, die Natur, Ruhe und Lebensqualität schätzen.

Infrastruktur / Entfernungen

Gesundheit
Arzt <1.000m
Apotheke <1.000m
Klinik <9.500m
Krankenhaus <9.500m

Kinder & Schulen
Schule <500m
Kindergarten <1.000m
Universität <9.500m
Höhere Schule <9.000m

Nahversorgung
Supermarkt <1.500m
Bäckerei <1.000m
Einkaufszentrum <9.500m

Sonstige
Bank <1.000m
Geldautomat <1.000m
Post <1.500m
Polizei <1.500m

Verkehr
Bus <500m
Bahnhof <1.500m
Flughafen <2.500m

Angaben Entfernung Luftlinie / Quelle: OpenStreetMap

Eckdaten Objektnr. 1081/3448

Art: Haus
Land: Österreich
Baujahr: 1985
Zustand: Modernisiert
Alter: Neubau
Wohnfläche: 118,58 m²
Grundstücksfl.: 1.161,00 m²
Bäder: 1
WC: 2
Balkone: 1
Stellplätze: 1
Heizwärmebedarf:  E  174,00 kWh/m²a
fGEE:  C  1,63
Nebenkostenübersicht Kauf Immobilie merken Exposé

Ausstattung

Fliesen, Parkett, Kamin, Zentralheizung, Einbauküche, Bad mit Fenster, Badewanne, Dusche, Kabel/Satelliten-TV, Carport, Garage, Parkplatz


Immobilie anfragen


Ihre persönliche Beratung

Gugganig Immobilien e. U.

Gaby Gugganig

s Real Immobilien Gugganig e.U.

T +43 676 9480300

H 0676 9480300