SONNENDURCHFLUTETES GARTENAPARTMENT IN BESTLAGE

Wohnung , 1180 Wien


1180 Wien, Cottagegasse

Beschreibung der Immobilie

SONNENDURCHFLUTETES GARTENAPARTMENT IN BESTLAGE

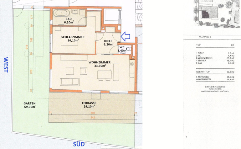
Südwestseitiges 63m² großes Apartment in bester Cottagelage mit 29m² großer Südterrasse und 69m² südwestseitigem Garten



( Vorzimmer, Garten, Terrasse, Wohnzimmer mit offene Küche, Schlafzimmer, Badezimmer mit Fenster, WC mit Gästewaschbecken & Kellerabteil )



--- Erdgeschoss mit Lift --- barrierefrei ---



Bezugsdatum: Sofort



Vom 6m² Vorzimmer gelangt man in das 33m² große, südwestseitige Wohnesszimmer mit offener Küche. Das Wohnesszimmer ist durch große Terrassentüren mit der 29m² großen Südterrasse und dem dahinter liegenden 69m² großen, Südwestgarten verbunden.

Die Küche ist mit einem Geschirrspüler, Ceranfeld, Backrohr, Kühlgefrierkombination und Dunstabzug versehen. Das Schlafzimmer ist 16m² groß und westseitig orientiert. Es gibt eine begehbare Garderobe.

Das Badezimmer mit Fenster verfügt über eine Wanne, ein Waschbecken, einen Handtuchtrockner, ein Waschbecken, fliesenbündigen Spiegel, Spots, elektrische Entlüftung und einen Waschmaschinenanschluss.

Das WC mit Handwaschbecken, elektrischer Entlüftung und Spiegel ist separat. 



Der Wohnung ist ein großes Kellerabteil ( Licht und Steckdose vorhanden )zugeordnet.



MIETDAUER: 5 Jahre mit Verlängerungsmöglichkeit



HIER GEHTS ZUM VIRTUELLEN RUNDGANG DURCH DIE IMMOBILIE



Infrastruktur: Durch die Straßenbahn 40 und 41 sowie den Bus 35A und 37A ist man sehr gut an das öffentliche Verkehrsnetz angebunden. Die U6 ist in fußläufiger Entfernung erreichbar. In wenigen Metern erreicht man den Spar auf der Gymnasiumstraße - in der Gymnasiumstraße gibt es weiters eine Apotheke und auf der Sternwartestraße befindet sich eine Post sowie eine Apotheke. In 8-10 Gehminuten gelangt man bis zur Gentzgasse und zur Währinger Straße - hier befinden sich zahlreiche weitere Einkaufsmöglichkeiten - ein Penny, eine Trafik, eine Apotheke, ein DM & ein Tchibo. Der nahegelegene Währingerpark, Türkenschanzpark und Sternwartepark laden zum Spazieren und Erholen ein. Eine aktuelle Schul- und Kindergartenaufstellung liegt uns auf und kann Ihnen gerne übermittelt werden.


Der Immobilienmakler erklärt, dass er – entgegen dem in der Immobilienwirtschaft üblichen Geschäftsgebrauch des Doppelmaklers – einseitig nur für den Vermieter tätig ist.

Infrastruktur / Entfernungen

Gesundheit
Arzt <500m
Apotheke <500m
Klinik <1.000m
Krankenhaus <1.000m

Kinder & Schulen
Schule <500m
Kindergarten <1.000m
Universität <1.000m
Höhere Schule <500m

Nahversorgung
Supermarkt <500m
Bäckerei <1.000m
Einkaufszentrum <2.000m

Sonstige
Geldautomat <1.000m
Bank <1.000m
Post <1.000m
Polizei <1.000m

Verkehr
Bus <500m
U-Bahn <1.000m
Straßenbahn <1.000m
Bahnhof <1.000m
Autobahnanschluss <2.000m

Angaben Entfernung Luftlinie / Quelle: OpenStreetMap

Eckdaten Objektnr. 3789

Art: Wohnung
Land: Österreich
Baujahr: 2019
Zustand: Gepflegt
Alter: Neubau
Gesamtmiete: 1.690,00
Kaltmiete (netto): 1.288,39 €
Kaltmiete: 1.447,46 €
Betriebskosten: 159,07 €
Heizkosten: 83,38 €
MwSt Gesamt: 159,16 €
Wohnfläche: 63,00 m²
Zimmer: 2
Bäder: 1
WC: 1
Terrassen: 1
Garten: 69,00 m²
Heizwärmebedarf:  C  50,24 kWh/m²a
fGEE:  B  0,96
Nebenkostenübersicht Miete Immobilie merken Exposé

Ausstattung

Fliesen, Parkett, Zentralheizung, Einbauküche, Südbalkon, Badewanne


Immobilie anfragen


Ihre persönliche Beratung

Alexandra Riegler

STANZEL & CO Wohnungs- und Geschäftsvermittlung GmbH

T +43 (1) 533 43 05

H +43 (1) 533 08 87