Schöne geförderte 2 Zimmerwohnung in Nöchling (Bezirk Melk) mit Badeteich!

Wohnung - Dachgeschoß, 3691 Nöchling


Nöchling liegt in der südwestlichen Ecke des Waldviertels in Niederösterreich und ist ca. 32 Autominuten von Melk entfernt. Nöchling ist aufgrund des herrlichen Kleinbadeteichs und der traumhaften Wanderrouten ein beliebter kleiner aber feiner Tourismusort im Waldviertel.

Beschreibung der Immobilie

Schöne geförderte 2 Zimmerwohnung in Nöchling (Bezirk Melk) mit Badeteich!

Mitten im idyllischen Wohlfühlort Nöchling befindet sich diese attraktive, geförderte 2-Zimmer-Wohnung. Dank ihrer durchdachten Größe eignet sie sich ideal für Singles oder Paare.



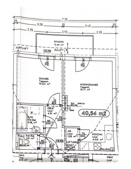
Die Wohnung verfügt über rund 41 m² Wohnfläche sowie einen einladenden Balkon. Ein ganz besonderes Highlight ist der hauseigene Badeteich direkt vor der Haustüre – ein echtes Plus an Lebensqualität.



Vom großzügigen Wohnzimmer aus gelangen Sie direkt auf den Balkon mit schönem Blick ins Grüne. Hier können Sie entspannte Stunden verbringen und die Ruhe der Umgebung genießen. Das modern verflieste Badezimmer ist mit einer Dusche ausgestattet, das WC befindet sich separat und präsentiert sich ebenfalls in zeitgemäßem Design.



Ein Kellerabteil sowie ein Autoabstellplatz, der bereits in der Miete inkludiert ist, runden dieses attraktive Wohnungsangebot ab. Bildungseinrichtungen und diverse Einkaufsmöglichkeiten befinden sich direkt im Ort und sind bequem erreichbar.



Zudem laden traumhafte Wanderwege in der Umgebung dazu ein, die Natur in vollen Zügen zu genießen – ganz nach dem Motto: „Leben ist gehen“.



Diese Immobilie bietet Ihnen eine hervorragende Gelegenheit, Ihren Wohntraum zu verwirklichen. Kontaktieren Sie uns gerne für weitere Informationen oder eine Besichtigung.



Bezug: ab sofort 



Befristung: unbefristet, 1 Jahr Kündigungsverzicht 3 Monate Kündigungsfrist



Energiekennzahlen: Laut Energieausweis vom 18.8.2020 beträgt der Heizwärmebedarf 43,29 kWh/m²a Klasse B und der Gesamtenergieeffizienz-Faktor 1,176 Klasse C.



Der einmalige Finanzierungsbeitrag beträgt € 7.877,24 und die monatliche Miete beläuft sich auf € 304,05 inkl. BK und Ust.

Die monatlichen Kosten für Warmwasser und Heizung betragen derzeit € 24,61.

Noch nichts gefunden? Wir informieren Sie über geeignete Immobilienangebote noch vor allen anderen.
Legen Sie jetzt Ihren individuellen Suchagenten unter folgendem Link an. Wir schicken Ihnen passende Immobilien exklusiv vorab zu.
Suchagent anlegen - https://heimat-oesterreich.service.immo/registrieren/de

Infrastruktur / Entfernungen

Gesundheit
Arzt <5.500m
Apotheke <9.000m
Krankenhaus <9.000m

Kinder & Schulen
Schule <1.000m
Kindergarten <500m

Nahversorgung
Supermarkt <500m
Bäckerei <500m
Einkaufszentrum <10.000m

Sonstige
Bank <6.000m
Geldautomat <6.000m
Post <500m
Polizei <9.500m

Verkehr
Bus <500m
Bahnhof <3.000m

Angaben Entfernung Luftlinie / Quelle: OpenStreetMap

Eckdaten Objektnr. 1529

Art: Wohnung - Dachgeschoß
Land: Österreich
Baujahr: 2007
Zustand: Gepflegt
Alter: Neubau
Gesamtmiete: 304,05
Kaltmiete (netto): 304,05 €
Kaltmiete: 304,05 €
Wohnfläche: 40,54 m²
Zimmer: 2
Bäder: 1
WC: 1
Balkone: 1
Stellplätze: 1
Heizwärmebedarf:  B  43,29 kWh/m²a
fGEE:  D  1,77
Nebenkostenübersicht Miete Immobilie merken Exposé

Ausstattung

Dusche, Parkplatz


Immobilie anfragen


Ihre persönliche Beratung

Luisa Burkhardt

Heimat Österreich gemeinnützige Wohnungs- und Siedlungsgesellschaft m.b.H.

T +43 1 9823601 637

H 0676 3794347