Ein repräsentatives Büro (706 m²) - aufgeteilt auf zwei Flächen mit hervorragender Verkehrsanbindung – Wiedner Hauptstraße

Büro / Praxis , 1050 Wien , Wiedner Hauptstraße


- Straßenbahn Linien 62, 18, 6, O - Bus 13A, 69A, 14A - U-Bahn: Station Südtiroler Platz (U1) sowie viele Zug- und S-Bahn-Anbindungen

Beschreibung der Immobilie

Ein repräsentatives Büro (706 m²) - aufgeteilt auf zwei Flächen mit hervorragender Verkehrsanbindung – Wiedner Hauptstraße

Sehr geehrte Damen und Herren,





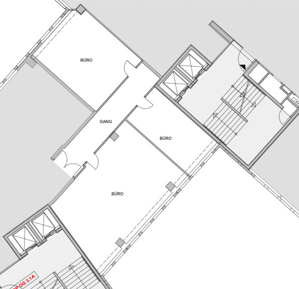
zur Vermietung gelangt eine großzügige Bürofläche (aufgeteilt in 2 Büros  (ca. 583m² und 123m²) im 3. Obergeschoss eines modernen Bürogebäudes.



Die Büroeinheit besticht durch ein flexibles Raumkonzept und eine erstklassige Ausstattung.



Die Lage auf der Wiedner Hauptstraße bietet nicht nur eine hervorragende Anbindung an öffentliche Verkehrsmittel, sondern auch eine schnelle Erreichbarkeit des Matzleinsdorfer Platzes und des Hauptbahnhofs. In unmittelbarer Nähe finden Sie eine Vielzahl an Restaurants, Cafés und Geschäften, die für eine exzellente Infrastruktur sorgen und den Büroalltag bereichern.





Fast Facts:



  • 583m² und 123m²
  • 3. OG
  • Kühlung
  • flexibles Raumkonzept



Kosteninformationen:



  • Hauptmietzins: 14,50 EUR /m²/ netto
  • BK: 3,37 EUR /m²/ Monat
  • HMZ + BK: 12.620,99 EUR (zzgl. 20% USt.)
  • HMZ + BK: 12.146,98 EUR (inkl. 20% USt.)




Fotos werden sobald als möglich nachgereicht.




Kontaktieren Sie uns jederzeit für nähere Informationen oder einen Besichtigungstermin.


Ich freue mich auf Ihre Nachricht!


Wir weisen darauf hin, dass zwischen dem Vermittler und dem zu vermittelnden Dritten ein familiäres oder wirtschaftliches Naheverhältnis besteht.


Der Vermittler ist als Doppelmakler tätig.

Infrastruktur / Entfernungen

Gesundheit
Arzt <250m
Apotheke <250m
Klinik <1.000m
Krankenhaus <500m

Kinder & Schulen
Schule <250m
Kindergarten <250m
Universität <500m
Höhere Schule <1.000m

Nahversorgung
Supermarkt <250m
Bäckerei <250m
Einkaufszentrum <750m

Sonstige
Geldautomat <250m
Bank <250m
Post <500m
Polizei <500m

Verkehr
Bus <250m
U-Bahn <750m
Straßenbahn <250m
Bahnhof <750m
Autobahnanschluss <3.000m

Angaben Entfernung Luftlinie / Quelle: OpenStreetMap

Eckdaten Objektnr. 271545196

Art: Büro / Praxis
Land: Österreich
Alter: Neubau
Kaltmiete (netto): 10.242,08 €
Kaltmiete: 12.622,48 €
Miete / m²: 14,50 €
Betriebskosten: 2.380,40 €
MwSt Gesamt: 2.524,50 €
Nutzfläche: 706,35 m²
Heizwärmebedarf:  C  64,30 kWh/m²a
fGEE:  B  0,94
Nebenkostenübersicht Miete Immobilie merken Exposé

Ausstattung

Fernwärme, Personenaufzug, Teeküche


Immobilie anfragen


Ihre persönliche Beratung

Immobiliaris GmbH

Mag. Lukas Suk

Immobiliaris GmbH

T +43 676 7304391