360° TOUR // CHARMANTE ALTBAUWOHNUNG am SCHOTTENTOR

Wohnung , 1010 Wien


Beschreibung der Immobilie

360° TOUR // CHARMANTE ALTBAUWOHNUNG am SCHOTTENTOR

SCHÖNE INNENSTADT-STILWOHUNG



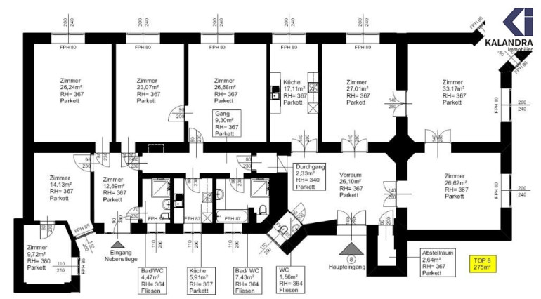
Diese klassische Altbauwohnung im 2.Liftstock eines repräsentativen Gebäudes nahe Schottentor ist eine Zusammenlegeung aus ehemals 2 Wohnungen, verfügt daher über 2 Eingänge und 2 Küchen und bietet folgende



Raumaufteilung:

- großes Vorzimmer (ca. 30m² inkl. zentralem Flur),

- straßenseitiges Eck-Wohnzimmer (ca. 34m²) mit Erker,

- zugänglich über das Eßzimmer (ca. 26m²)

- ein weiterer Wohnsalon (ca. 24m²) anschließend

- ein Schlafzimmer (ca. 16m²), sowie ein

- kleineres Schlafzimmer (ca. 13m² mit begehbarer Garerobe)

- ein Wannen-& Duschbad (ca. 8m²) sowie ein separates Gäste-WC

- die Küche (ca. 10m²)

- über die begehbare Garderobe gelangt man in

- 2 weitere Zimmer in einer Flucht (ca. 21m² & 26m²) über den 2.Vorraum in

- ein Wannenbad sowie separates WC sowie in

- ein weiteres Zimmer (ca. 13m²) und ein Kabinett (ca. 9m²)



Ausstattung:

- renovierter Stern-Parkettboden in den Wohnsalons & Schlafzimmern,

- beide Badezimmer mit weiß/ grauer Verfliesung

- die Küche ist mit einer Einbauküche mit weißen Hochglanz-Fronten und Einbaugeräten ausgestattet

- Kabel-/ Satelliten-TV

- Gas-Etagenheizung



Angeboten wird ein auf 5 Jahre befristetes Mietrverhältnis mit einjährigem, mieterseitigen Kündigungsverzicht.



360° Tour:

https://360.kalandra.at/view/portal/id/VV1H0

------------------------------------------------



 


Der Immobilienmakler erklärt, dass er – entgegen dem in der Immobilienwirtschaft üblichen Geschäftsgebrauch des Doppelmaklers – einseitig nur für den Vermieter tätig ist.

Infrastruktur / Entfernungen

Gesundheit
Arzt <500m
Apotheke <500m
Klinik <500m
Krankenhaus <1.500m

Kinder & Schulen
Schule <500m
Kindergarten <1.000m
Universität <500m
Höhere Schule <500m

Nahversorgung
Supermarkt <500m
Bäckerei <500m
Einkaufszentrum <1.500m

Sonstige
Geldautomat <500m
Bank <500m
Post <500m
Polizei <500m

Verkehr
Bus <500m
U-Bahn <500m
Straßenbahn <500m
Bahnhof <500m
Autobahnanschluss <3.000m

Angaben Entfernung Luftlinie / Quelle: OpenStreetMap

Eckdaten Objektnr. 15360

Art: Wohnung
Land: Österreich
Baujahr: 1900
Zustand: Erstbezug
Gesamtmiete: 5.158,92
Kaltmiete (netto): 4.193,31 €
Kaltmiete: 4.685,21 €
Betriebskosten: 443,80 €
MwSt Gesamt: 473,71 €
Wohnfläche: 262,00 m²
Zimmer: 8
Bäder: 2
WC: 3
Nebenkostenübersicht Miete Immobilie merken Exposé

Ausstattung

Gas, Etagenheizung, Personenaufzug


Immobilie anfragen


Ihre persönliche Beratung

KALANDRA Immobilien Robert Kalandra e.U.

Mag. Robin Kalandra

KALANDRA Immobilien Robert Kalandra e.U.

T +43-1533326913

H +43-69911804004

F +43-1-533-32-69-20