Betriebshalle mit Büroeinheit – ca. 760 m² Nutzfläche

Halle / Lager / Produktion - Produktion, 1140 Wien , Cumberlandstraße 69


- Nähe U4 - Nähe Bahnhof Wien Penzing - gute Anbindung an die Westautobahn

Beschreibung der Immobilie

Betriebshalle mit Büroeinheit – ca. 760 m² Nutzfläche

Sehr geehrte Damen und Herren,



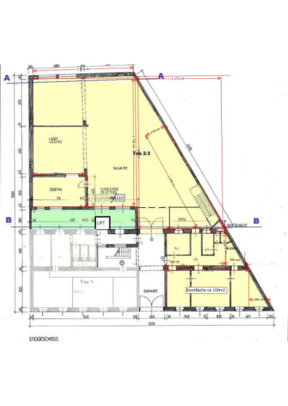
zum Verkauf gelangt eine Betriebshalle mit Lager und Büro im Gesamtausmaß von ca. 760 qm. 



Die Quadratur gliedert sich wie folgt:



  • ca 532m2 Halle und Bürofläche,
  • ca 126m2 Galeriefläche und eine 
  • ca 104m2 Kellerfläche samt weiteren vorbereiteten weiteren Sanitärräumen.




Die Halle / der Betriebsstandort liegt im Herzen des 14. Bezirkes und ist sehr gut angebunden, so dass Sie in nur wenigen Minuten den Bahnhof Wien Penzing, die U-Bahn U4 Hietzing oder die Autobahnanschlussstelle Westautobahn erreichen. Die Halle weist eine Raumhöhe zwischen 4 bis 6 Meter auf. Die Galeriefläche kann einerseits über die Betonstiege oder mittels eines Gabelstaplers beladen werden. 



Die Halle und Galerie ist aufgrund der vielen Oberlichten sehr hell.



Die Halle wird geräumt von sämtlichen Fahrnissen übergeben und in Absprache mit dem Käufer noch adaptiert.



Lieferungen und Ladetätigkeiten können einerseits via der Durchfahrt durch das Haupthaus oder über die Ladezone direkt vor dem Gebäude abgewickelt werden.




Kontaktieren Sie uns gerne jederzeit für nähere Informationen oder einen Besichtigungstermin.



Ich freue mich auf Ihren Anruf!

Infrastruktur / Entfernungen

Gesundheit
Arzt <300m
Apotheke <225m
Klinik <475m
Krankenhaus <1.000m

Kinder & Schulen
Schule <375m
Kindergarten <525m
Universität <1.100m
Höhere Schule <2.300m

Nahversorgung
Supermarkt <225m
Bäckerei <475m
Einkaufszentrum <1.725m

Sonstige
Geldautomat <575m
Bank <575m
Post <600m
Polizei <750m

Verkehr
Bus <225m
U-Bahn <350m
Straßenbahn <225m
Bahnhof <350m
Autobahnanschluss <4.100m

Angaben Entfernung Luftlinie / Quelle: OpenStreetMap

Eckdaten Objektnr. 271545175

Art: Halle / Lager / Produktion - Produktion
Land: Österreich
Zustand: Entkernt
Kaufpreis: 1.190.000,00
Nutzfläche: 760,00 m²
Bürofläche: 100,00 m²
Nebenkostenübersicht Kauf Immobilie merken Exposé

Immobilie anfragen


Ihre persönliche Beratung

Immobiliaris GmbH

Lea Leichtfried

Immobiliaris GmbH

T +43 664 1607111