++Der Platzhirsch++ Fantastischer 4 Zimmer Erstbezug mit Terrasse und Garten!

Wohnung , 1220 Wien


Beschreibung der Immobilie

++Der Platzhirsch++ Fantastischer 4 Zimmer Erstbezug mit Terrasse und Garten!

Zur Miete gelangt diese neu errichtete ca. 77m² große 4-Zimmer Wohnung mit Terrasse und Garten in sehr guter Lage des 22. Wiener Gemeindebezirks.





***ZUR VEREINBARUNG eines BESICHTIGUNGSTERMINS lassen SIE uns BITTE JEDENFALLS eine schriftliche ANFRAGE zukommen! (wir antworten verlässlich am selben Tag!)***



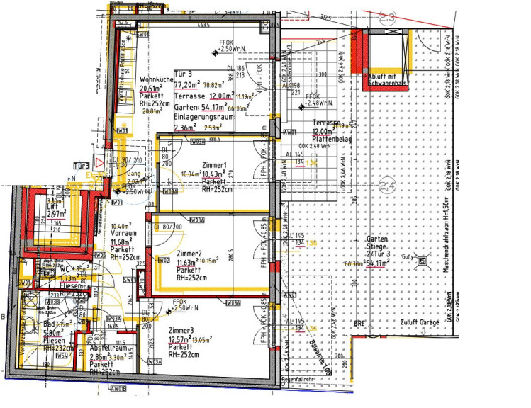
Raumaufteilung:



  • + Vorraum
  • + Abstellraum
  • + WC
  • + Badezimmer
  • + Wohnesszimmer
  • + Schlafzimmer
  • + Schlafzimmer
  • + Schlafzimmer


(siehe Plan u. aktuelle Fotos)



Zustand:



Das Objekt wurde neu errichtet. Es handelt sich um einen Erstbezug. (siehe aktuelle Fotos)



Ausstattungsdetails:



  • Fußbodenheizung
  • Parkettboden
  • hochwertig ausgestattete Sanitärräume
  • Luftwärmepumpe


Haus:



Das Objekt befindet sich im 2.Haus (EG) eines außergewöhnlich schönen Neubaus welcher soeben neu errichtet wurde.



Lage: 



Das Objekt ist in der Hirschstettner Straße gelegen und somit in einer der besten und gefragtesten Lagen im 22. Gemeindebezirk. Alle Geschäfte des täglichen Bedarfs und einige Restaurants und Cafes befinden sich in unmittelbarer Gehdistanz!



Verkehrsanbindung:



Die Bahnhofstelle Hirschstetten sichert eine perfekte Anbindung an das Stadtzentrum. Auch nahegelegene Busstationen (95A/95B) zählen zu der guten öffentlichen Anbindung unweit der Haustüre.



Preis:



Der monatliche Mietpreis für diese Wohnung beträgt Euro 1.999,-
Die monatlichen Kosten für Strom, Heizung und Wasser sind nicht in der oben genannten Miete inkludiert und müssen gesondert bezahlt werden! 

Die Kaution beträgt 4 Brutto-Monatsmieten (Euro 8.000,-).

Mietdauer: 5 Jahre

 



Zur Vereinbarung eines Besichtigungstermins lassen Sie uns bitte jedenfalls eine E-Mailanfrage zukommen!



Der IMMY ist die renommierteste Auszeichnung für Wiener Makler- und Verwalterbetriebe im Bereich Wohnimmobilien. Wir sind stolz den goldenen IMMY für das Jahr 2019 gewonnen zu haben!



Vielen Dank vor allem an unsere Kunden! Unser Unternehmen wurde auch zum Besten Start Up und in den Jahren 2015, 2018, 2019 und 2020 als Qualitätsmakler ausgezeichnet!



Bitte achten Sie darauf, dass Sie diese Immobilie, nach Ihrer Anfrage bei Adonia Immobilien, nicht auch bei einem anderen Immobilienmaklerbüro anfragen! Vielen Dank!



Nicht alle unsere Immobilien finden Sie auf den gängigen Plattformen. Wir freuen uns auf Ihren Besuch auf unserer Homepage unter adonia.at 



Wir weisen ausdrücklich auf unser wirtschaftliches Naheverhältnis mit dem Abgeber/ der Abgeberin hin!  Unsere gesetzlichen Pflichten als Doppelmakler werden dadurch jedoch nicht beeinträchtigt. Irrtum und Änderungen vorbehalten. 



Alle hier veröffentlichen Informationen basieren auf den uns von dem Abgeber/ der Abgeberin zur Verfügung gestellten Informationen und wurden nicht selbst erhoben.



Unsere Allgemeinen Geschäftsbedingungen können Sie sowohl in dem Ihnen zugesandten Expose einsehen als auch auf unserer Homepage. Wir weisen ausdrücklich darauf hin, dass diese AGBs Vertragsinhalt werden.



Der Schutz von personenbezogenen Daten ist uns wichtig und auch gesetzlich gefordert. Die Verarbeitung Ihrer personenbezogenen Daten erfolgt nach den datenschutzrechtlichen Bestimmungen. Auf unserer Homepage (unter Datenschutzinformation) finden Sie eine Übersicht die Sie über die wichtigsten Aspekte der Verarbeitung personenbezogener Daten informieren soll.


Wir weisen darauf hin, dass zwischen dem Vermittler und dem zu vermittelnden Dritten ein familiäres oder wirtschaftliches Naheverhältnis besteht.


Der Immobilienmakler erklärt, dass er – entgegen dem in der Immobilienwirtschaft üblichen Geschäftsgebrauch des Doppelmaklers – einseitig nur für den Vermieter tätig ist.

Infrastruktur / Entfernungen

Gesundheit
Arzt <1.000m
Apotheke <500m
Klinik <1.000m
Krankenhaus <2.000m

Kinder & Schulen
Schule <500m
Kindergarten <1.000m
Universität <3.500m
Höhere Schule <2.500m

Nahversorgung
Supermarkt <500m
Bäckerei <1.000m
Einkaufszentrum <1.500m

Sonstige
Geldautomat <1.000m
Bank <1.000m
Post <1.500m
Polizei <1.000m

Verkehr
Bus <500m
U-Bahn <1.500m
Straßenbahn <1.000m
Bahnhof <500m
Autobahnanschluss <1.000m

Angaben Entfernung Luftlinie / Quelle: OpenStreetMap

Eckdaten Objektnr. 62898

Art: Wohnung
Land: Österreich
Baujahr: 2023
Zustand: Erstbezug
Alter: Neubau
Gesamtmiete: 1.998,96
Kaltmiete (netto): 1.817,24 €
Kaltmiete: 1.817,24 €
MwSt Gesamt: 181,72 €
Wohnfläche: 77,21 m²
Zimmer: 4
Terrassen: 1
Garten: 54,17 m²
Heizwärmebedarf: 37,00 kWh/m²a
fGEE: 0,67
Nebenkostenübersicht Miete Immobilie merken Exposé

Ausstattung

Fliesen, Parkett, Fußbodenheizung, Personenaufzug


Immobilie anfragen


Ihre persönliche Beratung

Adonia Realitätenvermittlung GmbH

Benjamin Marinkovic

Adonia Immobilien GmbH

T 06765446834