Großzügige 2‑stöckige Wohnung mit Terrasse & Balkon in Kufstein zu vermieten

Wohnung , 6330 Kufstein


Beschreibung der Immobilie

Großzügige 2‑stöckige Wohnung mit Terrasse & Balkon in Kufstein zu vermieten

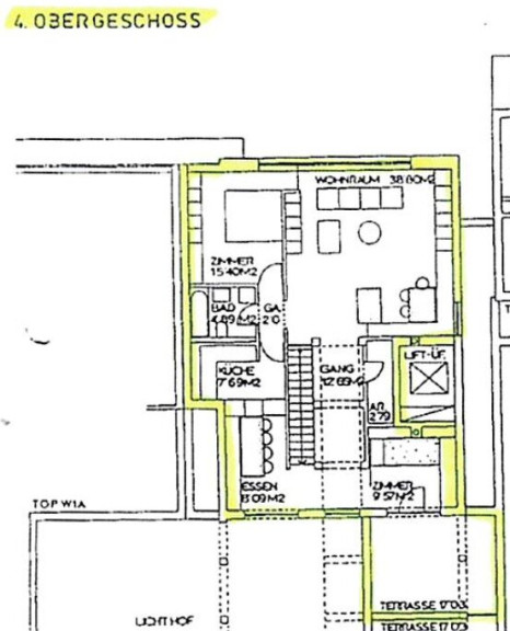
Zur Vermietung steht eine wunderschöne, sehr großzügige Maisonette‑Wohnung auf 2 Stockwerken in ruhiger und dennoch zentraler Lage von Kufstein. Die lichtdurchflutete Wohnung bietet insgesamt ca. 130 m² Wohnfläche sowie eine große Terrasse und einen zusätzlichen Balkon, die zu entspannten Stunden im Freien einladen. Ab 01.04.2026 bezugsfrei.



Highlights der Wohnung:



  • Wohnfläche: 130 m² auf 2 Etagen
  • Große Terrasse sowie separater Balkon
  • Helle, großzügige Räumlichkeiten
  • Ideale Raumaufteilung für Familien oder Paare
  • Ruhige Wohnlage mit guter Anbindung
  • Gepflegtes Haus & modernes Wohngefühl


Lage:
Die Wohnung befindet sich in sehr guter Lage in Kufstein, Nähe Einkaufsmöglichkeiten, öffentlicher Verkehrsmittel sowie Freizeitangebote. Die Festungsstadt bietet eine perfekte Kombination aus urbanem Lebensstil und Natur.


Der Immobilienmakler erklärt, dass er – entgegen dem in der Immobilienwirtschaft üblichen Geschäftsgebrauch des Doppelmaklers – einseitig nur für den Vermieter tätig ist.

Eckdaten Objektnr. 91

Art: Wohnung
Land: Österreich
Gesamtmiete: 2.056,13
Kaltmiete (netto): 1.310,12 €
Kaltmiete: 1.640,12 €
Betriebskosten: 330,00 €
Heizkosten: 210,00 €
MwSt Gesamt: 206,01 €
Wohnfläche: 130,00 m²
Nebenkostenübersicht Miete Immobilie merken Exposé

Immobilie anfragen


Ihre persönliche Beratung

Hypo Immobilien Betriebs GmbH

Lara Konzelmann

Hypo Immobilien Betriebs GmbH

T +43 664 9672364

H 0664 9672364