PROVISIONSFREI - ERSTBEZUG - ABSOLUTE RUHELAGE

Haus - Reihenhaus, 1220 Wien


Die Lage in Breitenlee bietet die perfekte Kombination aus Ruhe, Grünlage und guter Verkehrsanbindung. Öffentlicher Verkehr: - Buslinien 24A, 85A, 89A, 97A – wenige Gehminuten - U1 Kagraner Platz – ca. 11 Minuten mit dem Bus - U2 Hausfeldstraße / Aspern Nord – ca. 9 Minuten - Billa, Penny, Bipa sind in der Nähe. - Kindergarten & Volksschule Breitenlee - fußläufig erreichbar. - Apotheke, Ärzte, Zahnärzte in kurzer Distanz. - Tennisplatz, Reitanlage, Motorikpark, Sauna - Zahlreiche Spazier- und Radwege - Badeteiche in unmittelbarer Nähe (teils privat)

Beschreibung der Immobilie

PROVISIONSFREI - ERSTBEZUG - ABSOLUTE RUHELAGE

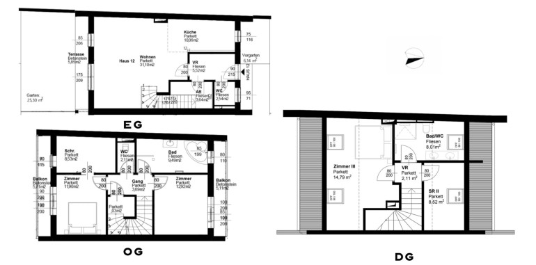
Dieses moderne Reihenhaus erstreckt sich über drei Etagen sowie einen privaten Garten und bietet eine durchdachte Raumaufteilung, hochwertige Bauweise und ein ruhiges Wohnumfeld im Grünen.

 



Im Erdgeschoss befindet sich der großzügige Wohnbereich mit direktem Zugang zur Terrasse und in den Garten. Die Küche ist optimal in den Wohnraum integriert. Zusätzlich gibt es einen Vorraum, ein separates WC und einen Abstellraum.



Das Obergeschoss umfasst zwei Schlafzimmer. Eines der Zimmer verfügt über einen eigenen Schrankraum, was besonders praktisch für Familien oder Paare ist, die Wert auf zusätzlichen Stauraum legen. Ergänzend gibt es ein großes Badezimmer und ein separates WC.



Im Dachgeschoss befindet sich noch eine Schlafzimmer mit eigenem Schrankraum und Badezimmer. 





Ein PKW-Stellplatz kann auf Wunsch zusätzlich angemietet (60 Euro pro Monat) werden.



!!!!!!!! Das Haus befindet sich derzeit im belagsfertigen Zustand. Sobald ein geeigneter Mieter gefunden ist, erfolgt die komplette Fertigstellung innerhalb von 4 Wochen – danach wird das Haus schlüsselfertig und bezugsbereit an die neuen Bewohner übergeben.



!!! Bitte beachten Sie: Einige der beigefügten Bilder sind Visualisierungen und dienen zur besseren Vorstellung des möglichen Zustands





Highlights




  • Massivbauweise



  • Fußbodenheizung



  • Energieeffiziente Luftwärmepumpe



  • Dreifachverglaste Fenster



  • Helle Wohnräume



  • Privater Garten & Terrasse



  • Stellplatz optional anmietbar



  • Erstbezug nach Fertigstellung



  • Provisionsfrei






Dieses Projekt bietet moderne Reihenhäuser in hochwertiger Neubauqualität, ideal für Familien und alle, die eine ruhige Wohnlage mit ausgezeichneter Infrastruktur schätzen. Die Kombination aus privaten Gärten, gut durchdachten Grundrissen und guter Verkehrsanbindung macht das Projekt zu einer attraktiven Wohngelegenheit im wachsenden Bezirk Donaustadt.





2350 EUR pro Monat, inkl. Betriebskosten. Strom, Heizkosten und Internet werden vom Mieter separat bezahlt.



Kaution: je nach Mieterprofil 3–6–12 Monatsmieten.

 



Wir würden uns über ein persönliches Gespräch mit Ihnen sehr freuen!



Weitere verfügbare Wohneinheiten mit zahlreichen aktuellen TOP Projekten!Mehr Details findet Sie auf unsere Homepage!



www.vigoimmobilien.at




Wir weisen darauf hin, dass zwischen dem Vermittler und dem zu vermittelnden Dritten ein familiäres oder wirtschaftliches Naheverhältnis besteht.


Der Immobilienmakler erklärt, dass er – entgegen dem in der Immobilienwirtschaft üblichen Geschäftsgebrauch des Doppelmaklers – einseitig nur für den Vermieter tätig ist.

Infrastruktur / Entfernungen

Gesundheit
Arzt <1.500m
Apotheke <2.000m
Klinik <2.000m
Krankenhaus <4.500m

Kinder & Schulen
Schule <500m
Kindergarten <1.500m
Universität <3.500m
Höhere Schule <3.500m

Nahversorgung
Supermarkt <500m
Bäckerei <500m
Einkaufszentrum <3.000m

Sonstige
Geldautomat <2.000m
Bank <2.000m
Post <2.000m
Polizei <2.500m

Verkehr
Bus <500m
U-Bahn <2.500m
Straßenbahn <2.000m
Bahnhof <2.500m
Autobahnanschluss <2.000m

Angaben Entfernung Luftlinie / Quelle: OpenStreetMap

Eckdaten Objektnr. 7618/905

Art: Haus - Reihenhaus
Land: Österreich
Baujahr: 2025
Zustand: Erstbezug
Alter: Neubau
Gesamtmiete: 2.350,00
Kaltmiete (netto): 2.350,00 €
Kaltmiete: 2.350,00 €
Wohnfläche: 134,36 m²
Zimmer: 4
Bäder: 2
WC: 3
Balkone: 2
Terrassen: 1
Stellplätze: 1
Garten: 30,92 m²
Heizwärmebedarf:  B  38,50 kWh/m²a
fGEE:  A  0,75
Nebenkostenübersicht Miete Immobilie merken Exposé

Ausstattung

Fliesen, Parkett, Fußbodenheizung, Zentralheizung, Bad mit Fenster, Badewanne, Dusche, Parkplatz


Immobilie anfragen


Ihre persönliche Beratung

VigoImmobilien GmbH

Anastasiia Tomilovych

Vigo Immobilien GmbH

T +43 664 220 41 85