PROVISIONSFREI - ERSTBEZUG - ABSOLUTE RUHELAGE

Wohnung , 1220 Wien


Die Lage in Breitenlee bietet die perfekte Kombination aus Ruhe, Grünlage und guter Verkehrsanbindung. Öffentlicher Verkehr: - Buslinien 24A, 85A, 89A, 97A – wenige Gehminuten - U1 Kagraner Platz – ca. 11 Minuten mit dem Bus - U2 Hausfeldstraße / Aspern Nord – ca. 9 Minuten - Billa, Penny, Bipa sind in der Nähe. - Kindergarten & Volksschule Breitenlee - fußläufig erreichbar. - Apotheke, Ärzte, Zahnärzte in kurzer Distanz. - Tennisplatz, Reitanlage, Motorikpark, Sauna - Zahlreiche Spazier- und Radwege - Badeteiche in unmittelbarer Nähe (teils privat)

Beschreibung der Immobilie

PROVISIONSFREI - ERSTBEZUG - ABSOLUTE RUHELAGE

Dieses moderne Reihenhaus erstreckt sich über drei Etagen sowie einen privaten Garten und bietet eine durchdachte Raumaufteilung, hochwertige Bauweise und ein ruhiges Wohnumfeld im Grünen.





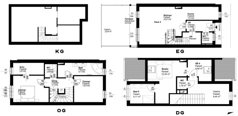
Im Erdgeschoss liegt der helle und offene Wohnbereich mit direktem Zugang zur Terrasse und zum Garten. Die Küche ist harmonisch in den Wohnraum integriert und bietet kurze Wege im Alltag. Ein Vorraum, ein separates WC sowie ein Abstellraum ergänzen diese Ebene und sorgen für zusätzliche Funktionalität.



Das Obergeschoss umfasst zwei gut geschnittene Schlafzimmer. Eines der Zimmer verfügt über einen eigenen Schrankraum, was besonders praktisch für Familien oder Paare ist, die Wert auf zusätzlichen Stauraum legen. Zudem befinden sich auf dieser Etage ein großes Badezimmer sowie ein separates WC.



Im Dachgeschoss befindet sich das Master Bedroom mit eigenem Schrankraum und Badezimmer. Zusätzlich stehen ein separates WC sowie eine offene Galerie zur Verfügung, die sich flexibel als Wohn- oder Arbeitszone nutzen lässt.



Im Untergeschoss befindet sich ein großzügiger Kellerbereich, der viel zusätzlichen Stauraum bietet. Hier stehen zwei große Lagerräume zur Verfügung, ideal zur Nutzung als Hobbyraum, Fitnessbereich oder Abstellfläche. Zusätzlich gibt es einen separaten Technikraum, der die Haustechnik übersichtlich und praktisch beherbergt.





Ein PKW-Stellplatz kann auf Wunsch zusätzlich angemietet (60 Euro pro Monat) werden.



!!!!!!!! Das Haus befindet sich derzeit im belagsfertigen Zustand. Sobald ein geeigneter Mieter gefunden ist, erfolgt die komplette Fertigstellung innerhalb von 4 Wochen – danach wird das Haus schlüsselfertig und bezugsbereit an die neuen Bewohner übergeben.



!!! Bitte beachten Sie: Einige der beigefügten Bilder sind Visualisierungen und dienen zur besseren Vorstellung des möglichen Zustands





Highlights




  • Massivbauweise



  • Fußbodenheizung



  • Energieeffiziente Luftwärmepumpe



  • Dreifachverglaste Fenster



  • Helle Wohnräume



  • Privater Garten & Terrasse



  • Stellplatz optional anmietbar



  • Erstbezug nach Fertigstellung



  • Provisionsfrei






Dieses Projekt bietet moderne Reihenhäuser in hochwertiger Neubauqualität, ideal für Familien und alle, die eine ruhige Wohnlage mit ausgezeichneter Infrastruktur schätzen. Die Kombination aus privaten Gärten, gut durchdachten Grundrissen und guter Verkehrsanbindung macht das Projekt zu einer attraktiven Wohngelegenheit im wachsenden Bezirk Donaustadt.





2400 EUR pro Monat, inkl. Betriebskosten. Strom, Heizkosten und Internet werden vom Mieter separat bezahlt.



Kaution: je nach Mieterprofil 3–6–12 Monatsmieten.

 



Wir würden uns über ein persönliches Gespräch mit Ihnen sehr freuen!



Weitere verfügbare Wohneinheiten mit zahlreichen aktuellen TOP Projekten!Mehr Details findet Sie auf unsere Homepage!



www.vigoimmobilien.at




Wir weisen darauf hin, dass zwischen dem Vermittler und dem zu vermittelnden Dritten ein familiäres oder wirtschaftliches Naheverhältnis besteht.


Der Immobilienmakler erklärt, dass er – entgegen dem in der Immobilienwirtschaft üblichen Geschäftsgebrauch des Doppelmaklers – einseitig nur für den Vermieter tätig ist.

Eckdaten Objektnr. 7618/902

Art: Wohnung
Land: Österreich
Baujahr: 2025
Zustand: Erstbezug
Alter: Neubau
Gesamtmiete: 2.400,00
Kaltmiete (netto): 2.400,00 €
Kaltmiete: 2.400,00 €
Wohnfläche: 126,36 m²
Zimmer: 5
Bäder: 2
WC: 3
Terrassen: 1
Stellplätze: 1
Garten: 18,78 m²
Keller: 42,57 m²
Heizwärmebedarf:  B  38,50 kWh/m²a
fGEE:  A  0,75
Nebenkostenübersicht Miete Immobilie merken Exposé

Ausstattung

Fliesen, Parkett, Fußbodenheizung, Zentralheizung, Bad mit Fenster, Badewanne, Dusche, Parkplatz


Immobilie anfragen


Ihre persönliche Beratung

VigoImmobilien GmbH

Anastasiia Tomilovych

Vigo Immobilien GmbH

T +43 664 220 41 85