Doppelhaushälfte mit Untersberg-Panorama in Puch bei Hallein
Haus
- Doppelhaushälfte,
5412
Puch bei Hallein
Die Doppelhaushälfte befindet sich in der beliebten Gemeinde Puch bei Hallein im Tennengau, nur rund 9 Kilometer südlich der Stadt Salzburg. Die Lage verbindet ruhiges Wohnen in naturnaher Umgebung mit ausgezeichneter Verkehrsanbindung über die A10 Tauernautobahn sowie die S-Bahn-Station Puch/Urstein. Einkaufsmöglichkeiten, Schulen, Ärzte und weitere infrastrukturelle Einrichtungen sind in wenigen Minuten erreichbar. Zahlreiche Wander- und Radwege sowie die beeindruckende Bergwelt rund um den Untersberg bieten ganzjährige Freizeitmöglichkeiten direkt vor der Haustür. Die Kombination aus Stadtnähe, Naturkulisse und gewachsenem Wohnumfeld macht diese Lage besonders attraktiv.
Beschreibung der Immobilie
Doppelhaushälfte mit Untersberg-Panorama in Puch bei Hallein
Mit dieser sanierungsbedürftigen Doppelhaushälfte in 5412 Puch bei Hallein bieten wir Ihnen eine seltene Gelegenheit, ein attraktives Wohnhaus mit großem Potenzial und herrlichem Blick auf den Untersberg zu realisieren. Die westlich ausgerichtete Liegenschaft besticht durch ihre sehr gute Lage in einem gewachsenen Wohnumfeld, umgeben von typischer Salzburger Voralpenlandschaft und doch nur wenige Minuten entfernt von städtischer Infrastruktur.
Puch bei Hallein ist eine lebendige Gemeinde im Salzburger Tennengau mit rund 5 000 Einwohnern, die für ihre optimale Verbindung zwischen ländlicher Idylle und urbaner Nähe zur Landeshauptstadt Salzburg geschätzt wird. Die Lage im Salzachtal und die unmittelbare Nähe zur Stadt Salzburg – nur etwa 9 Kilometer südlich des Salzburger Stadtzentrums – machen Puch zu einem der begehrtesten Wohnorte im Umland. Hier genießen Sie ruhiges Wohnen ohne auf die Vorzüge der Stadt verzichten zu müssen.
Verkehrstechnisch ist Puch hervorragend angebunden: Die nahegelegene Autobahn (A10) ermöglicht schnelle Erreichbarkeit in alle Richtungen, Salzburg ist in kurzer Zeit erreichbar, und durch den S‑Bahn‑Haltepunkt Puch / Urstein besteht eine direkte ÖBB‑Verbindung ins Stadtzentrum sowie in das weitere Salzburger Verkehrsnetz.
In der Umgebung erwarten Sie vielfältige Freizeit‑ und Erholungsmöglichkeiten: Sanfte Wander‑ und Radwege führen durch den Tennengau, nahegelegene Naherholungsgebiete wie der St. Jakob See laden zu Aktivitäten ein, und für anspruchsvollere Touren und alpinere Erlebnisse eröffnet die Bergwelt rund um den Untersberg oder das Tennengebirge unzählige Möglichkeiten. Direkt vor der Haustür können Sie die Natur genießen und zugleich in wenigen Minuten städtische Angebote nutzen.
Für Wintersportfreunde befinden sich mehrere attraktive Skigebiete in der weiteren Umgebung, etwa in der Region Tennengau und im Salzburger Land, die im Winter einen abwechslungsreichen Ski‑ und Freizeitbetrieb bieten. Die Nähe zur Stadt Salzburg wiederum ermöglicht auch kurze Ausflüge zu kulturellen Highlights, Museen, Konzerten oder besonderen Veranstaltungen – ideal für alle, die Natur und urbanes Leben verbinden möchten.
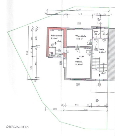
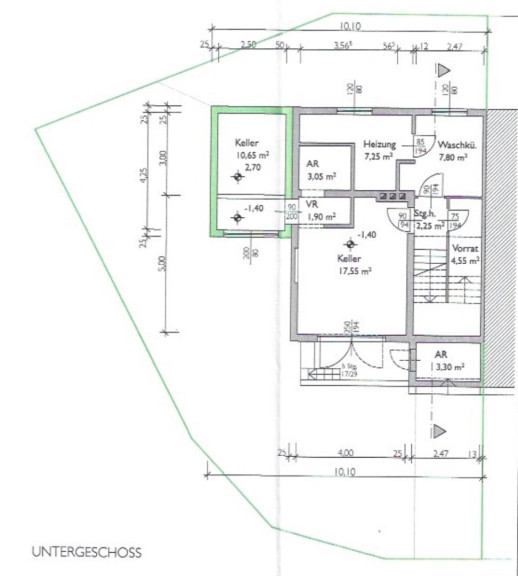
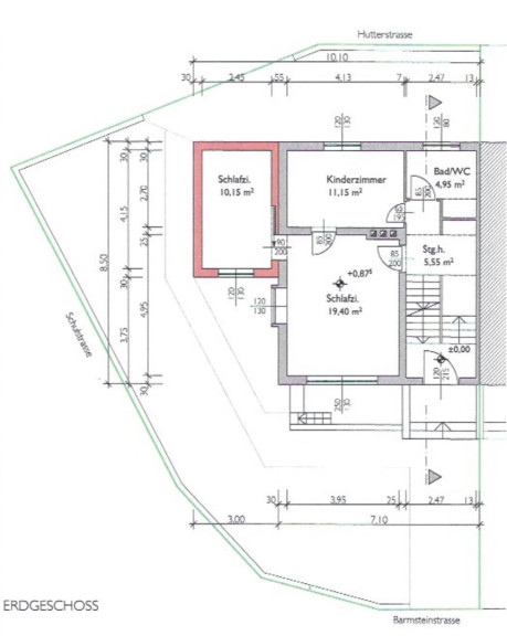
Die Doppelhaushälfte selbst verfügt über ca. 149 m² Wohnfläche und zusätzlich ca. 58 m² Kellerfläche auf einem ca. 229 m² großen Grundstück. Aufgrund ihres bestehenden Zustands bietet sie eine hervorragende Basis, um mit einer durchdachten Sanierung modernen Wohnraum zu schaffen und gleichzeitig den imposanten Panoramablick auf den Untersberg voll zur Geltung zu bringen. Die effiziente West‑Ausrichtung sorgt für lichtdurchflutete Räume und angenehme Abendstimmung auf der Terrasse oder im Garten. Die vorhandene Ölheizung mit gewartetem Brenner bildet eine solide Ausgangsbasis für die weitere Heiztechnikplanung.
Diese Liegenschaft richtet sich an alle, die eine Sanierungsimmobilie in gefragter Wohnlage mit Charakter und Entwicklungspotenzial suchen – ob als neues Zuhause für die Familie, generationenübergreifendes Wohnprojekt oder wertstabile Kapitalanlage. Dank der hervorragenden Lage in Puch bei Hallein verbinden Sie ländliche Ruhe, eine exzellente Infrastruktur und die Nähe zur kulturellen Vielfalt Salzburgs auf einzigartige Weise.
Der Vermittler ist als Doppelmakler tätig.
Infrastruktur / Entfernungen
Gesundheit
Arzt <500m
Apotheke <500m
Krankenhaus <4.000m
Klinik <6.000m
Kinder & Schulen
Schule <500m
Kindergarten <500m
Universität <1.500m
Höhere Schule <1.500m
Nahversorgung
Supermarkt <1.000m
Bäckerei <2.000m
Einkaufszentrum <8.500m
Sonstige
Bank <500m
Geldautomat <500m
Post <1.000m
Polizei <3.500m
Verkehr
Bus <500m
Bahnhof <500m
Autobahnanschluss <2.000m
Angaben Entfernung Luftlinie / Quelle: OpenStreetMap
Eckdaten Objektnr. 513/2992
| Art: | Haus - Doppelhaushälfte |
| Land: | Österreich |
| Baujahr: | 1964 |
| Kaufpreis: | 495.000,00 € |
| Wohnfläche: | 149,20 m² |
| Nutzfläche: | 207,50 m² |
| Grundstücksfl.: | 229,00 m² |
| Stellplätze: | 2 |
| Keller: | 58,30 m² |
| Heizwärmebedarf: | G 225,30 kWh/m²a |
| fGEE: | E 3,09 |
Ausstattung
Öl, Bad mit Fenster, Badewanne, Parkplatz
Ihre persönliche Beratung
Günther RADWANOVSKY
Stiller & Hohla Immobilientreuhänder GmbH
T +43 662 6585-100
H +43 650 6585 175
F +43 662 6585-500
Dieser Makler ist ein offizielles Mitglied des IR – ir.at Mehr Erfahren
