AB SOFORT VERFÜGBAR I ZENTRALE LAGE I BALKON I TOP AUFTEILUNG I CARPORT I DUSCHE I PROJEKT WOHNEN

Wohnung , 8605 Kapfenberg , Wiener Straße 76


Die Wohnung befindet sich in der Wiener Straße 76 im Stadtgebiet von Kapfenberg — eine äußerst attraktive Lage mit optimaler Infrastruktur und städtischem Komfort. Direkt vor Ihrer Haustür finden Sie Einkaufsmöglichkeiten, Cafés, Dienstleister und den öffentlichen Nahverkehr — erledigen Sie Ihre Besorgungen bequem und zeitsparend. Durch die zentrale Lage sind Verkehrsanbindungen ideal: Hauptplatz und Bahnhof von Kapfenberg sind in wenigen Gehminuten erreichbar, was Ihren Alltag spürbar erleichtert. Gleichzeitig überzeugt die Umgebung mit einer guten Mischung aus urbanem Lebensstil und Wohnqualität. Die Wiener Straße als Standort bietet damit eine ideale Basis für täglichen Komfort und Mobilität — ob für Berufstätige, Paare oder Familien, hier wohnen Sie zentral, gut angebunden und dennoch in einer Struktur, die Ruhe und Wohnwert schafft.

Beschreibung der Immobilie

AB SOFORT VERFÜGBAR I ZENTRALE LAGE I BALKON I TOP AUFTEILUNG I CARPORT I DUSCHE I PROJEKT WOHNEN

Exklusives Wohnjuwel in Kapfenberg: Moderner Wohnraum trifft auf Top-Lage!





  • Modernes Ambiente: Der Vorraum besticht durch hochwertige Decken-Spots und einen modernen Boden, der sofort ins Auge fällt.
  • Vollausgestattete Küche: Eine Glas-Schiebetür führt in die moderne Küche mit Kühlschrank und Gefrierfach, Backrohr, Ceranfeld, Dunstabzug, Spüle, Geschirrspüler und attraktiven Sitz- und Essmöglichkeiten, perfekt beleuchtet mit modernen Einbau-Spots.
  • Elegantes Badezimmer: Ausgestattet mit einer Eckdusche, Waschbecken mit Spiegelschrank und einem Waschmaschinenanschluss, präsentiert sich das Bad in einem modernen Schwarz-Weiß-Design.
  • Lichtdurchflutetes Wohnzimmer: Großzügig geschnitten mit Zugang zum innenhofseitigen, südwestlich ausgerichteten Balkon für entspannte Stunden im Freien.
  • Privates Schlafzimmer: Separater Zugang vom Vorraum aus, garantiert Ruhe und Privatsphäre.
  • Separate Toilette: Für zusätzlichen Komfort und Privatsphäre.
  • Bequeme Parkmöglichkeiten und Extras: Option auf Anmietung eines Park- oder Carportplatzes und ein inkludiertes Kellerabteil für zusätzlichen Stauraum.




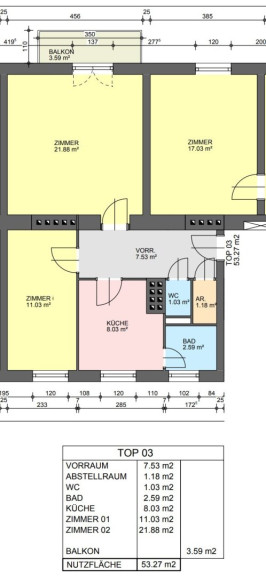
Willkommen in Ihrem neuen Zuhause in der Wiener Straße 76 in 8605 Kapfenberg, wo moderner Wohnkomfort auf eine unschlagbare Lage trifft. Diese traumhafte 56 m² große Mietwohnung im ersten Stock einer gepflegten Anlage verbindet elegantes Design mit Funktionalität. Schon beim Betreten des Vorraums, der mit modernen Decken-Spots und einem ansprechenden Bodenbelag begeistert, spüren Sie die hochwertige Atmosphäre, die sich durch die gesamte Wohnung zieht.



Die Glas-Schiebetür offenbart eine vollausgestattete, moderne Küche, die nicht nur durch ihre Ausstattung, sondern auch durch die optimale Beleuchtung und die gemütlichen Sitz- und Essmöglichkeiten überzeugt. Hier werden Kochen und gesellige Abende zum wahren Vergnügen. Das elegante Badezimmer mit Eckdusche, Waschbecken mit Spiegelschrank und einem praktischen Waschmaschinenanschluss fügt sich nahtlos in das moderne Gesamtbild ein.



Das großzügige, lichtdurchflutete Wohnzimmer mit direktem Zugang zum Balkon bietet einen herrlichen Blick und lädt zu entspannten Stunden in der Sonne ein. Das separate Schlafzimmer verspricht ruhige Nächte und die extra Toilette sorgt für zusätzlichen Komfort im Alltag. Beheizt wird die Wohnung effizient und umweltfreundlich mittels Fernwärme, was für ein angenehmes Raumklima sorgt.



Die Option, einen Parkplatz oder Carportplatz anzumieten, rundet dieses attraktive Angebot ab und ein Kellerabteil bietet zusätzlichen Stauraum. Entdecken Sie das perfekte Zuhause für alle, die Wert auf modernen Wohnkomfort, durchdachte Raumgestaltung und eine hervorragende Lage legen. Willkommen in Kapfenberg – Willkommen zu Hause!





Ich freue mich auf Ihre Anfrage und darauf, Ihnen diese charmante Wohnung bei einem persönlichen Besichtigungstermin präsentieren zu dürfen!


Der Immobilienmakler erklärt, dass er – entgegen dem in der Immobilienwirtschaft üblichen Geschäftsgebrauch des Doppelmaklers – einseitig nur für den Vermieter tätig ist.

Infrastruktur / Entfernungen

Gesundheit
Arzt <250m
Apotheke <425m
Krankenhaus <3.625m

Kinder & Schulen
Schule <475m
Kindergarten <475m
Universität <975m

Nahversorgung
Supermarkt <125m
Bäckerei <250m
Einkaufszentrum <800m

Sonstige
Bank <400m
Geldautomat <400m
Post <700m
Polizei <425m

Verkehr
Bus <75m
Autobahnanschluss <1.675m
Bahnhof <700m
Flughafen <2.650m

Angaben Entfernung Luftlinie / Quelle: OpenStreetMap

Eckdaten Objektnr. 38329

Art: Wohnung
Land: Österreich
Zustand: Gepflegt
Alter: Neubau
Gesamtmiete: 658,16
Kaltmiete (netto): 475,87 €
Kaltmiete: 598,32 €
Betriebskosten: 122,45 €
MwSt Gesamt: 59,84 €
Wohnfläche: 55,66 m²
Zimmer: 2
Bäder: 1
WC: 1
Balkone: 1
Heizwärmebedarf:  D  114,00 kWh/m²a
fGEE:  D  1,90
Nebenkostenübersicht Miete Immobilie merken Exposé

Ausstattung

Fliesen, Laminatboden, Fernwärme, Einbauküche, Bad mit Fenster, Dusche, Kabel/Satelliten-TV


Immobilie anfragen


Ihre persönliche Beratung

Projekt Wohnen Gruppe GmbH

Sabina Maitz

PW Projekt Wohnen Immobilienvermittlung GmbH

T 0316850850

H +43 664 427 00 57