Raum für Erfolg

Einzelhandel , 9500 Villach-Völkendorf


VILLACH - VÖLKENDORF | Arbeiten im beliebten Stadtteil Völkendorf - beste Infrastruktur und optimale Erreichbarkeit sind garantiert. Die nächste Bushaltestelle ist nur wenige Gehminuten entfernt. Auch Bäckerei, Bank und Lebensmittelgeschäfte sind fußläufig erreichbar. Das Villacher Einkaufzentrum "Atrio" erreichen Sie innerhalb weniger Fahrminuten. Auch Bildungs- und Sporteinrichtungen wie die Volksschule, die neue Mittel Schule, ein Tanzstudio, die Villacher Eishalle und viele weitere sind quasi um die Ecke.

Beschreibung der Immobilie

Raum für Erfolg

Die hervorragende Lage in Stadtnähe macht diese Immobilie besonders attraktiv für Unternehmer und Dienstleister. Mit der Bushaltestelle nur wenige Schritte entfernt sind Sie gut angebunden. Geschäfte und Lokale sind fußläufig zu erreichen. Der Nahversorger ums Eck bietet auch Postpartner-Service an. In der Nachbarschaft finden sich renommierte Branchen.



Dieses Objekt bietet vielseitige Nutzungsmöglichkeiten. Ihr neues Geschäftslokal befindet sich in einem gepflegten Haus und profitiert durch die Positionierung an einer Kreuzung von guter Sichtbarkeit. Glasflächen bieten eine angenehme Arbeitsatmosphäre für verschiedene Branchen. Parkmöglichkeit ist vorhanden.



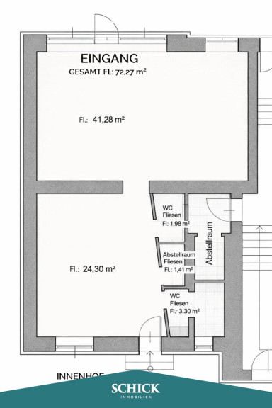
Die Gesamtfläche beträgt ca. 72m² und ist optimal aufgeteilt:



  • Zwei großzügige Arbeitsräume
  • Sanitärräume
  • Ein Abstellraum
  • Ein Kellerabteil


Das Geschäftslokal ist ab Februar 2026 bezugsbereit.



Ihre Vorteile auf einen Blick



++ Geschäftslokal mit 72m² in Stadtnähe



++ Im beliebten, stetig wachsenden Ortsteil Villach-Völkendorf



++ Wichtige Verkehrsstraßen leicht zu erreichen



++ Bushaltestelle nur wenige Schritte entfernt



++ Geschäfte und Lokal fußläufig erreichbar,



++ Nahversorger ums Eck mit Postpartner-Service



++ Renommierte Branchen in der Nachbarschaft



++ Vielseitige Nutzungsmöglichkeiten 



++ Gepflegtes Haus, durch Positionierung an Kreuzung gute Sichtbarkeit



++ Glasflächen bieten angenehme Arbeitsatmosphäre



++ Zwei Arbeitsräume, Sanitärräume



++ Gartenanteil mit überdachter Terrasse, Kellerabteil



++ Parkmöglichkeit vorhanden







Wir bitten um Ihr Verständnis, dass nur schriftliche Anfragen mit vollständigen Kontaktdaten (Name, Telefonnummer, E-Mail-Adresse) beantwortet werden können.



Die Bilder können KI-gestützt bearbeitet sein oder digitale Visualisierungen enthalten.


Hinweis gemäß Energieausweisvorlagegesetz: Ein Energieausweis wurde vom Eigentümer bzw. Verkäufer, nach unserer Aufklärung über die generell geltende Vorlagepflicht, sowie Aufforderung zu seiner Erstellung noch nicht vorgelegt. Daher gilt zumindest eine dem Alter und der Art des Gebäudes entsprechende Gesamtenergieeffizienz als vereinbart. Wir übernehmen keinerlei Gewähr oder Haftung für die tatsächliche Energieeffizienz der angebotenen Immobilie.

Infrastruktur / Entfernungen

Gesundheit
Arzt <1.000m
Apotheke <1.000m
Klinik <1.500m
Krankenhaus <1.500m

Kinder & Schulen
Schule <500m
Kindergarten <500m
Universität <4.500m
Höhere Schule <4.500m

Nahversorgung
Supermarkt <500m
Bäckerei <500m
Einkaufszentrum <1.500m

Sonstige
Geldautomat <500m
Bank <500m
Post <500m
Polizei <1.500m

Verkehr
Bus <500m
Autobahnanschluss <3.000m
Bahnhof <1.000m

Angaben Entfernung Luftlinie / Quelle: OpenStreetMap

Eckdaten Objektnr. 25111407708

Art: Einzelhandel
Land: Österreich
Kaufpreis: 194.400,00
Betriebskosten: 250,00 €
Wohnfläche: 72,00 m²
Nutzfläche: 72,00 m²
Zimmer: 2
Terrassen: 1
Garten: 33,47 m²
Keller: 6,38 m²
Nebenkostenübersicht Kauf Immobilie merken Exposé

Ausstattung

Fliesen, Zentralheizung, Parkplatz


Immobilie anfragen


Ihre persönliche Beratung

SCHICK Immobilien | Gernot Schick

Markus SCHLACHER

SCHICK Immobilien | Gernot Schick

T +43 4242 53 93 1

H +43 676 64 14 123