NATUR. PLATZ. LEBENSQUALITÄT! 5-Zimmer Doppelhaushälfte mit Eigengarten • Doppelcarport • Keller • ZUHAUSE IM GRÜNEN

Haus - Doppelhaushälfte, 3032 Eichgraben


Eingebettet in die Natur des Wienerwalds in einer ruhigen, kleinen Wohnsiedlung idyllisch gelegen. Hier verbinden sich Privatsphäre, Ruhe und Lebensqualität zu einem Wohngefühl, das im Alltag spürbar ist. Kindergarten, Volksschule sowie Einkaufsmöglichkeiten für den täglichen Bedarf befinden sich im Ort und sind in wenigen Minuten zu Fuß gut erreichbar. Supermärkte, Bäckerei, Apotheke und ärztliche Versorgung sind ebenfalls bestens angebunden. Der Bahnhof Eichgraben ist nur ca. 10 Gehminuten entfernt und bietet eine direkte Anbindung nach Wien (ca. 25 Minuten). Die Auffahrt zur A21 ist in ca. 5 Fahrminuten, die A1 Westautobahn ist in knapp 10 Fahrminuten erreichbar. Eichgraben gilt als beliebter Wohnort für all jene, die dem städtischen Trubel entfliehen möchten, ohne auf eine gute Infrastruktur verzichten zu müssen. Umgeben von Wäldern, Rad- und Wanderwegen sowie Grünflächen eröffnet sich hier eine hohe Lebensqualität mit zahlreichen Freizeit- und Erholungsmöglichkeiten direkt vor der Haustüre. Ein Ort zum Bleiben!

Beschreibung der Immobilie

NATUR. PLATZ. LEBENSQUALITÄT! 5-Zimmer Doppelhaushälfte mit Eigengarten • Doppelcarport • Keller • ZUHAUSE IM GRÜNEN

EIN STÜCK WIENERWALD ZUM WOHNEN!



3 Etagen voller Leben I 5 Zimmer I Voll unterkellert I Doppelcarport



RAUS AUS DER STADT. REIN INS ZUHAUSE.



Inmitten der grünen Hügel des Wienerwaldes, in Eichgraben, wartet diese charmante Doppelhaushälfte auf neue Bewohner, die Natur, Ruhe und Wohnqualität verbinden möchten.



Auf drei Ebenen verteilen sich rund 113 m² Wohnfläche mit insgesamt fünf Zimmern - ideal für Familien, Homeoffice oder individuelle Wohnkonzepte.



Das Herzstück bildet das Wohnzimmer im Erdgeschoss mit direktem Ausgang auf die Terrasse und in den ca. 315 m² großen Eigengarten - ein Ort für Frühstück in der Sonne, spielende Kinder und entspannte Grillabende. 



Die angrenzende Küche, die bei Bedarf auch geöffnet und in eine große Wohnküche umgebaut werden könnte, sowie ein Vorzimmer mit Garderobenbereich und eine separate Toilette mit Handwaschbecken ergänzen diese Ebene zu einem harmonischen Wohnbereich



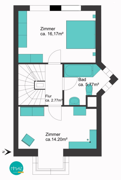
Im ersten Obergeschoss befinden sich zwei Schlafzimmer, eines davon mit stilvollem Erker, die als ruhige Rückzugsorte dienen, sowie ein Badezimmer mit Wanne und WC. 



Das zweite Obergeschoss eröffnet mit einem großzügigen, offen gestalteten Raum vielfältige Nutzungsmöglichkeiten – ob als Homeoffice, Atelier, Spielzimmer oder zusätzlicher Wohnbereich. Ein weiteres Schlafzimmer sowie der Zugang zum Spitzdachboden bieten zusätzlichen Raum und Stauraum für persönliche Bedürfnisse.



Ergänzt wird das Raumangebot durch einen ca. 37 m² großen Keller, der sich ideal als Lagerfläche, Abstellraum oder für Haustechnik eignet.



Die Fenster und die Terrassentüre verfügen über eine 2-fach Verglasung und Innenjalousien. Alle Wohnräume sind mit Parkettböden ausgestattet, während die Nassräume, der Keller, Vorzimmer und die Küche verfliest sind und so eine eine praktische und pflegeleichte Nutzung ermöglichen.



Beheizt wird die Liegenschaft mittels Gasetagenheizung, die Therme befindet sich im Keller. Eine Photovoltaikanlage ist am Dach des Carports vorhanden.



FAZIT: Diese Doppelhaushälfte verbindet großzügiges, leistbares Wohnen mit der besonderen Lebensqualität des Wienerwaldes - ein Zuhause für alle, die den Wunsch nach Natur, Raum und Ruhe mit guter Erreichbarkeit verbinden möchten. Ein Haus, das mit seinen Bewohnern mitwächst und Platz für viele Lebensphasen bietet.



Der ausgeschriebene Kaufpreis von € 420.000,- versteht sich als Richtpreis und kann je nach Nachfrage nach oben oder unten variieren, vorbehaltlich der Annahme durch den Verkäufer.



Habe ich Ihr Interesse geweckt? Ich freue mich auf Ihre Anfragen!



Gemäß § 5 Abs. 3 MaklerG wird auf eine mögliche Doppelmaklertätigkeit hingewiesen. Die Angaben beruhen auf Informationen der Eigentümer und/oder Dritter und sind ohne Gewähr. Irrtümer und Änderungen vorbehalten!



Aufgrund der Nachweispflicht gegenüber dem Abgeber und um die rasche Übermittlung weiterer Informationen und Unterlagen zu gewährleisten, übermitteln Sie bitte Ihre vollständigen Kontaktdaten:



  • Vor- und Nachname
  • Aktuelle Wohnadresse
  • Telefonnummer
  • E-Mail Adresse


Bei näherem Kaufinteresse stelle ich zusätzlich gerne folgende Dokumente zur Verfügung:



  • Grundbuchauszug
  • Wohnungseigentumsvertrag
  • Nutzwertgutachten
  • Originalpläne
  • Energieausweis
  • Monatliche Vorschreibung
  • Jahresabrechnung 2024
  • Jahresvorausschau 2026


SIE MÖCHTEN DIESE IMMOBILIE, DIE EIN DRINGENDES WOHNBEDÜRFNIS DECKT UND IHR ZUKÜNFTIGER HAUPTWOHNSITZ SEIN WIRD, KAUFEN? BEACHTEN SIE HIERZU DIE TEMPORÄRE GEBÜHRENBEFREIUNG! GERNE STEHE ICH BERATEND ZUR SEITE!



DATEN IM ÜBERBLICK:



  • Wohnnutzfläche ca. 113 m²
  • Eigengarten ca. 315 m²
  • Terrasse ca. 16,50 m²
  • 5 Zimmer auf 3 Ebenen
  • Keller ca. 37 m²
  • Gasetagenheizung
  • Photovoltaik
  • 2 KFZ-Stellplätze (Doppelcarport) ca. 30 m²
  • Beziehbar nach Vereinbarung

Der Vermittler ist als Doppelmakler tätig.

Infrastruktur / Entfernungen

Gesundheit
Arzt <500m
Apotheke <1.500m

Kinder & Schulen
Schule <1.500m
Kindergarten <1.500m

Nahversorgung
Supermarkt <2.000m
Bäckerei <1.000m

Sonstige
Bank <1.000m
Geldautomat <1.000m
Post <1.000m
Polizei <4.500m

Verkehr
Bus <500m
Autobahnanschluss <1.500m
Bahnhof <1.000m

Angaben Entfernung Luftlinie / Quelle: OpenStreetMap

Eckdaten Objektnr. 5630/453

Art: Haus - Doppelhaushälfte
Land: Österreich
Baujahr: 2006
Zustand: Gepflegt
Alter: Neubau
Kaufpreis: 420.000,00
Betriebskosten: 112,32 €
MwSt Gesamt: 14,30 €
Wohnfläche: 112,90 m²
Zimmer: 5
Bäder: 1
WC: 2
Terrassen: 1
Stellplätze: 2
Garten: 315,26 m²
Keller: 37,27 m²
Heizwärmebedarf:  C  66,90 kWh/m²a
fGEE:  C  1,23
Nebenkostenübersicht Kauf Immobilie merken Exposé

Ausstattung

Parkett, Fliesen, Gas, Etagenheizung, Einbauküche, Westbalkon, Bad mit Fenster, Badewanne, Kabel/Satelliten-TV, Carport


Immobilie anfragen


Ihre persönliche Beratung

MIMAZ Immobilien e.U.

Mag. Michaela Mazakarini

Mimaz Immobilien

T +43 676 967 39 74

H +43 676 967 39 74