Luxuriöses Highrise-Apartment im 40. Stock – rund 87 m² Nutzfläche – Panoramablick über Donau & Kahlenberg | DANUBEFLATS

Wohnung , 1220 Wien


Beschreibung der Immobilie

Luxuriöses Highrise-Apartment im 40. Stock – rund 87 m² Nutzfläche – Panoramablick über Donau & Kahlenberg | DANUBEFLATS

Diese außergewöhnliche, voll möblierte Wohnung im 40. Stock der DANUBEFLATS bietet ein Wohnerlebnis auf internationalem Niveau. Auf einer Wohnfläche von 66,95 m² mit einer 11,51 m² großen Loggia sowie einem 8,35 m² großen Balkon eröffnet sich ein spektakulärer Panoramablick auf die Donau und den Kahlenberg.



Großzügige, raumhohe Fensterflächen sorgen für lichtdurchflutete Räume und unterstreichen das moderne Wohnkonzept. Die hochwertige, stilvolle Möblierung ermöglicht einen sofortigen Einzug ohne zusätzlichen Aufwand. Das gesamte Gebäude und auch die Wohnung sind modernster Smart-Home-Technologie ausgestattet: Beleuchtung, Beschattung, Heizung und weitere Funktionen lassen sich komfortabel und zentral über ein Tablet steuern und individuell an persönliche Bedürfnisse anpassen.



Ergänzt wird dieses exklusive Wohnangebot durch erstklassige Services wie Doorman, Wellness- & Fitnessbereiche, Business- und Event-Lounges sowie gastronomische Angebote direkt im Haus.



Ein Zuhause für Menschen, die urbanen Luxus, Design, modernste Technik und eine außergewöhnliche Aussicht in perfekter Lage schätzen.





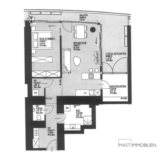
Die Wohnung befindet sich im 40. Liftstock  und verfügt über eine Wohnfläche von 66,95 m² + einen 8,85 m² großen Balkon + eine 11,51 m² große Loggia mit Wintergarten.



Raumaufteilung:



  • Wohnküche ca. 25,72 m²
  • Schlafzimmer ca. 14,41 m²
  • Vorraum ca. 10,55 m²
  • Badezimmer ca. 5,99 m²
  • Separate Toilette ca. 1,72 m²
  • Abstellraum ca. 2,03 m²
  • Balkon ca. 8,35 m²
  • Loggia Skygarten ca. 11,51 m²
  • Wintergarten 6,52 m²


Optional ist es möglich einen Garagenstellplatz zu erwerben. 





1220 Wien – DANUBEFLATS, direkt an der Neuen Donau
In einer der begehrtesten Lagen Wiens vereinen die DANUBEFLATS urbanes Wohnen mit exklusivem Lifestyle. Die unmittelbare Nähe zur Neuen Donau, zur UNO-City sowie die direkte Anbindung an die U-Bahn bieten perfekte Voraussetzungen für ein internationales, modernes Lebensgefühl. Zahlreiche Freizeit- und Erholungsmöglichkeiten, Gastronomie und Nahversorgung befinden sich direkt im Gebäude oder in fußläufiger Umgebung, während die Wiener Innenstadt und der Flughafen rasch erreichbar sind.


Wir weisen darauf hin, dass zwischen dem Vermittler und dem zu vermittelnden Dritten ein familiäres oder wirtschaftliches Naheverhältnis besteht.


Der Vermittler ist als Doppelmakler tätig.

Infrastruktur / Entfernungen

Gesundheit
Arzt <500m
Apotheke <500m
Klinik <1.500m
Krankenhaus <2.500m

Kinder & Schulen
Schule <500m
Kindergarten <500m
Universität <2.000m
Höhere Schule <3.000m

Nahversorgung
Supermarkt <500m
Bäckerei <500m
Einkaufszentrum <2.000m

Sonstige
Geldautomat <500m
Bank <500m
Post <500m
Polizei <500m

Verkehr
Bus <500m
U-Bahn <500m
Straßenbahn <1.500m
Bahnhof <500m
Autobahnanschluss <500m

Angaben Entfernung Luftlinie / Quelle: OpenStreetMap

Eckdaten Objektnr. 5387/8161

Art: Wohnung
Land: Österreich
Baujahr: 2024
Möbliert: Voll
Alter: Neubau
Kaufpreis: 1.195.000,00
Betriebskosten: 357,54 €
MwSt Gesamt: 35,75 €
Wohnfläche: 66,95 m²
Zimmer: 2
Bäder: 1
WC: 1
Balkone: 1
Nebenkostenübersicht Kauf Immobilie merken Exposé

Ausstattung

Parkett, Fliesen, Fußbodenheizung, Wohnküche / offene Küche, Personenaufzug, Dusche, Tiefgarage, Swimmingpool


Immobilie anfragen


Ihre persönliche Beratung

MAST Immo GmbH

Stefanie Vidovic

MA.ST Immobilien & Design e.U.

T +43 664 967 65 48