Sanierungsbedürftiges Haus mit ausbaufähigem Rohdachboden in Bad Vöslau!

Haus - Reiheneckhaus, 2540 Bad Vöslau


Dieses charmante Apartmenthaus bei 2540 Bad Vöslau besticht durch seine ideale Lage im Südosten. In unmittelbarer Nähe finden Sie alles, was das Herz begehrt: Ärzte, Schulen, Kindergärten sowie Bäckereien und Banken sind bequem erreichbar. Ein Geldautomat und die Post sind nur einen kurzen Fußweg entfernt. Die gute Anbindung an den öffentlichen Nahverkehr mit Buslinien sorgt für eine optimale Erreichbarkeit der Umgebung. Hier wohnen oder arbeiten Sie zentral und dennoch ruhig!

Beschreibung der Immobilie

Sanierungsbedürftiges Haus mit ausbaufähigem Rohdachboden in Bad Vöslau!

Charmantes Eckhaus mit großem Ausbaupotenzial – Rohdachboden & vielseitigem Untergeschoss



Dieses Haus aus dem Jahr 1920 befindet sich auf einem Eckgrundstück und bietet viel Raum für individuelle Gestaltungsideen. Mit Erdgeschoss, Untergeschoss sowie einem ca. 77 m² großen, ausbaufähigen Rohdachboden eröffnet die Liegenschaft zahlreiche Möglichkeiten für Eigennutzer oder Investoren.



Wohnnutzfläche: 153,73 m²



Der Garten (40m²) überzeugt durch seine praktische Gestaltung und verfügt über drei separate Zugänge: direkt vom Haus, von der Straße sowie von den Parkplätzen – ideal für flexible Nutzung.



Erdgeschoss (ca. 77 m²):




  • Vorraum



  • Wohnküche (ca. 20 m²)



  • Schlafzimmer (ca. 24 m²)



  • Weiteres Zimmer (ca. 9 m²)



  • Badezimmer mit Badewanne



  • Separates WC



  • Abstellraum mit Zugang zum Untergeschoss und Dachboden




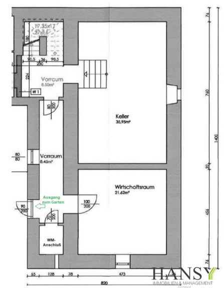
Untergeschoss (ca. 76 m²):
Der Gang sowie ein Raum mit ca. 21 m² sind beheizt und belichtet. Das Untergeschoss eignet sich besonders als Fitnessraum, Hobbyraum, Werkstatt oder Lagerfläche.



Dachboden:




  • Ca. 77 m² großer Rohdachboden mit attraktivem Ausbaupotenzial




Zustand:




  • Das Haus ist sanierungsbedürftig, bietet dafür jedoch eine solide Basis und viel Entwicklungsspielraum.




Heizung:




  • Gasetagenheizung




Diese Liegenschaft vereint Charakter, großzügige Flächen und Ausbaureserven in guter Lage – ideal für alle, die ein Haus nach eigenen Vorstellungen gestalten möchten.



Zögern Sie nicht länger und rufen Sie mich gleich an. Ich freue mich auf Ihren Anruf!




Infrastruktur / Entfernungen

Gesundheit
Arzt <500m
Apotheke <500m
Klinik <5.000m
Krankenhaus <5.500m

Kinder & Schulen
Kindergarten <1.000m
Schule <500m

Nahversorgung
Supermarkt <1.000m
Bäckerei <500m
Einkaufszentrum <4.000m

Sonstige
Bank <1.000m
Geldautomat <1.000m
Post <1.000m
Polizei <500m

Verkehr
Bus <500m
Bahnhof <2.000m
Autobahnanschluss <2.000m
Straßenbahn <5.500m
Flughafen <4.000m

Angaben Entfernung Luftlinie / Quelle: OpenStreetMap

Eckdaten Objektnr. 2481

Art: Haus - Reiheneckhaus
Land: Österreich
Baujahr: 1920
Zustand: Sanierungsbeduerftig
Alter: Altbau
Kaufpreis: 240.000,00
Kaufpreis / m²: 1.666,67 €
Wohnfläche: 87,71 m²
Nutzfläche: 144,00 m²
Grundstücksfl.: 270,00 m²
Zimmer: 3
Bäder: 1
WC: 2
Stellplätze: 2
Garten: 40,00 m²
Keller: 57,57 m²
Heizwärmebedarf:  G  327,00 kWh/m²a
fGEE:  F  3,32
Nebenkostenübersicht Kauf Immobilie merken Exposé

Ausstattung

Fliesen, Parkettboden, Gas, Etagenheizung, Einbauküche, Badewanne, Dusche, Kabel/Satelliten-TV, Parkplatz


Immobilie anfragen


Ihre persönliche Beratung

Alexander Kalinowski

Hansy GmbH

T +4367761361090

H +4367761361090