„Urbanes Wohnen trifft Natur – Gartenwohnung in Bestlage von Wien-Hietzing“ | ZELLMANN IMMOBILIEN

Wohnung , 1130 Wien , Friedenszeile 6


Diese charmante Gartenwohnung in der Friedenszeile 1130 Wien vereint urbanes Leben mit naturnahem Wohnen. Die südliche Ausrichtung sorgt für lichtdurchflutete Räume und eine einladende Atmosphäre. In unmittelbarer Nähe erwarten Sie der idyllische Lainzer Tiergarten und die historische Hermesvilla – perfekte Orte für Erholung und Freizeit. Zudem finden Sie alle wichtigen Einrichtungen wie Arzt, Apotheke, Schulen und Supermärkte bequem zu Fuß. Ideal für Familien und Naturliebhaber!

Beschreibung der Immobilie

„Urbanes Wohnen trifft Natur – Gartenwohnung in Bestlage von Wien-Hietzing“ | ZELLMANN IMMOBILIEN

Exklusive Garten-Maisonette in Hietzing – Wohnen mit Stil & Ruhe




Aufmerksamkeit



Diese helle 4-Zimmer-Gartenwohnung verbindet urbanes Wohnen mit privatem Rückzugsort. Auf ca. 131 m² Wohnfläche plus 150 m² Eigengarten entsteht ein Zuhause, das gleichermaßen Komfort, Ruhe und Lebensqualität bietet – eingebettet in die grüne Umgebung von Hietzing, nahe dem Lainzer Tiergarten und der Hermesvilla.




Relevanz



Die Lage bietet eine ideale Kombination aus städtischer Infrastruktur und naturnaher Erholung:




  • Infrastruktur: Ärzte, Apotheken, Supermärkte und Schulen sind fußläufig erreichbar.



  • Anbindung: Straßenbahnlinien 60/62, Bus 60B und S-Bahn ermöglichen eine schnelle Verbindung Richtung Kennedybrücke und U-Bahn.



  • Freizeit: Hörndlwald, Lainzer Tiergarten, Klinik Hietzing sowie zahlreiche Sport- und Erholungsmöglichkeiten liegen in direkter Nähe.





Klarheit



Eckdaten im Überblick:




  • Wohnfläche: ca. 131 m²



  • Eigengarten: ca. 150 m²



  • Terrasse: ca. 12 m²



  • Garage: ca. 13,5 m² (integriert)



  • Zimmer: 4



  • Badezimmer: 2



  • Baujahr: 2003 | Massivbauweise



  • Energieausweis: HWB 65,5 kWh/m²a | fGEE: 1,14



  • Betriebskosten: € 449,75/Monat inkl. Rücklage




Raumaufteilung:




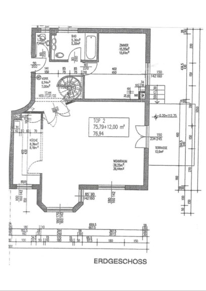
  • Erdgeschoss (ca. 76,9 m²): großzügige Wohnküche mit Terrasse und Gartenzugang, Bad mit Wanne, WC, Schlafzimmer.



  • Untergeschoss (ca. 56,7 m²): zwei weitere Schlafzimmer, Badezimmer mit Dusche und WC, Fitnessraum, begehbare Garderobe, direkter Zugang zur Garage.



  • Außenflächen: 150 m² Eigengarten, 12 m² Terrasse.





Argumente




  • Großzügige Wohnküche mit über 38 m² als zentraler Lebensmittelpunkt.



  • Maisonette-Charakter: Erd- und Untergeschoss verbunden, ideal für Familien.



  • Direkter Gartenzugang – sonnige Süd-/Ostausrichtung.



  • Zwei Badezimmer, funktional und modern.



  • Fußbodenheizung, Parkett & Fliesen – zeitlose Ausstattung.



  • Eigene Garage im Haus plus weitere Stellplätze auf der Liegenschaft.





Differenzierung



Im Unterschied zu vergleichbaren Angeboten in Hietzing bietet diese Wohnung:




  • Privatsphäre und Exklusivität: nur 4 Wohneinheiten im Haus.



  • Eigengarten in Ruhelage, ideal für Kinder, Haustiere oder Hobbygärtner.



  • Flexible Nutzung: Untergeschoss mit Schlafzimmern oder Arbeitsbereichen, auch als Rückzugsort für Teenager oder Gäste nutzbar.



  • Gut verwaltete Liegenschaft: Protokolle der Eigentümerversammlung zeigen eine aktive Hausverwaltung und regelmäßige Instandhaltung (z. B. Beleuchtung, Fassade, Gartenpflege).





Emotion



Stellen Sie sich vor: Ein Sommerabend auf der eigenen Terrasse, während die Kinder im Garten spielen. Oder ein ruhiger Morgen mit Blick ins Grüne, mitten in Wien. Diese Wohnung schafft nicht nur Wohnraum, sondern einen Ort der Geborgenheit, Inspiration und Lebensfreude.




Nutzen




  • Kaufpreis gesamt: € 895.000,–



  • Betriebskosten: € 449,75/Monat inkl. Rücklage



  • Provision: 3 % des Kaufpreises zzgl. 20 % USt.





Rechtliche Hinweise



Bitte kontrollieren Sie auch Ihren SPAM- bzw. WERBE-Ordner, da E-Mails manchmal dort landen können. Wir antworten in der Regel innerhalb weniger Stunden – auch am Wochenende. Teilen Sie uns gerne Ihre Telefonnummer mit, damit wir Sie zusätzlich per SMS über die Versendung des Exposés informieren können.



Dieses Objekt wird unverbindlich und freibleibend angeboten. Alle Angaben basieren auf Informationen des Eigentümers sowie dem vorliegenden Gutachten und wurden mit größter Sorgfalt zusammengestellt. Für die Richtigkeit, Vollständigkeit und Aktualität dieser Angaben wird keine Gewähr übernommen. Änderungen, Irrtümer und Zwischenverkauf bleiben ausdrücklich vorbehalten. Maßangaben sind Circa-Angaben. Das Exposé stellt kein verbindliches Angebot dar.



Bei erfolgreichem Abschlussfall fällt eine Käuferprovision in Höhe von 3 % des Kaufpreises zzgl. 20 % USt. an – gemäß Immobilienmaklerverordnung BGBI. 262 und 297/1996.




 

Noch nichts gefunden? Wir informieren Sie über geeignete Immobilienangebote noch vor allen anderen.
Legen Sie jetzt Ihren individuellen Suchagenten unter folgendem Link an. Wir schicken Ihnen passende Immobilien exklusiv vorab zu. 



-> Suchagent anlegen


Wir weisen darauf hin, dass zwischen dem Vermittler und dem zu vermittelnden Dritten ein familiäres oder wirtschaftliches Naheverhältnis besteht.


Der Vermittler ist als Doppelmakler tätig.

ZELLMANN IMMOBILIEN GmbH
Vertrauen. Service. Qualität.

Infrastruktur / Entfernungen

Gesundheit
Arzt <475m
Apotheke <450m
Klinik <500m
Krankenhaus <850m

Kinder & Schulen
Schule <450m
Kindergarten <750m
Universität <1.900m
Höhere Schule <5.150m

Nahversorgung
Supermarkt <400m
Bäckerei <725m
Einkaufszentrum <3.450m

Sonstige
Geldautomat <400m
Bank <400m
Post <1.425m
Polizei <1.625m

Verkehr
Bus <100m
Straßenbahn <900m
U-Bahn <2.850m
Bahnhof <1.425m
Autobahnanschluss <4.075m

Angaben Entfernung Luftlinie / Quelle: OpenStreetMap

Eckdaten Objektnr. 25258

Art: Wohnung
Land: Österreich
Baujahr: 2003
Zustand: Gepflegt
Alter: Neubau
Kaufpreis: 895.000,00
Betriebskosten: 257,19 €
MwSt Gesamt: 40,89 €
Wohnfläche: 131,00 m²
Zimmer: 4
Bäder: 2
WC: 2
Terrassen: 1
Garten: 150,00 m²
Keller: 4,00 m²
Heizwärmebedarf:  C  65,50 kWh/m²a
fGEE:  C  1,14
Nebenkostenübersicht Kauf Immobilie merken Exposé

Ausstattung

Parkett, Fliesen, Laminatboden, Gas, Etagenheizung, Fußbodenheizung, Wohnküche / offene Küche, Bad mit Fenster, Badewanne, Dusche, Kabel/Satelliten-TV, Garage


Immobilie anfragen


Ihre persönliche Beratung

ZELLMANN IMMOBILIEN GmbH | Vertrauen. Service. Qualität.

Georg Papacek

ZELLMANN IMMOBILIEN

T +43 664 410 71 17

H +43 664 410 71 17