Exklusiv: Stilvolle Zinsvilla in Währing mit drei autarken Wohneinheiten

Haus - Villa, 1180 Wien


Die Lage dieser Villa verbindet urbanes Lebensgefühl mit gediegener Ruhe. In unmittelbarer Umgebung finden sich renommierte Schulen, gepflegte Parkanlagen wie der Türkenschanzpark oder der Pötzleinsdorfer Schlosspark sowie zahlreiche charmante Cafés und Nahversorger. Der beliebte Schafberg ist ebenfalls schnell erreichbar. Die Anbindung an den öffentlichen Verkehr ist exzellent – S45, Linien 9, 40, 41, 10A, 42A sind in wenigen Gehminuten erreichbar. Gleichzeitig bleibt die Wohnlage angenehm zurückgezogen und exklusiv.

Beschreibung der Immobilie

Exklusiv: Stilvolle Zinsvilla in Währing mit drei autarken Wohneinheiten

Exklusiv: Stilvolle Zinsvilla in Währing mit drei autarken Wohneinheiten



In einer der exklusivsten Lagen Wiens präsentiert sich diese prachtvolle Gründerzeitvilla als außergewöhnliches Gesamtobjekt mit ca. 505 m² Wohnfläche. Auf vier Ebenen, aufgeteilt in drei autarke Wohneinheiten, eröffnet sich ein flexibles Raumkonzept, das sich ideal für FamilienMehrgenerationenwohnen, eine Kombination aus Wohnen und Praxis/Büro oder als Investmentobjekt eignet.

Diese Immobilie eröffnet vielfältige Nutzungsmöglichkeiten – in Alleineigentum und nur als Gesamteinheit zu erwerben.




Highlights und Luxuriöse Ausstattung auf einen Blick




  • Ca. 505 m² Wohnfläche inkl. Wellness- & Nebenräume im Souterrain



  • Drei autarke Wohneinheiten (Top 1–3)



  • 13 großzügige, ruhige Zimmer + Nebenräume



  • Außenliegender Lift – inkl. direktem Zugang ins DG



  • Edle Natursteinböden in den repräsentativen Bereichen



  • Elegantes Fischgrätparkett aus Echtholz in den Wohnräumen



  • Fußbodenheizung in allen Wohneinheiten



  • Thermen je Top separat



  • Isolierverglaste Holz-Alu-Fenster



  • Großzügige Raumhöhen mit klassischen Stilelementen



  • Designbäder mit Walk-in-Duschenfreistehenden Badewannen und hochwertigen Armaturen, hochwertiges Naturstein-Waschbecken im SPA-Bereich



  • Maßgefertigte Einbauschränke und elegante Innenausstattung - Stilvolle Möblierung auf Wunsch inklusive



  • Modernste Haustechnik, u.a. mit Video-Gegensprechanlage und teilweiser Klimatisierung



  • Großzügige Terrassenflächen



  • Dachterrasse mit Wien- und Kahlenbergblick



  • Trennbarkeit einzelner Tops für Wohnen und Arbeiten möglich



  • Schlafzimmer mit luxuriösen Bädern en suite



  • Uneinsehbarer, pflegeleichter Garten mit ca 101 m²



  • Historische Details wie Gewölbedecke im Souterrain, Kaminumrahmungen aus echtem Marmor, stuckverzierte Fassaden



  • Repräsentatives Entree, prachtvolles Stiegenhaus, Lift modern verglast mit Blick ins Grüne



  • Ideale Infrastruktur und Grünruhelage



  • Möglichkeit zur Parifizierung und Abverkauf einzelner Tops (nachträglich)



  • Parkmöglichkeiten direkt vor dem Haus





 Aufteilung im Detail





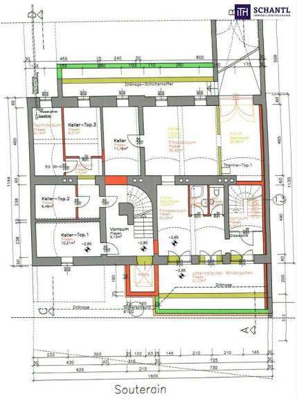
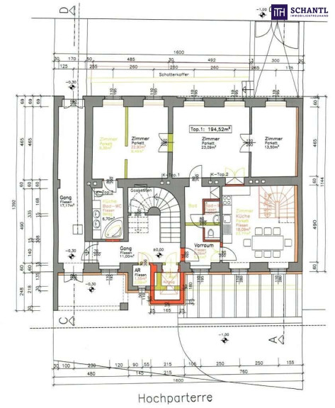
Top 1 – Erdgeschoss + Souterrain (ca. 195 m²)



Diese großzügige Einheit mit bis zu 5 Zimmern verbindet klassische Wohnbereiche mit Erholungs- und Arbeitszonen:




  • 4 Zimmer + 2 Bäder im Hochparterre



  • zusätzlich: unterirdischer Wintergarten, Sauna, Badezimmer, Whirlpool und Fitnessräume, Waschraum, Keller, Garten mit separatem Zugang



  • edle weiße Feinsteinböden, historische Flügeltüren, Tageslichtbad






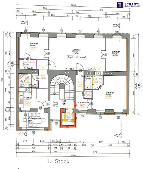
Top 2 – 1. Obergeschoss (ca. 133 m²)



Bel Etage mit Eleganz & Weite




  • 4 Schlafzimmer, 2 Bäder, Schrankraum, Küche, verglaster Wintergarten



  • bis zu 3,60 m Raumhöhe



  • Stuckdecken, Kristallluster, Echtholzparkett



  • Top 2 verfügt über zwei gegenüberliegende, separat zugängliche Eingangsbereiche, was eine elegante Grundlage für eine flexible Nutzung schafft – sei es als großzügige Wohneinheit mit Bürotrakt oder durch eine mögliche Teilung in zwei unabhängige Einheiten






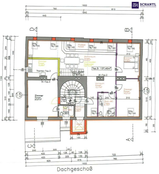
Top 3 – Dachgeschoss (ca. 137 m²)



Luxuriöser Rückzugsort mit modernem Flair:




  • direkter Liftzugang in die Wohnung



  • weitläufiger Wohn-Essbereich mit offenem Küchenkonzept



  • 4 Zimmer, 2 Bäder



  • Die private Dachterrasse eröffnet einen herrlichen Ausblick über Wien bis hin zum Kahlenberg



  • Eichenparkett, maßgefertigte Tischlerküche, Klimaanlage



  • Loftartiger Wohn-/Essbereich mit offener Küche



  • Großzügiges Atelier/Büro



  • Das Dachgeschoss verfügt bereits über einen direkten Liftzugang sowie einen Zugang über das Stiegenhaus; ein weiterer separater Zugang über das bestehende Stiegenhaus ließe sich bei Bedarf unkompliziert realisieren –– eine architektonisch elegante Möglichkeit, die Einheit bei Bedarf in zwei separate Wohnungen zu teilen






Eine Rarität am Wiener Immobilienmarkt – klassisch, edel, flexibel. Diese Villa überzeugt nicht nur durch ihr charmantes Erscheinungsbild, sondern auch durch ihren Zustand, ihre Nutzungsmöglichkeiten und ihre außergewöhnlich gute Lage. Ob als großzügiger Familiensitz, elegante Firmenadresse oder wertbeständige Anlage – hier eröffnen sich Perspektiven, die ebenso vielseitig wie einzigartig sind.



Kaufpreis: €3.250.000



Bezug: nach Vereinbarung 





www.schantl-ith.at





Bei konkretem Interesse senden wir Ihnen sehr gerne weiterführende Dokumente zu.



Unser Service für Sie: Wenn Sie sich für diese Immobilie entschieden haben, begleiten wir Sie gerne vom Kaufanbot weg inkl. Klärung von Sonderwünschen und der Vertragsunterzeichnung über die Wohnungsübergabe bis hin zu diversen Ummeldungen wie Strom und Gas. Entsprechende Formulare oder auch Meldezettel stellen wir Ihnen sehr gerne zur Verfügung.



Gerne unterstützen wir Sie auch bei der Finanzierung Ihres Traumobjekts und finden mit unseren langjährigen Partnern die besten Konditionen für Sie.



Vereinbaren Sie noch heute einen Termin, wir beraten Sie gerne!


Der Vermittler ist als Doppelmakler tätig.

Infrastruktur / Entfernungen

Gesundheit
Arzt <500m
Apotheke <500m
Klinik <1.000m
Krankenhaus <2.000m

Kinder & Schulen
Schule <500m
Kindergarten <500m
Universität <1.000m
Höhere Schule <500m

Nahversorgung
Supermarkt <500m
Bäckerei <500m
Einkaufszentrum <1.500m

Sonstige
Geldautomat <500m
Bank <500m
Post <1.000m
Polizei <1.000m

Verkehr
Bus <500m
U-Bahn <1.500m
Straßenbahn <500m
Bahnhof <500m
Autobahnanschluss <3.000m

Angaben Entfernung Luftlinie / Quelle: OpenStreetMap

Eckdaten Objektnr. 292758

Art: Haus - Villa
Land: Österreich
Alter: Altbau
Kaufpreis: 3.250.000,00
Kaufpreis / m²: 6.190,48 €
Wohnfläche: 505,00 m²
Nutzfläche: 525,00 m²
Grundstücksfl.: 378,00 m²
Zimmer: 13
Bäder: 7
Terrassen: 2
Garten: 101,00 m²
Heizwärmebedarf:  C  78,37 kWh/m²a
Nebenkostenübersicht Kauf Immobilie merken Exposé

Ausstattung

Fliesen, Parkett, Gas, Etagenheizung, Fußbodenheizung, Kamin, Einbauküche, Wohnküche / offene Küche, Südbalkon, Badewanne, Dusche, DV-Verkabelung, Kabel/Satelliten-TV, Sauna, Wasch/Trockenraum


Immobilie anfragen


Ihre persönliche Beratung

Schantl ITH Immobilientreuhand GmbH

Mag. Hanna Herzenstein

Schantl ITH Immobilientreuhand GmbH

T +43 6643070009

H +43 6705070265