Neue Ordination/Büro im Edelrohbau - ca. 123m² Nutzfläche im Wildgarten - Provisionsfrei für Käufer:innen
Büro / Praxis
,
1120
Wien
,
Lore-Kutschera-Weg 12
Beschreibung der Immobilie
Neue Ordination/Büro im Edelrohbau - ca. 123m² Nutzfläche im Wildgarten - Provisionsfrei für Käufer:innen
m Wildgarten, 12.Bezirk, sind die letzten Eigentumswohnungen bereit für ihre neuen Bewohner:innen.
Der Wildgarten ist ein vielseitiges Wohnquartier, das sowohl urbane und ländliche Qualitäten verbindet und für ein gemeinschaftliches Miteinander steht.
Das autofreie Quartier verfügt über eine sehr vielseitige Bebauung sowie zahlreichen Grünflächen, Ruhe- und Begegnungszonen, Gemeinschaftsgärten mit Hochbeeten und Naschhecken und einem offenen Freiraumkonzept. Das Nachbarschaftszentrum bietet zusätzliche Indoor-Räumlichkeiten wie Büros, Veranstaltungsräume und einer Werkstatt. Zusätzlich gibt es im Wildgarten einen Co-Working Space, wo flexibel oder auch dauerhaft Arbeitsplätze gemietet werden können.
Das Infrastrukturangebot bietet derzeit einen Billa direkt im Wohnqaurtier sowie eine Pizzeria. Für alle jene, die ein Auto besitzen, können Tiefgaragenplätze in der Sammelgarage gemietet werden. Außenliegende Parkplätze stehen entlang des Quartiers zur Verfügung. Die öffentliche Anbindung ist durch die Buslinie 63A gewährleistet (Richtung U4 Meidling Hauptstraße und U6 Niederhofstraße). Ab vorauss. 2032 soll es eine neue S-Bahn Station in der Benyastraße geben.
Highlights Bauplatz 11+20:
- 9 Häuser in verschiedenen Größen
- 3 Eigentumswohnungen noch verfügbar
- 2 bis 3 Zimmer
- ca. 49 m² bis 75 m² Wohnfläche
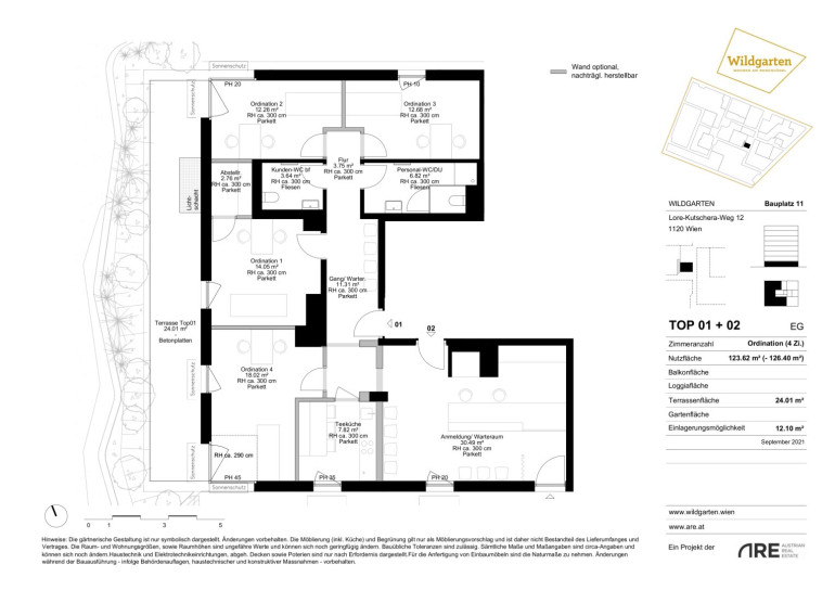
- 1 Gewerbeeinheit (Büro/Ordination) mit 123 m² noch verfügbar - Verkauf im Edelrohbau
- Balkon/ Loggia/ Terrasse/ Eigengarten im offenen Freiraumkonzept
- autofreies Gelände
- Tiefgaragenplätze zur Miete
- Begegnungszonen, Gemeinschaftsgärten und Naschgärten
- Kindergarten und Spielplätze im Grünen
- Billa direkt am Gelände
- Fußbodenheizung
- provisionsfrei für Käufer:innen
Gerne präsentieren wir Ihnen den Wildgarten und die verfügbaren Wohnungen im Rahmen einer Besichtigung. Auch bei Fragen rund um die Finanzierung unterstützen wir Sie gerne und freuen uns über Ihre Anfrage!
Infrastruktur / Entfernungen
Gesundheit
Arzt <1.025m
Apotheke <825m
Klinik <1.500m
Krankenhaus <1.025m
Kinder & Schulen
Schule <575m
Kindergarten <250m
Universität <3.700m
Höhere Schule <3.500m
Nahversorgung
Supermarkt <300m
Bäckerei <500m
Einkaufszentrum <1.525m
Sonstige
Geldautomat <1.250m
Bank <1.275m
Post <1.475m
Polizei <1.500m
Verkehr
Bus <200m
U-Bahn <1.625m
Straßenbahn <1.325m
Bahnhof <1.375m
Autobahnanschluss <1.700m
Angaben Entfernung Luftlinie / Quelle: OpenStreetMap
Eckdaten Objektnr. 960/74399
| Art: | Büro / Praxis |
| Land: | Österreich |
| Kaufpreis: | 549.000,00 € |
| Nutzfläche: | 123,62 m² |
| Zimmer: | 4 |
| Bäder: | 1 |
| WC: | 2 |
| Terrassen: | 1 |
| Keller: | 12,10 m² |
| Heizwärmebedarf: | B 26,73 kWh/m²a |
| fGEE: | A+ 0,67 |
Ausstattung
Personenaufzug
Ihre persönliche Beratung
Dieser Makler ist ein offizielles Mitglied des IR – ir.at Mehr Erfahren

