ERSTBEZUG - GENERALRENOVIERTE LUXUS-STILWOHNUNG / FIRST LETTING - FULLY RENOVATED CLASSIC LUXURY APARTMENT

Wohnung , 1010 Wien,Innere Stadt


Schmerlingplatz - Parlament

Beschreibung der Immobilie

ERSTBEZUG - GENERALRENOVIERTE LUXUS-STILWOHNUNG / FIRST LETTING - FULLY RENOVATED CLASSIC LUXURY APARTMENT

LUXURIÖSE ALTBAUMIETWOHNUNG am SCHMERLINGPLATZ





Im 4.Liftstock eines stilvollen Palaisgebäudes, in unmittelbarer Lage zu Ringstraße und dem Parlament, an einem Park gelegen, bietet diese aufwändig generalrenovierte und geräumige 3-Zimmer Wohnung folgende





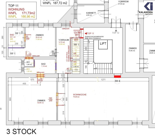
Raumaufteilung:



Vorraum (ca. 15m²), Gäste-WC, Wirtschafts-/ Abstellraum, 76m² großes Wohn- & Esszimmer mit offener Wohnküche mit südwestseitigem Blick über den begrünen Schmerlingplatz, anschließendes Schlafzimmer (ca. 41m²) mit en-suite Badezimmer (ca. 7m²) mit walk-in Dusche, Doppelwaschtisch und WC, ein weiteres hofseitiges Schlafzimmer (ca. 20m²) mit Schrankraumnische, anschließendes Badezimmer (ca. 7m²) mit walk-in Dusche und separates WC.     





Ausstattung:



- generalrenovierter Erstbezug



- in den Wohnbereichen neu verlegter, massiver Eichen-Tafelparkettboden



- Sanitärräume mit großflächigen Feinsteinzeugplatten, Spiegeln, Design-Waschtischen und Design-Armaturen ausgestattet



- Designeinbauküche mit Kochinsel und Einbaugeräten (E-Herd/ Cerankochfeld mit integriertem Dunstabzug, Kühl-/Gefrierkombination, Geschirrspüler, alle Marke: BOSCH)



- decken-integrierte Raum-Klimatisierung 



- renovierter Kachelofen im großen Master-Schlafzimmer



- Gas-Etagen-Fußbodenheizung (individuell je Raum regulierbar)



- trockenes, geräumiges Kellerlagerabteil (ca. 15m²)





Kautionsbetrag:  Euro 18.000,-



Angeboten wird ein auf 5 Jahre befristetes Mietverhältnis mit einjährigem, mieterseitigen Kündigungsverzicht.



---------------------------------------------------------------



LUXURIOUS CLASSIC STYLE APARTMENT at "SCHMERLINGPLATZ"





This extensively renovated and spacious 3-room apartment, located on the 4th floor (accessible by elevator) of a stylish palatial building, in close proximity to the "Ringstrasse" and the Parliament building and bordering a park offers the following:





Layout:



entrance hall (approx. 15m²), guest toilet, utility/ storage room, spacious living and dining room with open-plan kitchen (approx. 76m²) and southwest-facing views over "Schmerlingplatz", adjoining bedroom (approx. 41m²) with en-suite bathroom (approx. 7 m²) featuring a walk-in shower, double vanity, and toilet, further a courtyard-facing bedroom (approx. 20m²) with a walk-in closet corner, adjoining bathroom (approx. 7m²) with a walk-in shower and separate toilet.





Features:



- completely renovated, brand new apartment - first letting



- in the living areas newly laid solid oak parquet flooring 



- bathrooms equipped with large-format porcelain stoneware tiles, mirrors, design washbasins and design faucets



- fitted design kitchen with built-in appliances (electric oven/ ceramic cooktop with integrated extractor hood, refrigerator/ freezer, dishwasher, all brand: "BOSCH")



- ceiling-integrated air conditioning



- renovated tiled stove in the master bedroom



- individual gas-heating system/ underfloor heating (individually adjustable in each room)



- dry, spacious basement storage unit (approx. 15 m²)







Deposit amount:   Euro 18,000,- 



A lease contract with a limited duration of 5-years and a one-year waiver of termination by the tenant is been offered.












Der Immobilienmakler erklärt, dass er – entgegen dem in der Immobilienwirtschaft üblichen Geschäftsgebrauch des Doppelmaklers – einseitig nur für den Vermieter tätig ist.

Infrastruktur / Entfernungen

Gesundheit
Arzt <500m
Apotheke <500m
Klinik <1.000m
Krankenhaus <1.500m

Kinder & Schulen
Schule <500m
Kindergarten <1.000m
Universität <1.000m
Höhere Schule <1.000m

Nahversorgung
Supermarkt <500m
Bäckerei <500m
Einkaufszentrum <1.000m

Sonstige
Geldautomat <500m
Bank <500m
Post <500m
Polizei <500m

Verkehr
Bus <500m
U-Bahn <500m
Straßenbahn <500m
Bahnhof <500m
Autobahnanschluss <4.000m

Angaben Entfernung Luftlinie / Quelle: OpenStreetMap

Eckdaten Objektnr. 18559

Art: Wohnung
Land: Österreich
Baujahr: 1872
Alter: Altbau
Gesamtmiete: 5.899,78
Kaltmiete (netto): 5.030,00 €
Kaltmiete: 5.363,44 €
Betriebskosten: 333,44 €
MwSt Gesamt: 536,34 €
Wohnfläche: 171,73 m²
Zimmer: 3
Bäder: 2
WC: 3
Keller: 15,00 m²
Heizwärmebedarf:  D  107,90 kWh/m²a
fGEE:  C  1,23
Nebenkostenübersicht Miete Immobilie merken Exposé

Ausstattung

Parkett, Fliesen, Gas, Etagenheizung, Wohnküche / offene Küche, Personenaufzug, Bad mit Fenster, Dusche


Immobilie anfragen


Ihre persönliche Beratung

KALANDRA Immobilien Robert Kalandra e.U.

Oliver Kalandra

KALANDRA Immobilien Robert Kalandra e.U.

T +43-1/ 533-32-69-12

H +43-699/ 1040-4010

F +43 1/533-32-69-20