Nußdorf5 - Endlich Zuhause! - stilvolles Reihenhaus am Attersee

Wohnung , 4865 Zell , Mitterweg


Beschreibung der Immobilie

Nußdorf5 - Endlich Zuhause! - stilvolles Reihenhaus am Attersee

Nußdorf5. In Zell in der Gemeinde Nußdorf am Attersee errichtet die Nu5 Projekt GmbH ein Doppelhaus mit zwei und ein Reihenhaus mit drei Wohneinheiten, wahlweise in belags- oder in schlüsselfertiger Ausführung. 



In absoluter Ruhelage am Westufer des Attersees mit der malerischen Bergkulisse des Salzkammerguts im Hintergrund entsteht ein hochwertiges Doppel- und Reihenhaus im Wohnungseigentum in ansprechender Architektur. Bei den südseitig ausgerichteten Einheiten wurde bei der Planung, unter bestmöglicher Berücksichtigung der Rahmenbedingungen und örtlichen Gegebenheiten, auf ein modernes Raumkonzept mit besonderem Augenmerk auf praktikable Nutzbarkeit geachtet. Ausgewählte Materialien, hochwertige Boden- und Wandbeläge, modernes Heizungssystem (Luftwärmepumpe / FB-Heizung) in Kombination mit einer Photovoltaikanlage bieten ein Höchstmaß an Komfort und Bequemlichkeit.



Lage / Entfernungen:



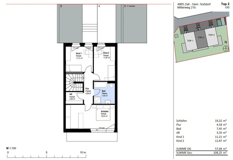
  • Mitterweg 21b, 4865 Zell - Gem. Nußdorf am Attersee
  • Seeufer Attersee in nur ca. 300 m Luftlinie Entfernung
  • nächster öffentl. Badeplatz ~ 550 m
  • Zentrum Nußdorf ~ 2500 m


Highlights:



  • exklusive Ruhelage in Seenähe
  • tlw. mit Seeblick
  • großzügige Terrassen und Eigengärten
  • 2 KFZ Stellplätze je Wohneinheit (davon 1 Carport)
  • ressourcenschonende Bauweise mit Wärmedämmung
  • energieeffiziente Haustechnik
  • hochwertige Ausstattung




Reihenhaus 21b
Wohnfläche: ca. 108,25 m²

Terrasse: ca. 17,27 m²

Garten: ca. 70,83 m²

2 KFZ-Freistellplätze 



Kaufpreis belagsfertig: EUR 582.600,--

Kaufpreis schlüsselfertig: EUR 628.100,--




Die von der Gemeinde vorgeschriebenen Infrastrukturkosten (Verkehrsflächenbeitrag, Aufschließung- und Anschlusskosten etc.) sind im Kaufpreis nicht inkludiert, diese werden gesondert verrechnet.



In der Gemeinde Nußdorf am Attersee ist verpflichtend Hauptwohnsitz zu melden.





Sehr gerne laden wir Sie zu einem persönlichen Beratungsgespräch in unser Büro in Wels ein, dabei möchten wir Ihnen das gesamte Projekt vorstellen, Ihre Fragen, eventuelle Sonderwünsche sowie die weiteren Schritte besprechen.

Kontaktieren Sie uns, damit wir einen Termin vereinbaren können! Wir freuen uns auf Sie!



Ihr SPERER Immobilien Team 




Wir weisen darauf hin, dass zwischen dem Vermittler und dem zu vermittelnden Dritten ein familiäres oder wirtschaftliches Naheverhältnis besteht.


Der Vermittler ist als Doppelmakler tätig.

Infrastruktur / Entfernungen

Gesundheit
Arzt <2.250m
Klinik <9.750m
Apotheke <7.500m

Kinder & Schulen
Schule <2.000m
Kindergarten <3.250m

Nahversorgung
Supermarkt <2.750m
Bäckerei <2.250m

Sonstige
Bank <2.250m
Geldautomat <2.250m
Post <2.500m
Polizei <7.000m

Verkehr
Bus <500m
Bahnhof <6.000m
Autobahnanschluss <6.250m

Angaben Entfernung Luftlinie / Quelle: OpenStreetMap

Eckdaten Objektnr. 336

Art: Wohnung
Land: Österreich
Baujahr: 2026
Alter: Neubau
Kaufpreis: 582.600,00
Wohnfläche: 108,25 m²
Stellplätze: 2
Garten: 70,83 m²
Heizwärmebedarf:  C  50,00 kWh/m²a
fGEE:  A  0,71
Nebenkostenübersicht Kauf Immobilie merken Exposé

Ausstattung

Fußbodenheizung, Parkplatz


Immobilie anfragen


Ihre persönliche Beratung

SPERER Immobilien GmbH

Ing. Stefan Pichler

Axia Immobilien GmbH - TESTACCOUNT

T +43 7242 306030

H +43 676 4630535