Reihenhaus in Mauerbach

Haus - Reihenhaus, 1140 Wien


Beschreibung der Immobilie

Reihenhaus in Mauerbach

Inmitten eines außergewöhnlich schönen Grundstücks im Herzen von Mauerbach gelangen 23 neu errichtete Reihenhäuser ab sofort zum Verkauf. Die Anlage liegt westlich von Wien, nur wenige Minuten von der Wiener Stadtgrenze entfernt, und grenzt direkt an den Wienerwald.
Das Wohnprojekt zeichnet sich durch ein ausgewogenes Verhältnis zwischen Bebauung und großzügigen Freiflächen aus. Weitläufige Grünflächen prägen das Erscheinungsbild und schaffen ein ruhiges, naturnahes Wohnumfeld mit hoher Lebensqualität – ein Ort zum Ankommen und Wohlfühlen.
Die Architektur der Häuser fügt sich harmonisch in die umliegende Landschaft ein. Teilweise Holzverkleidungen sowie begrünte Dachflächen betonen den naturnahen Charakter der Anlage und verleihen ihr eine moderne, zugleich warme Ausstrahlung.

Eine Übersicht der aktuell verfügbaren Häuser übermitteln wir Ihnen gerne auf Anfrage.

Eckdaten:
• Grundstücksfläche ca. 17.000 m²
• 23 Familienhäuser im Eigentum
• Kaufpreis ab € 599.000,-
• Größe von 150 – 171m² Wohnfläche
• Gärten mit bis zu 336 m²
• Nachhaltiges Heizen und Kühlen mittels Luftwärmepumpe
• Badeteich sowie Fitness- & Workout-Area innerhalb der Anlage
• 2 PKW-Stellplätze pro Haus

Fertigstellung: Ende 2025, Bezugsfertig

Ausstattung:
• Elegante Parkettböden in allen Wohn- und Schlafräumen
• Weiße, matte Innentüren mit Holzzarge bzw. Glastüren
• Großzügige Terrasse im Erdgeschoß mit Kaltwasseranschluss und Außenbeleuchtung
• Dachterrasse mit beeindruckender Aussicht
• Großformatige Fliesen (60 × 60 cm) in den Sanitärbereichen
• Badewannen mit Markenarmaturen und bodenbündige Duschen
• Vollständige Ausstattung aller Häuser mit Raffstores

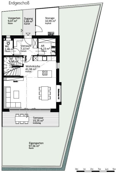
Haus 13.3 – Raumaufteilung:
• Großzügige Wohnküche
• 4 Schlafzimmer
• 2 Bäder mit WC
• 1 separates WC im Erdgeschoß
• 2 Abstellräume
• 2 PKW-Stellplätze
• Außenstorage 15,43 m²
• Garten 106,63 m²
• Terrasse 15,25 m²
• Dachterrasse 18,52 m²

Lage & Infrastruktur
Die waldreiche Umgebung lädt mit zahlreichen Wander- und Radwegen zu Aktivitäten im Freien ein. Nahversorger sowie infrastrukturelle Einrichtungen befinden sich in unmittelbarer Nähe.
Die Wiener Stadtgrenze erreichen Sie mit dem PKW in nur 4 Minuten, mit öffentlichen Verkehrsmitteln in etwa 9 Minuten. Die Fahrzeit in den 1. Bezirk beträgt rund 45 Minuten. Eine Busanbindung befindet sich wenige Gehminuten entfernt.

Eckdaten Objektnr. 141/84764

Art: Haus - Reihenhaus
Land: Österreich
Kaufpreis: 659.000,00
Wohnfläche: 149,77 m²
Zimmer: 4
Bäder: 2
WC: 1
Terrassen: 2
Heizwärmebedarf:  B  25,04 kWh/m²a
fGEE:  A+  0,63
Nebenkostenübersicht Kauf Immobilie merken Exposé

Immobilie anfragen


Ihre persönliche Beratung

Monika Riener

T +43 1 894 97 49393

H +43 676 834 34 393

Dieser Makler ist ein offizielles Mitglied des IR – ir.at Mehr Erfahren


Makler für Immobilien - Rustler Immobilientreuhand GmbH

RUSTLER-DIE MAKLER hat es sich zur Aufgabe gemacht, anhand exzellenter Fach- und Marktkenntnisse den passenden Immobilieninteressenten mit dem passenden Anbieter kosten- und zeitsparend zusammenzuführen.