2-Zimmer Dachgeschoßwohnung mit großem Balkon! Nahe der Donauinsel
Wohnung
,
1210
Wien
,
Kantnergasse
Beschreibung der Immobilie
2-Zimmer Dachgeschoßwohnung mit großem Balkon! Nahe der Donauinsel
2-Zimmer Dachgeschoßwohnung mit großem Balkon! Nahe der Donauinsel
In sehr guter Lage in Floridsdorf entstehen gesamt 102 Wohneinheiten im Grünen. Die Wohnanlage bietet 1 bis 4 Zimmerwohnungen zwischen 31 bis 97m², welche großteils mit Freiflächen ausgestattet sind.
Der gute Standort im 21. Wiener Gemeindebezirk bietet den Bewohnern ein große Auswahl an Nahversorgern, hervorragende Anbindung an das öffentliche Verkehrsnetz sowie Erholungs- und Freizeitmöglichkeiten in der ruhigen und grünen Umgebung. Das beliebte Naherholungsgebiet Donauinsel befindet sich in direkter Nähe der Liegenschaft. Durch die nahe gelegene Straßenbahnstation Großjedlersdorf/Siemensstraße ist auch der S-Bahnhof Brünner Straße rasch zu erreichen. Auch eine gute Anbindung an den Individualverkehr ist durch die nahe Anschlussstelle zu der Autobahn (A22) gewährleistet.
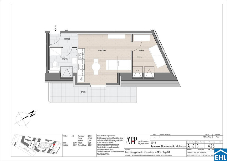
Die Wohnung selbst liegt im 1. Dachgeschoss und gliedert sich eine Wohnküche, ein Schlafzimmer, ein Badezimmer mit Dusche, WC und Waschmaschinenanschluss sowie einen Vorraum. Der ca. 12m² große Süd-Ost-Balkon rundet das Wohnerlebnis perfekt ab!
Ausstattung:
- Fußbodenheizung
- Mehrschichtparkettboden in allen Wohnräumen
- modern ausgestattet Sanitärräume
- vollausgestattete Einbauküchen
- Kellerabteil pro Wohneinheit
Öffentliche Anbindung:
- Straßenbahnlinie 30, 31
- Buslinien 30A, 31A, 36A, 228, 420, 426, 755
Diese Objekt ist nicht barrierefrei.
Bezugsfertig: ab sofort
Befristung: 5 Jahre, 1 Jahr Kündigungsverzicht, 3 Monate Kündigungsfrist
Die Kosten für Heizung, Warmwasser und Strom sind in der Miete noch nicht inkludiert!
Nebenkosten:
3 BMM Kaution, Vertragserrichtungskosten
Wir weisen darauf hin, dass zwischen dem Vermittler und dem zu vermittelnden Dritten ein familiäres oder wirtschaftliches Naheverhältnis besteht.
Der Immobilienmakler erklärt, dass er – entgegen dem in der Immobilienwirtschaft üblichen Geschäftsgebrauch des Doppelmaklers – einseitig nur für den Vermieter tätig ist.
Infrastruktur / Entfernungen
Gesundheit
Arzt <250m
Apotheke <250m
Klinik <1.250m
Krankenhaus <1.250m
Kinder & Schulen
Schule <250m
Kindergarten <250m
Universität <2.000m
Höhere Schule <2.500m
Nahversorgung
Supermarkt <250m
Bäckerei <250m
Einkaufszentrum <750m
Sonstige
Geldautomat <250m
Bank <250m
Post <250m
Polizei <500m
Verkehr
Bus <250m
U-Bahn <2.250m
Straßenbahn <250m
Bahnhof <1.250m
Autobahnanschluss <1.250m
Angaben Entfernung Luftlinie / Quelle: OpenStreetMap
Eckdaten Objektnr. 91829
| Art: | Wohnung |
| Land: | Österreich |
| Zustand: | Gepflegt |
| Gesamtmiete: | 979,19 € |
| Kaltmiete (netto): | 794,52 € |
| Kaltmiete: | 890,17 € |
| Betriebskosten: | 95,65 € |
| MwSt Gesamt: | 89,02 € |
| Wohnfläche: | 44,40 m² |
| Zimmer: | 2 |
| Bäder: | 1 |
| WC: | 1 |
| Balkone: | 1 |
| Heizwärmebedarf: | B 25,90 kWh/m²a |
| fGEE: | A 0,75 |
Ausstattung
Fliesen, Parkett, Fußbodenheizung, Einbauküche, Personenaufzug, Dusche
Ihre persönliche Beratung
Dieser Makler ist ein offizielles Mitglied des IR – ir.at Mehr Erfahren
